Eladó Ház- házrész
Hirdetéskód: 9255500
Érd Bajcsy-Zsilinszky út 160 - OTP Ingatlanpont Iroda
Felújításhoz személyi kölcsönt keres? Kalkuláljon itt! →
Ez a hirdetés megfelelhet a FIX 3%-os programnak.
Tudj meg többet a részletekről itt.
119.00 m2
ALAPTERÜLET3
SZOBASZÁMnincs megadva
ÉPÍTÉSGáz (cirkó)
FŰTÉS- CSOK igénybe vehető nem
- Belső szintek 2
- Tetőtér beépíthető nem
- Építés éve 2026
- Fűtés Gáz (cirkó)
- Klíma nem
- Szigetelt nem
A+++
A++
A+
A
B
C
D
E
F
G
H
I
Az ingatlan leírása
Kajászó központjában, egy zöldövezeti mellékutcában eladó 4 db nappali + 2 és 3 hálószobás sorházi lakás saját garázzsal, terasszal, erkéllyel és saját használatú kertrésszel.
A lakásokat sok éves tapasztalattal rendelkező kivitelező építi, a ház mellett áll egy korábban elkészült, hasonló sorház.
Helyiségeiben igény szerint választhatóak a hideg és meleg burkolatok a kivitelező által meghatározott értékben (műszaki tartalom).
A lakások a garázsoknál kerülnek összeépítésre, nincs közös lakóhelyiséggel érintkező közös falazatuk, ezáltal szeparáltak egymástól.
Várható átadás: 2026. ősz
-falazata: 30-as Porotherm tégla, szigetelés: 15 cm-es homlokzati hőszigetelő rendszer, tetőcserép fedéssel épülnek.
Műanyag nyílászárók kívül, választható fóliás ajtók belül, fűtése gáz kondenzációs kazánnal, radiátoros hőleadással, ajándék klíma a lakásokhoz!
Helyiségek:
I. és IV. LAKÁS
Földszint (53,62 m2)
Előtér: 4,29 m2
WC: 1,98 m2
Nappali: 33,56 m2
Konyha-étkező: 9,45 m2
Lépcsőház-Tároló 4,34 m2
Külső terület (Terasz): 21,47 m2
Külső terület (Gépkocsi beálló): 18,60 m2
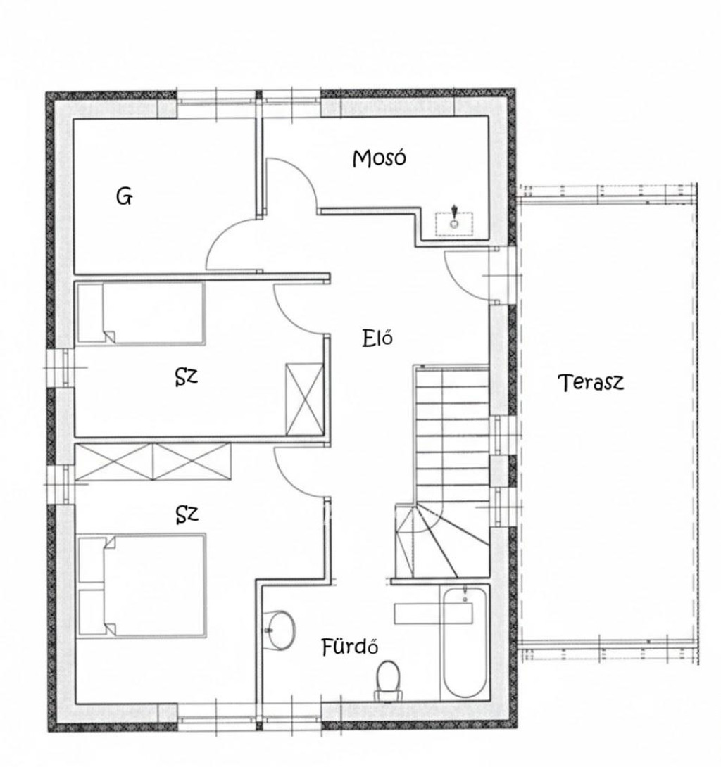
Emelet (45 m2)
Közlekedő: 11,07 m2
Fürdő: 4,44 m2
Szoba: 11,78 m2
Szoba: 8,42 m2
Gardrób (félszoba) 5,72 m2
Mosókonyha 3,56 m2
Terasz: 20,4 m2
Össz nettó: 98,6 m2 + 20.15m2 (1/3 teraszok és garázs) 119 m2
II. és III. LAKÁS
Összes hasznos alapterület: 53,7 m2
Előtér: 4,30 m2
WC: 1,98 m2
Nappali: 33,67 m2
Konyha-étkező: 9,41 m2
Lépcsőház-Tároló 4,34 m2
Külső terület (Terasz): 21,47 m2
Külső terület (Gépkocsi beálló): 18,60 m2
Emelet (45,3 m2)
Közlekedő: 10,31 m2
Fürdő: 5,52 m2
Szoba: 12,86 m2
Szoba: 8,5 m2
Szoba 8,15 m2
Terasz: 20,4 m2
Össz nettó: 99 m2 + 20.15m2 (1/3 teraszok és garázs) 119 m2
A bruttó méretet a hasznos lakóterületből, valamint a teraszok, erkélyek és garázsok egyharmadát beleszámolva állapítottam meg.
A hirdetésben szereplő képek között vannak referencia- és látványképek is.
A részletekért keressen bizalommal!
A lakásokat sok éves tapasztalattal rendelkező kivitelező építi, a ház mellett áll egy korábban elkészült, hasonló sorház.
Helyiségeiben igény szerint választhatóak a hideg és meleg burkolatok a kivitelező által meghatározott értékben (műszaki tartalom).
A lakások a garázsoknál kerülnek összeépítésre, nincs közös lakóhelyiséggel érintkező közös falazatuk, ezáltal szeparáltak egymástól.
Várható átadás: 2026. ősz
-falazata: 30-as Porotherm tégla, szigetelés: 15 cm-es homlokzati hőszigetelő rendszer, tetőcserép fedéssel épülnek.
Műanyag nyílászárók kívül, választható fóliás ajtók belül, fűtése gáz kondenzációs kazánnal, radiátoros hőleadással, ajándék klíma a lakásokhoz!
Helyiségek:
I. és IV. LAKÁS
Földszint (53,62 m2)
Előtér: 4,29 m2
WC: 1,98 m2
Nappali: 33,56 m2
Konyha-étkező: 9,45 m2
Lépcsőház-Tároló 4,34 m2
Külső terület (Terasz): 21,47 m2
Külső terület (Gépkocsi beálló): 18,60 m2
Emelet (45 m2)
Közlekedő: 11,07 m2
Fürdő: 4,44 m2
Szoba: 11,78 m2
Szoba: 8,42 m2
Gardrób (félszoba) 5,72 m2
Mosókonyha 3,56 m2
Terasz: 20,4 m2
Össz nettó: 98,6 m2 + 20.15m2 (1/3 teraszok és garázs) 119 m2
II. és III. LAKÁS
Összes hasznos alapterület: 53,7 m2
Előtér: 4,30 m2
WC: 1,98 m2
Nappali: 33,67 m2
Konyha-étkező: 9,41 m2
Lépcsőház-Tároló 4,34 m2
Külső terület (Terasz): 21,47 m2
Külső terület (Gépkocsi beálló): 18,60 m2
Emelet (45,3 m2)
Közlekedő: 10,31 m2
Fürdő: 5,52 m2
Szoba: 12,86 m2
Szoba: 8,5 m2
Szoba 8,15 m2
Terasz: 20,4 m2
Össz nettó: 99 m2 + 20.15m2 (1/3 teraszok és garázs) 119 m2
A bruttó méretet a hasznos lakóterületből, valamint a teraszok, erkélyek és garázsok egyharmadát beleszámolva állapítottam meg.
A hirdetésben szereplő képek között vannak referencia- és látványképek is.
A részletekért keressen bizalommal!