Eladó Ház- házrész
Hirdetéskód: 9303537
JAVDERON777 KFT
Felújításhoz személyi kölcsönt keres? Kalkuláljon itt! →96.00 m2
ALAPTERÜLET1
SZOBASZÁMnincs megadva
ÉPÍTÉSnincs megadva
FŰTÉS- CSOK igénybe vehető nem
- Tetőtér beépíthető nem
- Építés éve 2026
- Klíma nem
- Szigetelt nem
A+++
A++
A+
A
B
C
D
E
F
G
H
I
Az ingatlan leírása
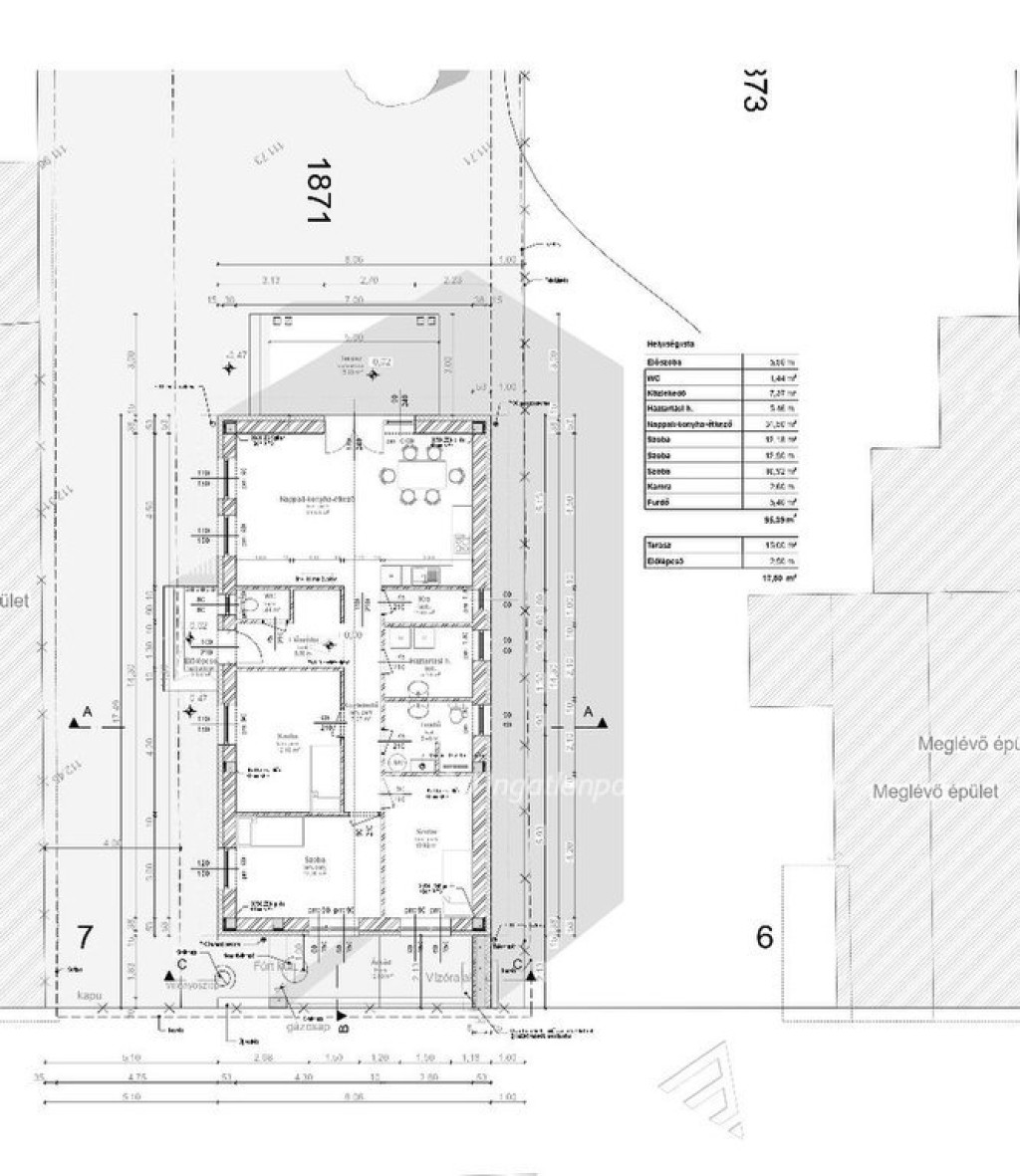
Új építésű, 96 nm-es családi ház Jászfényszarun - 3 szoba, amerikai konyhás nappali, 750 nm-es telek, CSOK Pluszra alkalmas
Jászfényszarun, nyugodt környezetben, 750 nm-es telken kínálunk megvételre egy 96 nm hasznos alapterületű, 3 szobás, amerikai konyhás nappalival kialakított új építésű családi házat. Az ingatlan megbízható referenciákkal rendelkező, tapasztalt kivitelező által kerül megépítésre, a leendő tulajdonos igényeit figyelembe véve, minőségi alapanyagok felhasználásával.
A ház korszerű műszaki tartalommal készül, 30 cm-es Porotherm téglafalazattal, 15 cm-es külső hőszigeteléssel, beton cserép tetőfedéssel, valamint modern, háromrétegű hőszigetelt nyílászárókkal. Az energiatakarékos kialakítás hosszú távon kedvező fenntartási költségeket biztosít, miközben kényelmes és modern otthont nyújt a leendő tulajdonos számára.
Az építkezés egyik nagy előnye, hogy a belső kialakítás végső hangulatát az új tulajdonos alakíthatja ki, hiszen a burkolatok, a szaniterek, valamint a belső falszínek kiválasztására is lehetőség nyílik, így az otthon valóban az egyéni elképzelések szerint készülhet el.
A 750 nm-es telek ideális méretű kertet biztosít pihenéshez, családi programokhoz vagy akár további kertépítési elképzelések megvalósításához. Az ingatlan kiváló választás lehet mindazok számára, akik modern, energiatakarékos, új építésű otthont keresnek Jászfényszarun.
Az ingatlan megfelel a CSOK Plusz feltételeinek, így családtámogatási konstrukcióval is megvásárolható.
Ha egy minőségi kivitelezésű, új otthont keres, amelyet részben még saját ízlésére formálhat, érdemes személyesen is megismernie ezt a lehetőséget.
Jászfényszarun, nyugodt környezetben, 750 nm-es telken kínálunk megvételre egy 96 nm hasznos alapterületű, 3 szobás, amerikai konyhás nappalival kialakított új építésű családi házat. Az ingatlan megbízható referenciákkal rendelkező, tapasztalt kivitelező által kerül megépítésre, a leendő tulajdonos igényeit figyelembe véve, minőségi alapanyagok felhasználásával.
A ház korszerű műszaki tartalommal készül, 30 cm-es Porotherm téglafalazattal, 15 cm-es külső hőszigeteléssel, beton cserép tetőfedéssel, valamint modern, háromrétegű hőszigetelt nyílászárókkal. Az energiatakarékos kialakítás hosszú távon kedvező fenntartási költségeket biztosít, miközben kényelmes és modern otthont nyújt a leendő tulajdonos számára.
Az építkezés egyik nagy előnye, hogy a belső kialakítás végső hangulatát az új tulajdonos alakíthatja ki, hiszen a burkolatok, a szaniterek, valamint a belső falszínek kiválasztására is lehetőség nyílik, így az otthon valóban az egyéni elképzelések szerint készülhet el.
A 750 nm-es telek ideális méretű kertet biztosít pihenéshez, családi programokhoz vagy akár további kertépítési elképzelések megvalósításához. Az ingatlan kiváló választás lehet mindazok számára, akik modern, energiatakarékos, új építésű otthont keresnek Jászfényszarun.
Az ingatlan megfelel a CSOK Plusz feltételeinek, így családtámogatási konstrukcióval is megvásárolható.
Ha egy minőségi kivitelezésű, új otthont keres, amelyet részben még saját ízlésére formálhat, érdemes személyesen is megismernie ezt a lehetőséget.