Eladó Ház- házrész
Hirdetéskód: 9299246
5100 Jászberény Szentháromság tér 2. - OTP Ingatlanpont Iroda
Felújításhoz személyi kölcsönt keres? Kalkuláljon itt! →110.00 m2
ALAPTERÜLET4
SZOBASZÁMnincs megadva
ÉPÍTÉSnincs megadva
FŰTÉS- CSOK igénybe vehető nem
- Tetőtér beépíthető nem
- Építés éve 1962
- Klíma nem
- Szigetelt nem
A+++
A++
A+
A
B
C
D
E
F
G
H
I
Az ingatlan leírása
Jászberény központjában remek állapotú összkomfortos családi ház eladó!
Központi elhelyezkedése miatt óvoda, iskola, orvosi rendelő, gyógyszertár gyorsan megközelíthető.
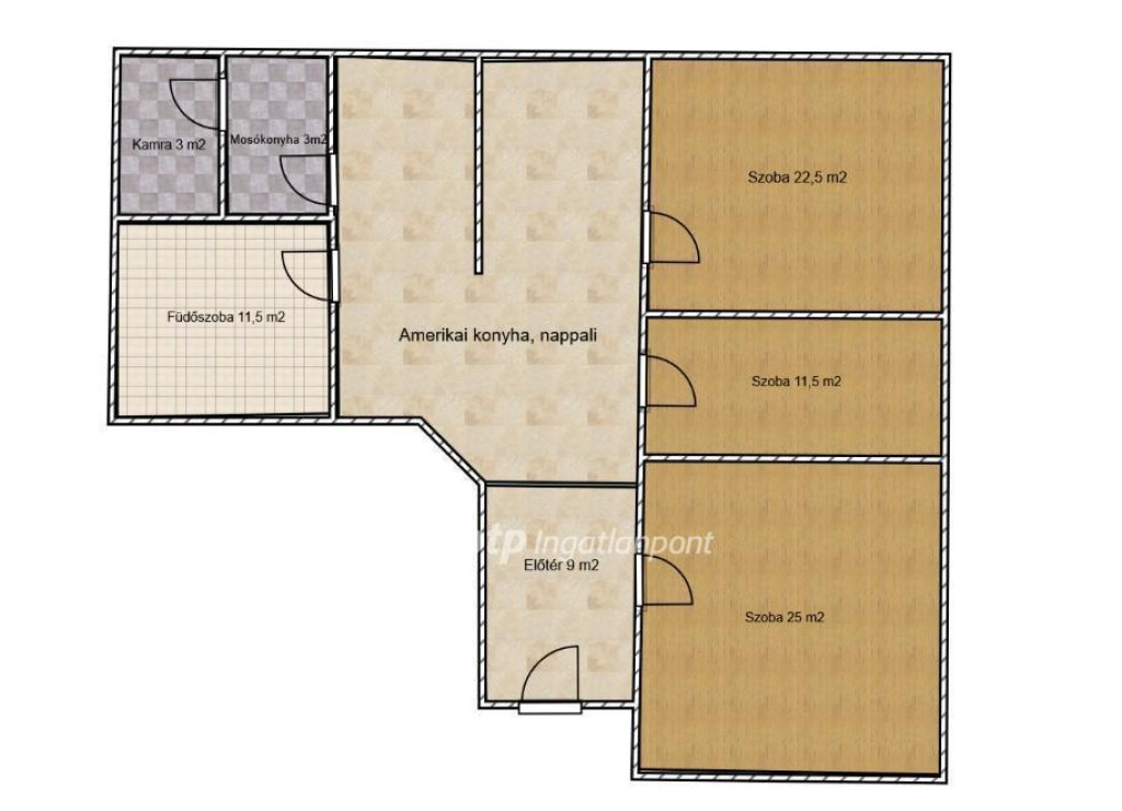
A ház 110 m2 -es hasznos alapterülete és remek elrendezése miatt tágas otthon lehet nagycsaládosok számára is.
Az ingatlanban található 3 hálószoba, amerikai konyhás nappali, fürdőszoba zuhanyzóval és fürdőkáddal, mosókonyha, kamra. A központi fűtés kondenzációs ill. vegyes tüzelésű kazánnal is üzemeltethető, a hűtésről 3 nagy teljesítményű klíma gondoskodik. Igény esetén a tetőtér is beépíthető.
Az 572 m2-es telek nagy része térkővel illetve műfűvel borított.
Az ingatlanhoz tartozik egy 100m2-es melléképületis, melyben megtalálható garázs, szauna, tároló és egy felújított, külön vizesblokkal rendelkező lakrész. Nagycsaládosok, de befektetők részére is kiváló választás lehet.
Az ingatlan Otthon Start Hitelprogram igénybevételére alkalmas! Az OTP Bankcsoport teljes körű ügyintézéssel áll az eladók és a vevők rendelkezésére! A vásárlás finanszírozásában az OTP kedvező hitelkonstrukcióival, CSOK és a támogatott hitel lehetőségével, vagy akár a babaváró hitel ilyen célra történő felhasználásával tud segíteni. Az adásvételi szerződés megkötéséhez igény szerint megbízható ügyvédi közreműködést biztosítunk és segítséget nyújtunk az adásvételhez kapcsolódó ügyek intézéséhez. Akár hétvégén is hívható vagyok! Keressen bizalommal!
52500000 Ft
Központi elhelyezkedése miatt óvoda, iskola, orvosi rendelő, gyógyszertár gyorsan megközelíthető.
A ház 110 m2 -es hasznos alapterülete és remek elrendezése miatt tágas otthon lehet nagycsaládosok számára is.
Az ingatlanban található 3 hálószoba, amerikai konyhás nappali, fürdőszoba zuhanyzóval és fürdőkáddal, mosókonyha, kamra. A központi fűtés kondenzációs ill. vegyes tüzelésű kazánnal is üzemeltethető, a hűtésről 3 nagy teljesítményű klíma gondoskodik. Igény esetén a tetőtér is beépíthető.
Az 572 m2-es telek nagy része térkővel illetve műfűvel borított.
Az ingatlanhoz tartozik egy 100m2-es melléképületis, melyben megtalálható garázs, szauna, tároló és egy felújított, külön vizesblokkal rendelkező lakrész. Nagycsaládosok, de befektetők részére is kiváló választás lehet.
Az ingatlan Otthon Start Hitelprogram igénybevételére alkalmas! Az OTP Bankcsoport teljes körű ügyintézéssel áll az eladók és a vevők rendelkezésére! A vásárlás finanszírozásában az OTP kedvező hitelkonstrukcióival, CSOK és a támogatott hitel lehetőségével, vagy akár a babaváró hitel ilyen célra történő felhasználásával tud segíteni. Az adásvételi szerződés megkötéséhez igény szerint megbízható ügyvédi közreműködést biztosítunk és segítséget nyújtunk az adásvételhez kapcsolódó ügyek intézéséhez. Akár hétvégén is hívható vagyok! Keressen bizalommal!
52500000 Ft