Eladó Ház- házrész
Hirdetéskód: 9307722
Győr Bajcsy-Zsilinszky út 27 - OTP Ingatlanpont Iroda
Felújításhoz személyi kölcsönt keres? Kalkuláljon itt! →
Ez a hirdetés megfelelhet a FIX 3%-os programnak.
Tudj meg többet a részletekről itt.
111.00 m2
ALAPTERÜLET4
SZOBASZÁMnincs megadva
ÉPÍTÉSEgyéb fűtés
FŰTÉS- CSOK igénybe vehető nem
- Tetőtér beépíthető nem
- Építés éve 2027
- Fűtés Egyéb fűtés
- Klíma nem
- Szigetelt nem
A+++
A++
A+
A
B
C
D
E
F
G
H
I
Az ingatlan leírása
Eladó Jánossomorján egy modern, energiatakarékos, új építésű családi ház!
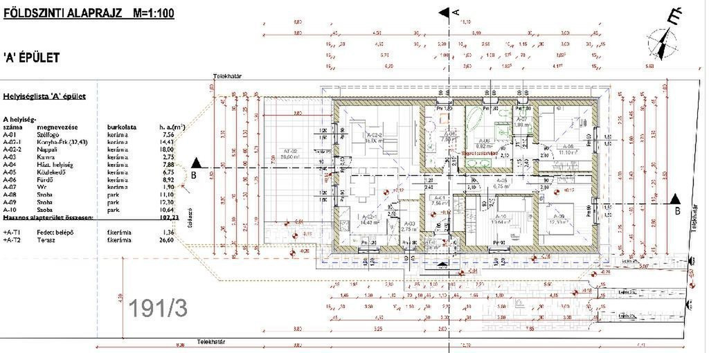
A 102 m2-es, egyszintes otthon kiváló elrendezésű: tágas nappali-étkező-konyha egy légtérben, három külön nyíló hálószoba, kamra, háztartási helyiség és külön WC szolgálja a kényelmet. A nappaliból egy 26,6 m2-es teraszra léphetünk, amely tökéletes helyszín a pihenéshez.
A fűtést hőszivattyú biztosítja padlófűtéssel, klíma és napelem előkészítéssel, így a ház alacsony fenntartású és megfelel a közel nulla energiaigény követelményeinek. A kivitelezés során minőségi anyagok kerülnek beépítésre: Porotherm falazat, 15 cm grafitos hőszigetelés, 3 rétegű antracit nyílászárók és Terrán Zenit Carbon tetőcserép.
A 1094 m2-es telek több mint fele zöldfelület, parkolás telken belül megoldott. Csendes, rendezett környék, teljes közmű, kiváló elhelyezkedés. Ideális választás családoknak, akik modern, energiatakarékos otthont keresnek.
Az ár szerkezetkész állapotra vonatkozik!
Amennyiben felkeltettem érdeklődését, hívjon bátran!
Referenciaszám: M325495
A 102 m2-es, egyszintes otthon kiváló elrendezésű: tágas nappali-étkező-konyha egy légtérben, három külön nyíló hálószoba, kamra, háztartási helyiség és külön WC szolgálja a kényelmet. A nappaliból egy 26,6 m2-es teraszra léphetünk, amely tökéletes helyszín a pihenéshez.
A fűtést hőszivattyú biztosítja padlófűtéssel, klíma és napelem előkészítéssel, így a ház alacsony fenntartású és megfelel a közel nulla energiaigény követelményeinek. A kivitelezés során minőségi anyagok kerülnek beépítésre: Porotherm falazat, 15 cm grafitos hőszigetelés, 3 rétegű antracit nyílászárók és Terrán Zenit Carbon tetőcserép.
A 1094 m2-es telek több mint fele zöldfelület, parkolás telken belül megoldott. Csendes, rendezett környék, teljes közmű, kiváló elhelyezkedés. Ideális választás családoknak, akik modern, energiatakarékos otthont keresnek.
Az ár szerkezetkész állapotra vonatkozik!
Amennyiben felkeltettem érdeklődését, hívjon bátran!
Referenciaszám: M325495