Eladó Ház- házrész
Hirdetéskód: 9256739
HOUSE36 Ingatlanhálózat
81.00 m2
ALAPTERÜLET4
SZOBASZÁMnincs megadva
ÉPÍTÉSnincs megadva
FŰTÉS- CSOK igénybe vehető nem
- Tetőtér beépíthető nem
- Építés éve 2026
- Klíma nem
- Szigetelt nem
A+++
A++
A+
A
B
C
D
E
F
G
H
I
Az ingatlan leírása
ÚJ ÉPÍTÉSŰ CSALÁDI HÁZ ELADÓ JAKABSZÁLLÁSON KECSKEMÉTTŐL CSUPÁN 20 perc távolságra !
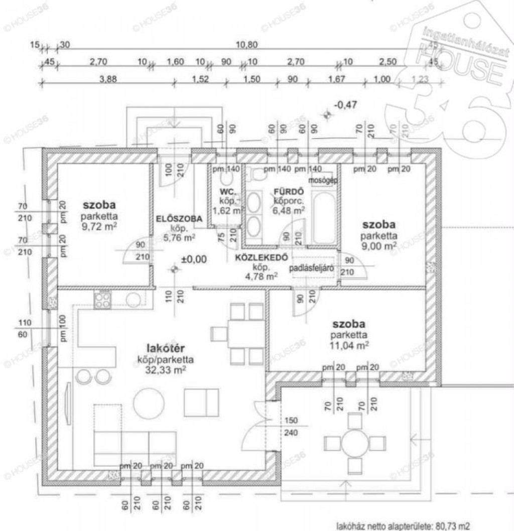
81 m2-es, nappali + 3 szobás, új építésű ház Jakabszálláson!
Az ár tartalmazza a telek árát is!
Jellemzői:
telek 644 m2
lakótér 81 m2
10 m2 térkövezett terasz
gáz-cirkó fűtés, Bosch 2300 kazánnal, padlófűtés
2 klíma
Porotherm főfalak
10 cm-es tégla válaszfalak (belső)
Fa födémszerkezet láng és gombamentesítő anyaggal kezelve
Cserép tetőfedés
Műanyag, bukó-nyíló nyílászárók (3 rétegű, 6 légkamrás), biztonsági bejárati ajtó
redőny, szúnyogháló
15 cm EPS homlokzati hőszigetelés
2026 decemberi átadás
A hirdetésben szereplő fotók egy referenciaházban készültek.
A tulajdonos kérésére az ingatlan bemutatása egy személyes konzultáció után történik, ahol részletes tájékoztatást kaphat az ingatlan paramétereiről és egyéb kényelmi szolgáltatásairól! Figyelem az adatlap megbízónktól kapott adatok alapján készült, pontosságáért felelősséget nem tudunk vállalni!
81 m2-es, nappali + 3 szobás, új építésű ház Jakabszálláson!
Az ár tartalmazza a telek árát is!
Jellemzői:
telek 644 m2
lakótér 81 m2
10 m2 térkövezett terasz
gáz-cirkó fűtés, Bosch 2300 kazánnal, padlófűtés
2 klíma
Porotherm főfalak
10 cm-es tégla válaszfalak (belső)
Fa födémszerkezet láng és gombamentesítő anyaggal kezelve
Cserép tetőfedés
Műanyag, bukó-nyíló nyílászárók (3 rétegű, 6 légkamrás), biztonsági bejárati ajtó
redőny, szúnyogháló
15 cm EPS homlokzati hőszigetelés
2026 decemberi átadás
A hirdetésben szereplő fotók egy referenciaházban készültek.
A tulajdonos kérésére az ingatlan bemutatása egy személyes konzultáció után történik, ahol részletes tájékoztatást kaphat az ingatlan paramétereiről és egyéb kényelmi szolgáltatásairól! Figyelem az adatlap megbízónktól kapott adatok alapján készült, pontosságáért felelősséget nem tudunk vállalni!