Eladó Ház- házrész
Hirdetéskód: 9258607
Érd Bajcsy-Zsilinszky út 160 - OTP Ingatlanpont Iroda
Felújításhoz személyi kölcsönt keres? Kalkuláljon itt! →
Ez a hirdetés megfelelhet a FIX 3%-os programnak.
Tudj meg többet a részletekről itt.
174.00 m2
ALAPTERÜLET4
SZOBASZÁMnincs megadva
ÉPÍTÉSGáz (cirkó)
FŰTÉS- CSOK igénybe vehető nem
- Belső szintek 2
- Tetőtér beépíthető nem
- Építés éve 2002
- Fűtés Gáz (cirkó)
- Klíma nem
- Szigetelt nem
A+++
A++
A+
A
B
C
D
E
F
G
H
I
Az ingatlan leírása
Fejér megyében, Iváncsán, eladó egy kiváló adottságú, energiatakarékos családi ház!
173 m?-es, 4 szobás, napelemes családi ház eladó 2106 m?-es, hatalmas telken, jól megközelíthető, frekventált elhelyezkedéssel. Az ingatlan 2007-ben épült, a tetőtér 2012-ben került beépítésre, praktikus és tágas elrendezéssel.
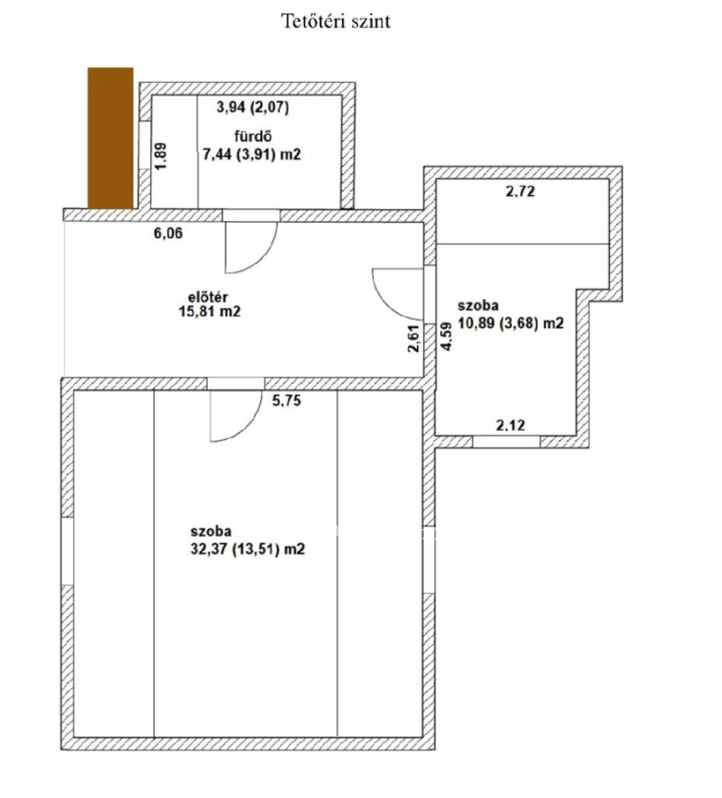
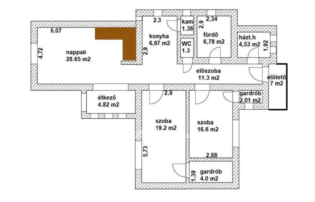
A ház alacsony fenntartási költségű: napelemrendszer, pellet kazán, 2 db hűtő-fűtő klíma és villanybojler gondoskodik az energiatakarékos működésről. A földszinten nappali?étkező, konyha spejzzel, 2 külön nyíló hálószoba saját gardróbbal, fürdőszoba, külön WC és háztartási helyiség található. A tetőtérben további 2 szoba, előtér, tároló és egy második fürdőszoba került kialakításra.
A ház alatt szigetelt garázs, gépészeti helyiség és nagy méretű tároló áll rendelkezésre. Kiváló infrastruktúra: buszmegálló a közelben, vasútállomás 1,5 km-re, óvoda, iskola, orvosi rendelő, posta és boltok pár percen belül elérhetők.
Ideális választás nagyobb családnak vagy nyugodt, energiatudatos otthont keresőknek.
173 m?-es, 4 szobás, napelemes családi ház eladó 2106 m?-es, hatalmas telken, jól megközelíthető, frekventált elhelyezkedéssel. Az ingatlan 2007-ben épült, a tetőtér 2012-ben került beépítésre, praktikus és tágas elrendezéssel.
A ház alacsony fenntartási költségű: napelemrendszer, pellet kazán, 2 db hűtő-fűtő klíma és villanybojler gondoskodik az energiatakarékos működésről. A földszinten nappali?étkező, konyha spejzzel, 2 külön nyíló hálószoba saját gardróbbal, fürdőszoba, külön WC és háztartási helyiség található. A tetőtérben további 2 szoba, előtér, tároló és egy második fürdőszoba került kialakításra.
A ház alatt szigetelt garázs, gépészeti helyiség és nagy méretű tároló áll rendelkezésre. Kiváló infrastruktúra: buszmegálló a közelben, vasútállomás 1,5 km-re, óvoda, iskola, orvosi rendelő, posta és boltok pár percen belül elérhetők.
Ideális választás nagyobb családnak vagy nyugodt, energiatudatos otthont keresőknek.