Eladó Ház- házrész
Hirdetéskód: 9315248
Openhouse Székesfehérvár Ingatlaniroda
Felújításhoz személyi kölcsönt keres? Kalkuláljon itt! →
Ez a hirdetés megfelelhet a FIX 3%-os programnak.
Tudj meg többet a részletekről itt.
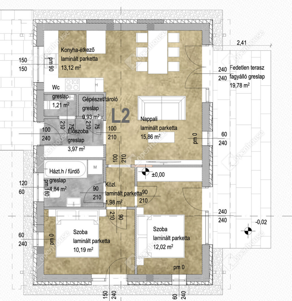
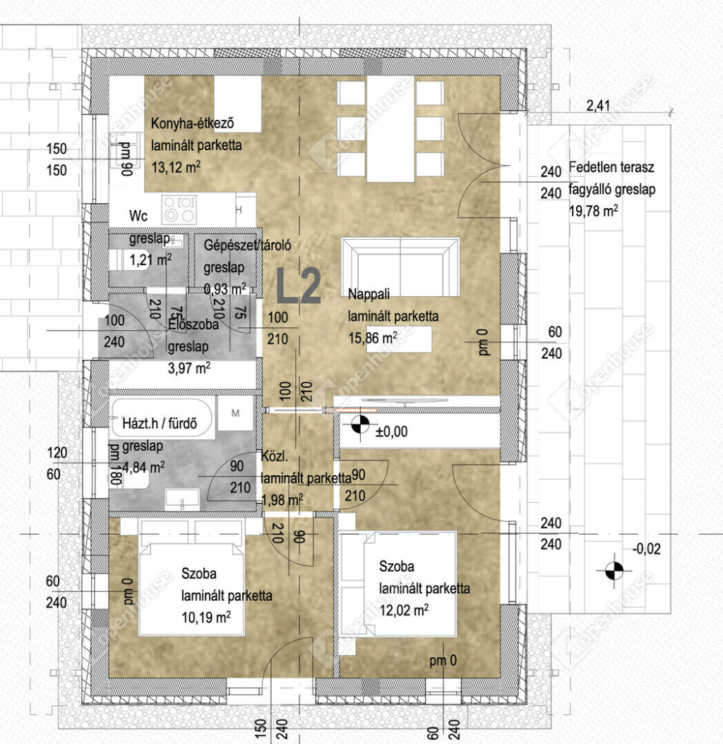
74.00 m2
ALAPTERÜLET3
SZOBASZÁMnincs megadva
ÉPÍTÉSEgyéb fűtés
FŰTÉS- CSOK igénybe vehető nem
- Tetőtér beépíthető nem
- Építés éve 2026
- Fűtés Egyéb fűtés
- Klíma nem
- Szigetelt nem
A+++
A++
A+
A
B
C
D
E
F
G
H
I
Az ingatlan leírása
Az Openhouse Székesfehérvár Ingatlaniroda kínálatában eladó a #181146 hivatkozási számú iszkaszentgyörgyi családi ház.
Székesfehérvári ingatlan iroda eladásra kínál modern stílusban épülő önálló családi házat Iszkaszentgyörgyön.
Lokáció: Iszkaszentgyörgy egy csendes és új parcellázású részén található az építkezés. A környéken csak új és szép megjelenésű ingatlanok találhatóak, az építkezés megközelítése új aszfaltos úton biztosított. Székesfehérvár autóval és tömegközlekedéssel is egyaránt könnyedén megközelíthető.
Az ingatlanról: Az ingatlan minőségi alapanyagok felhasználásával és a modern technológia alkalmazásával készül, a lehető legmagasabb színvonalon, minimás stílusban. A nettó alapterület 74m2, ami magába foglal egy nagy amerikai konyhás nappalit, 2 hálószobát, 1 fürdőszobát WC-vel, egy vendég WC-t és egy háztartási helyiséget. Továbbá az ingatlanhoz tartozik 1 db térkövezett kocsibeálló és egy nagy méretű 20m2-es épített terasz. Az ingatlan egy saját használatú 450m2-es telekkel rendelkezik.
Műszaki paraméterek:
74m2-es családi ház
20m2 épített terasz (hidegburkolattal)
30-as téglafal (porotherm X-therm klíma tégla)
10-es válaszfalak
15cm homlokzati hőszigetelés
450m2-es saját telek
8 kW-os ELECTROLUX hőszivattyú + padlófűtés
150-literes hőtárolós melegvíztartály
H-tarifás mérőóra
3x16 Amper
három rétegű műanyag nyílászárók
rejtett redőny tok előkészítés
1db kerti csap
1db térkövezett kocsibeálló
oldalhatárokon 3D kerítés
antracit beton tetőcserép
választható beltéri ajtók
választható csaptelepek és szaniterek
választható burkolatok
A kivitelező cégről: Az ingatlan építését egy több éve megbízhatóan működő Székesfehérvári bejelentésű építőipari vállalkozás kordinálja. Több, már elkészült székesfehérváron is megtekinthető referencia ingatlant áll rendelkezésre, hogy Ön is meggyőződjön a megfelelő minőségű kivitelezésről.
FIzetési konstrukció: Rugalmas fizetési ütem biztosítja a gördülékeny együttműködést, ami minding a vásárló igényeihez megfelelően van igazítva.
Ha felkeltette érdeklődését ez az eladó iszkaszentgyörgyi családi ház, vagy bármely más családi ház és bővebb információt szeretne, keressen bizalommal.Hivatkozási szám: #181146
Az Openhouse Székesfehérvár Ingatlaniroda tagjaként várom Önt az országos hálózatunk teljes kínálatával.
A családi ház vásárláshoz hitelt igényelne? Ingyenes hitelközvetítéssel segít Önnek bankfüggetlen hitelszakértőnk.
További szolgáltatásainkkal (pl. értékbecslés, energetikai tanúsítvány, jogi háttér) is segítjük Önt a vásárlásban.
Az otthon érték. Az ingatlan üzlet.
Székesfehérvári ingatlan iroda eladásra kínál modern stílusban épülő önálló családi házat Iszkaszentgyörgyön.
Lokáció: Iszkaszentgyörgy egy csendes és új parcellázású részén található az építkezés. A környéken csak új és szép megjelenésű ingatlanok találhatóak, az építkezés megközelítése új aszfaltos úton biztosított. Székesfehérvár autóval és tömegközlekedéssel is egyaránt könnyedén megközelíthető.
Az ingatlanról: Az ingatlan minőségi alapanyagok felhasználásával és a modern technológia alkalmazásával készül, a lehető legmagasabb színvonalon, minimás stílusban. A nettó alapterület 74m2, ami magába foglal egy nagy amerikai konyhás nappalit, 2 hálószobát, 1 fürdőszobát WC-vel, egy vendég WC-t és egy háztartási helyiséget. Továbbá az ingatlanhoz tartozik 1 db térkövezett kocsibeálló és egy nagy méretű 20m2-es épített terasz. Az ingatlan egy saját használatú 450m2-es telekkel rendelkezik.
Műszaki paraméterek:
74m2-es családi ház
20m2 épített terasz (hidegburkolattal)
30-as téglafal (porotherm X-therm klíma tégla)
10-es válaszfalak
15cm homlokzati hőszigetelés
450m2-es saját telek
8 kW-os ELECTROLUX hőszivattyú + padlófűtés
150-literes hőtárolós melegvíztartály
H-tarifás mérőóra
3x16 Amper
három rétegű műanyag nyílászárók
rejtett redőny tok előkészítés
1db kerti csap
1db térkövezett kocsibeálló
oldalhatárokon 3D kerítés
antracit beton tetőcserép
választható beltéri ajtók
választható csaptelepek és szaniterek
választható burkolatok
A kivitelező cégről: Az ingatlan építését egy több éve megbízhatóan működő Székesfehérvári bejelentésű építőipari vállalkozás kordinálja. Több, már elkészült székesfehérváron is megtekinthető referencia ingatlant áll rendelkezésre, hogy Ön is meggyőződjön a megfelelő minőségű kivitelezésről.
FIzetési konstrukció: Rugalmas fizetési ütem biztosítja a gördülékeny együttműködést, ami minding a vásárló igényeihez megfelelően van igazítva.
Ha felkeltette érdeklődését ez az eladó iszkaszentgyörgyi családi ház, vagy bármely más családi ház és bővebb információt szeretne, keressen bizalommal.Hivatkozási szám: #181146
Az Openhouse Székesfehérvár Ingatlaniroda tagjaként várom Önt az országos hálózatunk teljes kínálatával.
A családi ház vásárláshoz hitelt igényelne? Ingyenes hitelközvetítéssel segít Önnek bankfüggetlen hitelszakértőnk.
További szolgáltatásainkkal (pl. értékbecslés, energetikai tanúsítvány, jogi háttér) is segítjük Önt a vásárlásban.
Az otthon érték. Az ingatlan üzlet.