Eladó Ház- házrész
Hirdetéskód: 9227795
Openhouse Székesfehérvár Ingatlaniroda
Felújításhoz személyi kölcsönt keres? Kalkuláljon itt! →
Ez a hirdetés megfelelhet a FIX 3%-os programnak.
Tudj meg többet a részletekről itt.
83.00 m2
ALAPTERÜLET3
SZOBASZÁMnincs megadva
ÉPÍTÉSEgyéb fűtés
FŰTÉS- CSOK igénybe vehető nem
- Tetőtér beépíthető nem
- Építés éve 2025
- Fűtés Egyéb fűtés
- Klíma nem
- Szigetelt nem
A+++
A++
A+
A
B
C
D
E
F
G
H
I
Az ingatlan leírása
Az Openhouse Székesfehérvár Ingatlaniroda kínálatában eladó a #178740 hivatkozási számú iszkaszentgyörgyi ikerház.
Modern családi házak kiemelkedő energetikával és prémium felszereltséggel!
Iszkaszentgyörgyön a Viola Lakóparkban eladó, 2 vadonatúj, kiváló energetikai besorolású családi ház, amely ötvözi a modern építészeti megoldásokat a prémium minőségű kivitelezéssel és a legújabb gépészeti rendszerekkel. A telken 2 különálló ház kerül megépítésre, autóbeálló kapcsolattal, a telekre történő behajtás térkövezett úton biztosított.
MODERN HÁZ-MODERN KÖRNYEZET A VIOLA LAKÓPARBAN.
Új építésű, ENERGIATAKARÉKOS, 56m2-es és 76m2-es hasznos lakóterű földszintes, ÖSSZKOMFORTOS családi házak várják első tulajdonosukat!
Az ingatlanokat napfényes és tágas terek jellemzik, elosztásuk rendkívül átgondolt. Az egymástól független házak, KÜLÖN BEJÁRATTAL, AUTÓBEÁLLÓVAL, KIZÁRÓLAGOS TELEKHASZNÁLATTAL és TERASSZAL lesznek kialakítva! A saját használatú telekrészek területe 450m2.
Kiemelkedő hőszigetelés és energiahatékonyság: Az épületek „A” kategóriás energetikai minősítéssel rendelkeznek, közel nulla energiaigényű kialakítással. A falazat homlokzati hőátbocsátási tényezője kiváló: 0,135 W/m²K értékű. A padlók és födémek szintén prémium szigetelést kapnak, így az épület hőtartása télen-nyáron kiváló. Külső hőszigetelő rendszer típusa: Masterplast Thermomaster szigetelési rendszer 15cm grafitos EPS és 15cm XPS lábazati szigetelőanyaggal.
Korszerű gépészet: Hőszivattyús hűtés-fűtés és szellőzés. A ház helyiségenként szabályozható, Gree levegő-levegő oldalfali hőszivattyús fűtési és hűtési rendszerrel van felszerelve, amely WiFi-vel vezérelhető beltéri egységekkel rendelkezik. A fürdő, WC és háztartási helyiség külön ventilációval, a nappali-konyha-étkező pedig egy Fischer decentralizált, automatizált szellőztető rendszerrel van ellátva (CO₂- és páratartalom érzékelős vezérlés).
Prémium nyílászárók és akusztikai komfort: 3 rétegű üvegezés, argon gázos töltéssel, meleg peremes kialakítással, résszellőző funkcióval ellátva. Cool-Lite Xtreme hővédő üvegek – a nyári hőterhelés akár 61%-át visszaverik. Kiváló hangszigetelés, 58 dB-es falhangcsillapítás. Ablakok típusai: Gealan Linear 74mm 3rétegű melegperemes hővédő üvegezés.
Okos energiahasználat: Használati melegvíz előállítás energiavisszanyeréssel, amivel sokat spórolhat. A használati melegvíz a Gree 200 literes, Multi kültéri egységről üzemeltetett tároló, elektromos kiegészítéssel – okosvezérléssel. A rendszer nagy előnye, hogy nyáron – amikor az épületet hűteni kell, akkor a felszabaduló hulladékhőből fűti a rendszer a használati melegvizét. Ez a ma elérhető legtakarékosabb műszaki megoldás, amivel nyáron nagyon sok energia spórolható meg. HMV hőmérséklet +35fok és +55fok között állítható be. Mindegyik épülethez H tarifás kedvezményes áramszolgáltatás biztosított.
Az alábbi tételek a katalógus alapján választhatóak és a vételár tartalmazza:
Csaptelepek
Wc + nyomólap
Kád
Zuhanykabin, több méretben + állítható zuhany ajtó
Mosdószekrény, 2 méretben
Beltéri ajtók
Bejárati ajtó
Kilincsek
Kapcsolók és szerelvények
Beltéri lámpatestek
Burkolatok:
Vizes helyiségekben a padlón hideg burkolat, a falakon SPC burkolat a katalógus alapján választható.
A többi helyiségben SPC burkolat a katalógus szerint választható.
„A” lakóegység, helyiséglista:
Előtér: 2.97m2 (SPC burkolat)
Wc: 1.52m2 (Kerámia és SPC burkolat)
Fürdő: 4.75m2 (Kerámia és SPC burkolat)
Konyha + Étkező: 5.74m2 (SPC burkolat)
Nappali: 18.05m2 (SPC burkolat)
Szoba: 8.58m2 (SPC burkolat)
Szoba: 9.08m2 (SPC burkolat)
Közlekedő: 2.32m2 (SPC burkolat)
Tároló: 2.65m2 (SPC burkolat)
Terasz: 15m2 (Kerámiaburkolat)
„A” lakóegység összes hasznos alapterülete: 55.66m2
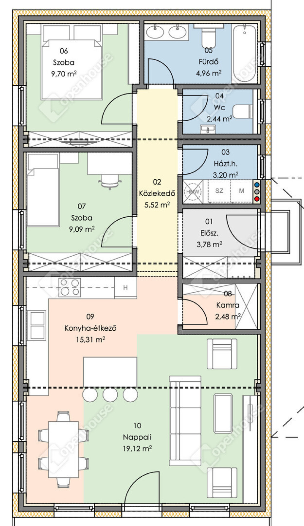
„B” lakóegység, helyiséglista:
Előtér: 3.78m2 (SPC burkolat)
Wc: 2.44m2 (Kerámia és SPC burkolat)
Közlekedő: 5.52m2 (SPC burkolat)
Fürdő: 4.96m2 (Kerámia és SPC burkolat)
Háztartási helyiség: 3.2m2 (SPC burkolat)
Kamra: 2.48m2 (SPC burkolat)
Konyha + Étkező: 15.31m2 (SPC burkolat)
Nappali: 19.12m2 (SPC burkolat)
Szoba: 9.09m2 (SPC burkolat)
Szoba: 9.70m2 (SPC burkolat)
Terasz: 15m2 (Kerámiaburkolat)
„B” lakóegység összes hasznos alapterülete: 75.6m2
Ide tényleg csak költözni kell!
Babaváró, CSOK Plusz és a 3%-os Otthon Start támogatott lakáshitel is igényelhető. Bankfüggetlen hitel ügyintézőnk segít megtalálni Önnek a legmegfelelőbb hitel konstrukciót!
Igény szerint ügyvédet is biztosítunk az adásvételhez!
Ne hagyja ki ezt a páratlan lehetőséget válassza álmai otthonát még ma! Megtekinthető előre egyeztetett időpontban. További kérdés esetén keressen kérem bizalommal!
Ha felkeltette érdeklődését ez az eladó iszkaszentgyörgyi ikerház, vagy bármely más ikerház és bővebb információt szeretne, keressen bizalommal.Hivatkozási szám: #178740
Az Openhouse Székesfehérvár Ingatlaniroda tagjaként várom Önt az országos hálózatunk teljes kínálatával.
A ikerház vásárláshoz hitelt igényelne? Ingyenes hitelközvetítéssel segít Önnek bankfüggetlen hitelszakértőnk.
További szolgáltatásainkkal (pl. értékbecslés, energetikai tanúsítvány, jogi háttér) is segítjük Önt a vásárlásban.
Az otthon érték. Az ingatlan üzlet.
Modern családi házak kiemelkedő energetikával és prémium felszereltséggel!
Iszkaszentgyörgyön a Viola Lakóparkban eladó, 2 vadonatúj, kiváló energetikai besorolású családi ház, amely ötvözi a modern építészeti megoldásokat a prémium minőségű kivitelezéssel és a legújabb gépészeti rendszerekkel. A telken 2 különálló ház kerül megépítésre, autóbeálló kapcsolattal, a telekre történő behajtás térkövezett úton biztosított.
MODERN HÁZ-MODERN KÖRNYEZET A VIOLA LAKÓPARBAN.
Új építésű, ENERGIATAKARÉKOS, 56m2-es és 76m2-es hasznos lakóterű földszintes, ÖSSZKOMFORTOS családi házak várják első tulajdonosukat!
Az ingatlanokat napfényes és tágas terek jellemzik, elosztásuk rendkívül átgondolt. Az egymástól független házak, KÜLÖN BEJÁRATTAL, AUTÓBEÁLLÓVAL, KIZÁRÓLAGOS TELEKHASZNÁLATTAL és TERASSZAL lesznek kialakítva! A saját használatú telekrészek területe 450m2.
Kiemelkedő hőszigetelés és energiahatékonyság: Az épületek „A” kategóriás energetikai minősítéssel rendelkeznek, közel nulla energiaigényű kialakítással. A falazat homlokzati hőátbocsátási tényezője kiváló: 0,135 W/m²K értékű. A padlók és födémek szintén prémium szigetelést kapnak, így az épület hőtartása télen-nyáron kiváló. Külső hőszigetelő rendszer típusa: Masterplast Thermomaster szigetelési rendszer 15cm grafitos EPS és 15cm XPS lábazati szigetelőanyaggal.
Korszerű gépészet: Hőszivattyús hűtés-fűtés és szellőzés. A ház helyiségenként szabályozható, Gree levegő-levegő oldalfali hőszivattyús fűtési és hűtési rendszerrel van felszerelve, amely WiFi-vel vezérelhető beltéri egységekkel rendelkezik. A fürdő, WC és háztartási helyiség külön ventilációval, a nappali-konyha-étkező pedig egy Fischer decentralizált, automatizált szellőztető rendszerrel van ellátva (CO₂- és páratartalom érzékelős vezérlés).
Prémium nyílászárók és akusztikai komfort: 3 rétegű üvegezés, argon gázos töltéssel, meleg peremes kialakítással, résszellőző funkcióval ellátva. Cool-Lite Xtreme hővédő üvegek – a nyári hőterhelés akár 61%-át visszaverik. Kiváló hangszigetelés, 58 dB-es falhangcsillapítás. Ablakok típusai: Gealan Linear 74mm 3rétegű melegperemes hővédő üvegezés.
Okos energiahasználat: Használati melegvíz előállítás energiavisszanyeréssel, amivel sokat spórolhat. A használati melegvíz a Gree 200 literes, Multi kültéri egységről üzemeltetett tároló, elektromos kiegészítéssel – okosvezérléssel. A rendszer nagy előnye, hogy nyáron – amikor az épületet hűteni kell, akkor a felszabaduló hulladékhőből fűti a rendszer a használati melegvizét. Ez a ma elérhető legtakarékosabb műszaki megoldás, amivel nyáron nagyon sok energia spórolható meg. HMV hőmérséklet +35fok és +55fok között állítható be. Mindegyik épülethez H tarifás kedvezményes áramszolgáltatás biztosított.
Az alábbi tételek a katalógus alapján választhatóak és a vételár tartalmazza:
Csaptelepek
Wc + nyomólap
Kád
Zuhanykabin, több méretben + állítható zuhany ajtó
Mosdószekrény, 2 méretben
Beltéri ajtók
Bejárati ajtó
Kilincsek
Kapcsolók és szerelvények
Beltéri lámpatestek
Burkolatok:
Vizes helyiségekben a padlón hideg burkolat, a falakon SPC burkolat a katalógus alapján választható.
A többi helyiségben SPC burkolat a katalógus szerint választható.
„A” lakóegység, helyiséglista:
Előtér: 2.97m2 (SPC burkolat)
Wc: 1.52m2 (Kerámia és SPC burkolat)
Fürdő: 4.75m2 (Kerámia és SPC burkolat)
Konyha + Étkező: 5.74m2 (SPC burkolat)
Nappali: 18.05m2 (SPC burkolat)
Szoba: 8.58m2 (SPC burkolat)
Szoba: 9.08m2 (SPC burkolat)
Közlekedő: 2.32m2 (SPC burkolat)
Tároló: 2.65m2 (SPC burkolat)
Terasz: 15m2 (Kerámiaburkolat)
„A” lakóegység összes hasznos alapterülete: 55.66m2
„B” lakóegység, helyiséglista:
Előtér: 3.78m2 (SPC burkolat)
Wc: 2.44m2 (Kerámia és SPC burkolat)
Közlekedő: 5.52m2 (SPC burkolat)
Fürdő: 4.96m2 (Kerámia és SPC burkolat)
Háztartási helyiség: 3.2m2 (SPC burkolat)
Kamra: 2.48m2 (SPC burkolat)
Konyha + Étkező: 15.31m2 (SPC burkolat)
Nappali: 19.12m2 (SPC burkolat)
Szoba: 9.09m2 (SPC burkolat)
Szoba: 9.70m2 (SPC burkolat)
Terasz: 15m2 (Kerámiaburkolat)
„B” lakóegység összes hasznos alapterülete: 75.6m2
Ide tényleg csak költözni kell!
Babaváró, CSOK Plusz és a 3%-os Otthon Start támogatott lakáshitel is igényelhető. Bankfüggetlen hitel ügyintézőnk segít megtalálni Önnek a legmegfelelőbb hitel konstrukciót!
Igény szerint ügyvédet is biztosítunk az adásvételhez!
Ne hagyja ki ezt a páratlan lehetőséget válassza álmai otthonát még ma! Megtekinthető előre egyeztetett időpontban. További kérdés esetén keressen kérem bizalommal!
Ha felkeltette érdeklődését ez az eladó iszkaszentgyörgyi ikerház, vagy bármely más ikerház és bővebb információt szeretne, keressen bizalommal.Hivatkozási szám: #178740
Az Openhouse Székesfehérvár Ingatlaniroda tagjaként várom Önt az országos hálózatunk teljes kínálatával.
A ikerház vásárláshoz hitelt igényelne? Ingyenes hitelközvetítéssel segít Önnek bankfüggetlen hitelszakértőnk.
További szolgáltatásainkkal (pl. értékbecslés, energetikai tanúsítvány, jogi háttér) is segítjük Önt a vásárlásban.
Az otthon érték. Az ingatlan üzlet.