Eladó Ház- házrész
Hirdetéskód: 9182351
JAVDERON777 KFT
715 m2
ALAPTERÜLET4
SZOBASZÁMnincs megadva
ÉPÍTÉSnincs megadva
FŰTÉS- CSOK igénybe vehető nem
- Tetőtér beépíthető nem
- Építés éve 2002
- Klíma nem
- Szigetelt nem
A+++
A++
A+
A
B
C
D
E
F
G
H
I
Az ingatlan leírása
Pest vármegye, Isaszeg - csendes, családbarát környéken eladó egy tágas, 184,5 nm-es családi ház!
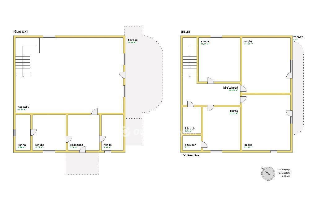
Eladásra kínálok Isaszeg egyik legkedveltebb részén, nyugodt és rendezett utcában egy 2002-ben épült, kétszintes, 4 szobás családi házat. Az ingatlan 715 nm-es telken fekszik, és kiváló választás mindazoknak, akik szeretnének biztonságos, barátságos környezetben élni, mégis könnyen elérni a fővárost.
A ház tágas és élhető elrendezésű: a földszinten nagy, 65 nm-es nappali adja az otthon központját - ideális közös családi időtöltésre, vendégek fogadására vagy akár játékra a gyerekekkel. A földszinten található még egy praktikus konyha, kamra, fürdőszoba, valamint egy hangulatos, terasz, ahol kényelmesen lehet reggelizni vagy pihenni a kertre nézve.
Az emeleten három külön nyíló hálószoba, egy tágas fürdőszoba, illetve egy szauna kialakítására előkészített helyiség is helyet kapott. A szobák világosak, jól bútorozhatók, a teraszkapcsolat itt is biztosított.
A ház összközműves, tehermentes, CSOK Plusz, Babaváró vagy piaci hitel igénybevételével is megvásárolható. Kívül-belül jó állapotú, folyamatosan karbantartott otthon, amely azonnal költözhető. A képeken látható bútorzat megállapodás kérdése.
A környék rendezett, csendes, biztonságos - a közvetlen szomszédok barátságosak, sőt, két rendőr is van köztük, ami tovább növeli a biztonságérzetet. Az egész utca újszerű, családias hangulatú, ideális kisgyermekeseknek is.
Ez a ház tökéletes választás, ha szeretne tágas, kényelmes otthont Isaszeg egyik legjobb részén - közel a természethez, mégis minden fontos szolgáltatás elérhető közelségében.
Megtekintéssel kapcsolatban keressen bizalommal, rugalmasan tudom mutatni előzetes egyeztetés alapján.
A vásárláshoz az OTP Bank pénzügyi szolgáltatásait ajánlom (CSOK Plusz, Babaváró, piaci hitelek), melyek kedvezményes igénylésében is szívesen segítek!
Eladásra kínálok Isaszeg egyik legkedveltebb részén, nyugodt és rendezett utcában egy 2002-ben épült, kétszintes, 4 szobás családi házat. Az ingatlan 715 nm-es telken fekszik, és kiváló választás mindazoknak, akik szeretnének biztonságos, barátságos környezetben élni, mégis könnyen elérni a fővárost.
A ház tágas és élhető elrendezésű: a földszinten nagy, 65 nm-es nappali adja az otthon központját - ideális közös családi időtöltésre, vendégek fogadására vagy akár játékra a gyerekekkel. A földszinten található még egy praktikus konyha, kamra, fürdőszoba, valamint egy hangulatos, terasz, ahol kényelmesen lehet reggelizni vagy pihenni a kertre nézve.
Az emeleten három külön nyíló hálószoba, egy tágas fürdőszoba, illetve egy szauna kialakítására előkészített helyiség is helyet kapott. A szobák világosak, jól bútorozhatók, a teraszkapcsolat itt is biztosított.
A ház összközműves, tehermentes, CSOK Plusz, Babaváró vagy piaci hitel igénybevételével is megvásárolható. Kívül-belül jó állapotú, folyamatosan karbantartott otthon, amely azonnal költözhető. A képeken látható bútorzat megállapodás kérdése.
A környék rendezett, csendes, biztonságos - a közvetlen szomszédok barátságosak, sőt, két rendőr is van köztük, ami tovább növeli a biztonságérzetet. Az egész utca újszerű, családias hangulatú, ideális kisgyermekeseknek is.
Ez a ház tökéletes választás, ha szeretne tágas, kényelmes otthont Isaszeg egyik legjobb részén - közel a természethez, mégis minden fontos szolgáltatás elérhető közelségében.
Megtekintéssel kapcsolatban keressen bizalommal, rugalmasan tudom mutatni előzetes egyeztetés alapján.
A vásárláshoz az OTP Bank pénzügyi szolgáltatásait ajánlom (CSOK Plusz, Babaváró, piaci hitelek), melyek kedvezményes igénylésében is szívesen segítek!