Eladó Ház- házrész
Hirdetéskód: 9266095
OTP Ingatlanpont Siófok
107.00 m2
ALAPTERÜLET3
SZOBASZÁMnincs megadva
ÉPÍTÉSnincs megadva
FŰTÉS- CSOK igénybe vehető nem
- Tetőtér beépíthető nem
- Építés éve 1970
- Klíma nem
- Szigetelt nem
A+++
A++
A+
A
B
C
D
E
F
G
H
I
Az ingatlan leírása
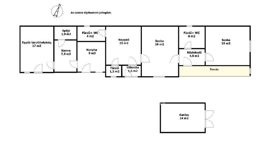
Iregszemcsén eladó egy 110 m2-es, jó állapotú, folyamatosan karbantartott családi ház 1880 m2-es telken, csendes, nyugodt utcában, a Balatontól mindössze 28 km-re. Az ingatlan három szobával és két fürdőszobával rendelkezik, belső tereinek állapota kifejezetten jó, a szobák esztétikailag rendezettek, javítást nem igényelnek, a falak glettelése megfelelő, csupán igény szerint egy tisztasági festés vagy színváltás lehet indokolt.
A felújított fürdőszoba 2018-ban készült, modern, zuhanyzós kialakítású, míg a másik fürdőszoba kádas, villanybojlerrel ellátott, és felújításra szorul. A szobák aljzata betonos, a tetőszerkezet jó állapotú, szerkezeti beavatkozást nem igényel.
A lakóépülethez számos melléképület tartozik, valamint egy különálló, fedett garázs és egy 12 lépcsős pince is rendelkezésre áll. A házzal egybeépített jelenleg tároló funkciót ellátó helyiség további lakószobává alakítható. A nyílászárók nagy része korszerű, műanyag, szigetelt ablakokra lett cserélve, redőnnyel és szúnyoghálóval felszerelve.
A fűtési rendszer korszerűsített, 2018?2019-ben vegyes tüzelésű fa kazán került beépítésre, emellett kombi gázkazán is rendelkezésre áll, mely szintén az elmúlt években lett kialakítva az új csövezési rendszerrel és radiátorokkal együtt. A gáz be van vezetve az ingatlanba, a szennyvízhálózatra csatlakoztatott, így a közművek teljes körűen biztosítottak.
A tágas, rendezett udvar kiváló lehetőséget nyújt pihenésre, kertészkedésre vagy akár gazdálkodásra is, melyet egy fedett kerti filagória tesz még hangulatosabbá. A nagy méretű telek, a csendes környezet és a Balaton közelsége miatt az ingatlan ideális választás azonnal költözhető családi otthonnak, nyaralónak vagy befektetésnek egyaránt. Az Otthon Start Program feltételeinek megfelel.
A felújított fürdőszoba 2018-ban készült, modern, zuhanyzós kialakítású, míg a másik fürdőszoba kádas, villanybojlerrel ellátott, és felújításra szorul. A szobák aljzata betonos, a tetőszerkezet jó állapotú, szerkezeti beavatkozást nem igényel.
A lakóépülethez számos melléképület tartozik, valamint egy különálló, fedett garázs és egy 12 lépcsős pince is rendelkezésre áll. A házzal egybeépített jelenleg tároló funkciót ellátó helyiség további lakószobává alakítható. A nyílászárók nagy része korszerű, műanyag, szigetelt ablakokra lett cserélve, redőnnyel és szúnyoghálóval felszerelve.
A fűtési rendszer korszerűsített, 2018?2019-ben vegyes tüzelésű fa kazán került beépítésre, emellett kombi gázkazán is rendelkezésre áll, mely szintén az elmúlt években lett kialakítva az új csövezési rendszerrel és radiátorokkal együtt. A gáz be van vezetve az ingatlanba, a szennyvízhálózatra csatlakoztatott, így a közművek teljes körűen biztosítottak.
A tágas, rendezett udvar kiváló lehetőséget nyújt pihenésre, kertészkedésre vagy akár gazdálkodásra is, melyet egy fedett kerti filagória tesz még hangulatosabbá. A nagy méretű telek, a csendes környezet és a Balaton közelsége miatt az ingatlan ideális választás azonnal költözhető családi otthonnak, nyaralónak vagy befektetésnek egyaránt. Az Otthon Start Program feltételeinek megfelel.