Eladó Ház- házrész
Hirdetéskód: 9190319

OTP Ingatlanpont Siófok

565 m2
ALAPTERÜLET
2
SZOBASZÁM
nincs megadva
ÉPÍTÉS
nincs megadva
FŰTÉS
  • CSOK igénybe vehető nem
  • Tetőtér beépíthető nem
  • Építés éve 1960
  • Klíma nem
  • Szigetelt nem
Energetikai besorolás: Nincs meghatározva
A+++
A++
A+
A
B
C
D
E
F
G
H
I

Az ingatlan leírása

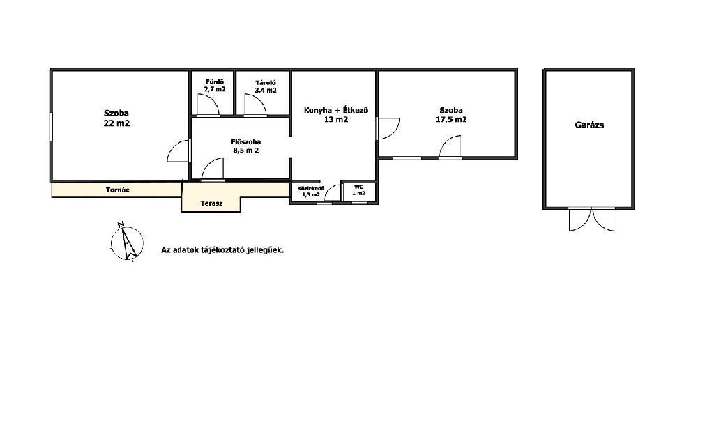
Családi ház eladó Iregszemcsén, a Balatontól mindössze 27 km-re, Tamásitól pedig 13 km-re. Az ingatlan egy 565 m2-es, teljesen körbekerített telken helyezkedik el, amely füvesített és gyümölcsfákkal telepített, így ideális pihenésre, kertészkedésre is. A 68 m2-es lakóház az 1960-as években épült, vegyes falazatú, jó állapotban lévő ingatlan. Fűtéséről cserépkályha és hűtő-fűtő klímaberendezés gondoskodik, a melegvizet villanybojler biztosítja. A ház külső téglafala 10 cm vastag szigetelést kapott, hőszigetelt műanyag nyílászárókkal rendelkezik. Tíz évvel ezelőtt teljeskörű villanyvezeték- és részleges vízvezetékcsere történt. A falak és a padlás száraz. A ház gondosan karbantartott. A lakótérben két tágas szoba, konyha, fürdőszoba, külön WC, előtér és kamra található. Az udvarban egy 32 m2-es, fedett, aknával ellátott betonos garázs épült öt éve. Az ingatlan jelenleg is lakott, a berendezés megbeszélés tárgyát képezi. Ez a ház ideális választás lehet pároknak vagy 1-2 gyermekes családoknak, de a Balaton és a Tamási termálfürdő közelsége miatt nyaralónak is tökéletes. A településen megtalálható bölcsőde, óvoda, általános iskola és gyógypedagógiai intézmény, továbbá fogorvosi és háziorvosi rendelők, gyógyszertár, posta, dohánybolt, benzinkút, étterem, pizzéria és több helyi vállalkozás is működik. A ház a központtól mindössze 6 percnyi kerékpárútra, csendes utcában található. A legközelebbi buszmegálló gyalog mindössze 3 perc alatt elérhető. Az ingatlan per-és tehermentes. Megfelel az Otthon Start program feltételeinek.
További információért és megtekintésért kérem, keressen bizalommal!

Térkép

A hirdető elérhetősége

OTP Ingatlanpont Siófok

Kránicz Éva
+36 70 377