Eladó Ház- házrész
Hirdetéskód: 9258242
5100 Jászberény Szentháromság tér 2. - OTP Ingatlanpont Iroda
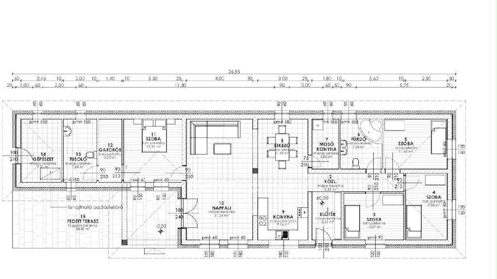
144.00 m2
ALAPTERÜLET4
SZOBASZÁMnincs megadva
ÉPÍTÉSElektromos
FŰTÉS- CSOK igénybe vehető nem
- Tetőtér beépíthető nem
- Építés éve 2021
- Fűtés Elektromos
- Klíma nem
- Szigetelt nem
A+++
A++
A+
A
B
C
D
E
F
G
H
I
Az ingatlan leírása
Eladó egy kiváló állapotú, 2021-ben épült, 144 m2-es családi ház egy csendes, barátságos zsákutcában, 1017 m2-es saját telken. Az ingatlan különösen ideális választás nagycsaládosok számára, hiszen a lakóközösség családcentrikus, a környezet pedig biztonságos és nyugodt, igazi otthonteremtő hely.
A ház közvetlen szomszédságában található egy különleges kis park, ahol az óvodások minden évben fát ültetnek, saját nevükkel ellátott táblával. Ez a megható hagyomány is tükrözi a környék közösségi szellemét. A park mellett modern, jól felszerelt játszótér várja a legkisebbeket, így a gyerekek számára ez a hely valódi élményt jelent a mindennapokban is.
Az épület PTH 30 kerámia falazóblokkokból épült, beton sávalappal és vasbeton koszorúval. A tető héjazata Bramac beton cserép, a födém fa gerendás kivitelű. A külső homlokzat EPS hőszigetelést kapott, melyre igényes nemesvakolat került, esztétikus és időtálló megjelenést biztosítva. A fűtés padlófűtésen keresztül, a hűtés pedig modern klímaberendezéssel történik, a kényelem egész évben garantált.
A ház belső elrendezése tágas és átgondolt, ideális többgyermekes családok számára, de akár két generáció is kényelmesen elfér benne. A hatalmas udvar lehetőséget ad játékra, kertészkedésre, kikapcsolódásra is.
Ez az ingatlan nem csupán egy ház, hanem egy valódi otthon lehet, olyan hely, ahol a gyerekek is gyökeret ereszthetnek és ahol a család minden tagja megtalálja a saját nyugalmát.
Amennyiben olyan házat keres, amely egyszerre modern, otthonos és biztonságos, érdemes ezt az ingatlant személyesen is megnézni.
Hitelre lenne szüksége? Az OTP Ingatlanponton keresztül vásárló ügyfelek számára kedvező hitelkonstrukciókat kínálunk, teljes körű ügyintézéssel.
123000000 Ft
A ház közvetlen szomszédságában található egy különleges kis park, ahol az óvodások minden évben fát ültetnek, saját nevükkel ellátott táblával. Ez a megható hagyomány is tükrözi a környék közösségi szellemét. A park mellett modern, jól felszerelt játszótér várja a legkisebbeket, így a gyerekek számára ez a hely valódi élményt jelent a mindennapokban is.
Az épület PTH 30 kerámia falazóblokkokból épült, beton sávalappal és vasbeton koszorúval. A tető héjazata Bramac beton cserép, a födém fa gerendás kivitelű. A külső homlokzat EPS hőszigetelést kapott, melyre igényes nemesvakolat került, esztétikus és időtálló megjelenést biztosítva. A fűtés padlófűtésen keresztül, a hűtés pedig modern klímaberendezéssel történik, a kényelem egész évben garantált.
A ház belső elrendezése tágas és átgondolt, ideális többgyermekes családok számára, de akár két generáció is kényelmesen elfér benne. A hatalmas udvar lehetőséget ad játékra, kertészkedésre, kikapcsolódásra is.
Ez az ingatlan nem csupán egy ház, hanem egy valódi otthon lehet, olyan hely, ahol a gyerekek is gyökeret ereszthetnek és ahol a család minden tagja megtalálja a saját nyugalmát.
Amennyiben olyan házat keres, amely egyszerre modern, otthonos és biztonságos, érdemes ezt az ingatlant személyesen is megnézni.
Hitelre lenne szüksége? Az OTP Ingatlanponton keresztül vásárló ügyfelek számára kedvező hitelkonstrukciókat kínálunk, teljes körű ügyintézéssel.
123000000 Ft