Eladó Ház- házrész
Hirdetéskód: 9195670
Duna House - Új-Lak Bázis Kft.
1000 m2
ALAPTERÜLET5
SZOBASZÁMnincs megadva
ÉPÍTÉSnincs megadva
FŰTÉS- CSOK igénybe vehető nem
- Tetőtér beépíthető nem
- Építés éve 2025
- Klíma nem
- Szigetelt nem
A+++
A++
A+
A
B
C
D
E
F
G
H
I
Az ingatlan leírása
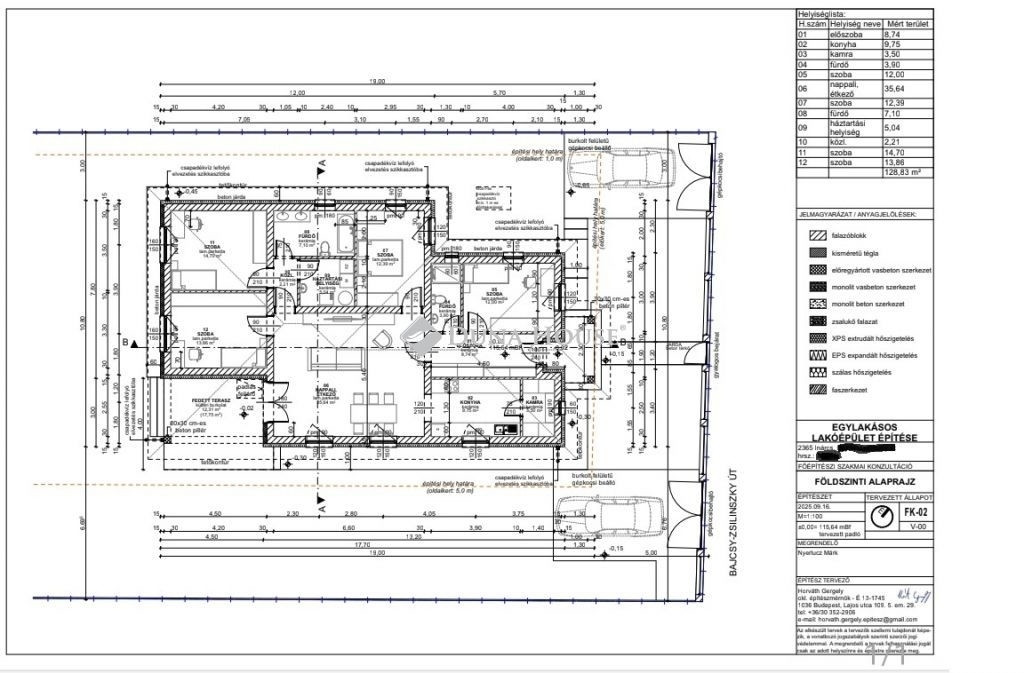
Inárcson, újépítésű környezetben eladó egy modern családi ház, amely 2026 II. negyedévében készül el. A 138 nm-es ingatlanhoz egy 17 nm-es terasz és egy 1000 nm-es saját használatú kert is tartozik, amely tökéletes lehetőséget biztosít a pihenésre és kikapcsolódásra. Emellett az ingatlanhoz kettő saját használatú gépkocsibeálló is rendelkezésre áll, biztosítva a kényelmes parkolást.
A ház tágas és világos terekkel rendelkezik. Az amerikai konyhás nappali és étkező egy légtérben kapott helyet, összesen 45 nm-en, kelet-délkeleti tájolással. Innen közvetlen kijárat nyílik a 13,8 nm-es teraszra, ahonnan az egész kert belátható. Az ingatlanban négy hálószoba, két fürdőszoba WC-vel, valamint külön tároló, háztartási helyiség és gardróbszoba is kialakításra kerül. A fűtésről padlófűtés gondoskodik, amelyet hőszivattyú működtet, biztosítva a hatékony és gazdaságos fűtést.
A környék nyugodt, családbarát, és minden fontos szolgáltatás könnyen elérhető, beleértve az iskolát, óvodát és bevásárlási lehetőségeket is. Ha egy új, modern és kényelmes otthont keres Erdőkertesen, ez az ingatlan kiváló választás lehet.
Kérdés vagy megtekintés esetén hívjon akkár hétvégén is!
A ház tágas és világos terekkel rendelkezik. Az amerikai konyhás nappali és étkező egy légtérben kapott helyet, összesen 45 nm-en, kelet-délkeleti tájolással. Innen közvetlen kijárat nyílik a 13,8 nm-es teraszra, ahonnan az egész kert belátható. Az ingatlanban négy hálószoba, két fürdőszoba WC-vel, valamint külön tároló, háztartási helyiség és gardróbszoba is kialakításra kerül. A fűtésről padlófűtés gondoskodik, amelyet hőszivattyú működtet, biztosítva a hatékony és gazdaságos fűtést.
A környék nyugodt, családbarát, és minden fontos szolgáltatás könnyen elérhető, beleértve az iskolát, óvodát és bevásárlási lehetőségeket is. Ha egy új, modern és kényelmes otthont keres Erdőkertesen, ez az ingatlan kiváló választás lehet.
Kérdés vagy megtekintés esetén hívjon akkár hétvégén is!