Eladó Ház- házrész
Hirdetéskód: 9306664
Debrecen Kürtös utca 8 - OTP Ingatlanpont Iroda
Felújításhoz személyi kölcsönt keres? Kalkuláljon itt! →
Ez a hirdetés megfelelhet a FIX 3%-os programnak.
Tudj meg többet a részletekről itt.
65.00 m2
ALAPTERÜLET2
SZOBASZÁMnincs megadva
ÉPÍTÉSGáz (cirkó)
FŰTÉS- CSOK igénybe vehető nem
- Belső szintek 1
- Tetőtér beépíthető nem
- Építés éve 1985
- Fűtés Gáz (cirkó)
- Klíma nem
- Szigetelt nem
A+++
A++
A+
A
B
C
D
E
F
G
H
I
Az ingatlan leírása
Debrecentől mindössze 13 km-re, Hosszúpályiban, csendes, kis forgalmú utcában, jó szomszédságú környezetben eladó egy 65 m2-es, korszerűsített családi ház egy 939 m2-es telken.
1985-ben épült, beton alappal, HB30-as tégla falazattal és cserép héjazattal.
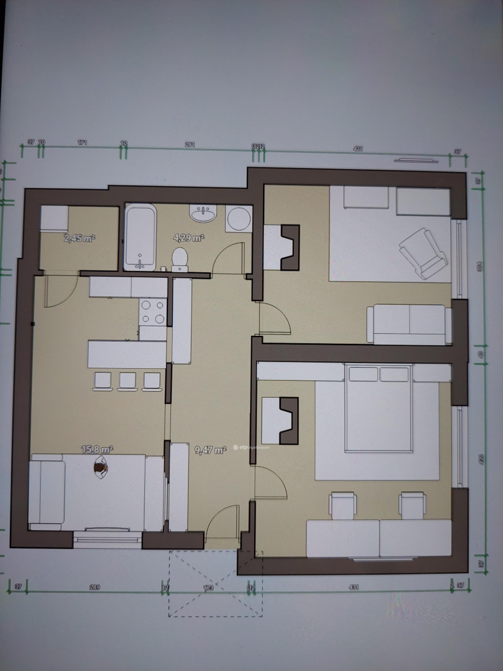
Helyiségei: nappali, két szoba, konyha étkezővel, kamra, fürdőszoba és közlekedő.
Az ingatlan többféle fűtési lehetőséggel rendelkezik, így rendkívül gazdaságosan fenntartható: gázkazános központi fűtés, 2 cserépkályha, 2 db hűtő-fűtő klíma. A meleg vizet jelenleg bojler biztosítja, de a gázkazán is képes melegvizet előállítani.
A konyhában elektromos tűzhely működik, de gázcsatlakozás is rendelkezésre áll.
Az ingatlan az elmúlt években jelentős felújításon és modernizáláson esett át, így azonnal költözhető, fenntartása pedig kifejezetten kedvező. Felújítások:
- új burkolatok (csempe, laminált padló)
- felújított, parkettázott, festett szobák
- teljesen megújított konyha (új bútorzat, átalakítás)
- fürdőszoba felújított burkolatokkal, új kézmosó
- 3 fázisú villany bevezetve
- új utcafronti kerítés
- 10 cm külső homlokzati szigetelés
- födémszigetelés
A telken számos melléképület található: 2 garázs (az egyik szerelőaknával), 3 műhely, nyári konyha, fás tároló, pince, állattartásra alkalmas ólak.
Autószerelőknek vagy vállalkozóknak kiváló lehetőség, hiszen a műhelyekben víz, villany és ipari áram is rendelkezésre áll, valamint egy tusoló is kialakításra került.
A telek 30%-ban beépíthető, így bővítésre vagy új épület kialakítására is lehetőség van.
A kert kiváló konyhakerti növénytermesztésre, a talaj tápanyagban gazdag. Az udvar és a kert jelenleg szabadon alakítható, így az új tulajdonos saját igényei szerint formálhatja.
Debrecen 10 perc autóval, buszmegálló kb. 10 perc sétára található, a járatok az iskolákhoz és műszakos munkarendhez vannak igazítva, összetartó, barátságos szomszédság a jellemző.
Az ingatlan összközműves és tehermentes.
Amennyiben a hirdetésben szereplő ingatlan felkeltette az érdeklődését, kérdéseivel forduljon hozzám bizalommal akár hétvégén is!
Megtekintésre telefonos egyeztetés alapján van lehetőség! Jöjjön el, nézzük meg együtt, tegyen ajánlatot!
Kedvezményes kamatozású lakásvásárlási és felújítási hitelek állami támogatással, Babaváró, Csok plusz és Start hitel ügyintézése az OTP hátterével irodánkban.
1985-ben épült, beton alappal, HB30-as tégla falazattal és cserép héjazattal.
Helyiségei: nappali, két szoba, konyha étkezővel, kamra, fürdőszoba és közlekedő.
Az ingatlan többféle fűtési lehetőséggel rendelkezik, így rendkívül gazdaságosan fenntartható: gázkazános központi fűtés, 2 cserépkályha, 2 db hűtő-fűtő klíma. A meleg vizet jelenleg bojler biztosítja, de a gázkazán is képes melegvizet előállítani.
A konyhában elektromos tűzhely működik, de gázcsatlakozás is rendelkezésre áll.
Az ingatlan az elmúlt években jelentős felújításon és modernizáláson esett át, így azonnal költözhető, fenntartása pedig kifejezetten kedvező. Felújítások:
- új burkolatok (csempe, laminált padló)
- felújított, parkettázott, festett szobák
- teljesen megújított konyha (új bútorzat, átalakítás)
- fürdőszoba felújított burkolatokkal, új kézmosó
- 3 fázisú villany bevezetve
- új utcafronti kerítés
- 10 cm külső homlokzati szigetelés
- födémszigetelés
A telken számos melléképület található: 2 garázs (az egyik szerelőaknával), 3 műhely, nyári konyha, fás tároló, pince, állattartásra alkalmas ólak.
Autószerelőknek vagy vállalkozóknak kiváló lehetőség, hiszen a műhelyekben víz, villany és ipari áram is rendelkezésre áll, valamint egy tusoló is kialakításra került.
A telek 30%-ban beépíthető, így bővítésre vagy új épület kialakítására is lehetőség van.
A kert kiváló konyhakerti növénytermesztésre, a talaj tápanyagban gazdag. Az udvar és a kert jelenleg szabadon alakítható, így az új tulajdonos saját igényei szerint formálhatja.
Debrecen 10 perc autóval, buszmegálló kb. 10 perc sétára található, a járatok az iskolákhoz és műszakos munkarendhez vannak igazítva, összetartó, barátságos szomszédság a jellemző.
Az ingatlan összközműves és tehermentes.
Amennyiben a hirdetésben szereplő ingatlan felkeltette az érdeklődését, kérdéseivel forduljon hozzám bizalommal akár hétvégén is!
Megtekintésre telefonos egyeztetés alapján van lehetőség! Jöjjön el, nézzük meg együtt, tegyen ajánlatot!
Kedvezményes kamatozású lakásvásárlási és felújítási hitelek állami támogatással, Babaváró, Csok plusz és Start hitel ügyintézése az OTP hátterével irodánkban.