Eladó Ház- házrész
Hirdetéskód: 9205721

Dabas Régió

FIX 3% Program

Ez a hirdetés megfelelhet a FIX 3%-os programnak.
Tudj meg többet a részletekről itt.

75 m2
ALAPTERÜLET
2
SZOBASZÁM
nincs megadva
ÉPÍTÉS
Elektromos
FŰTÉS
  • CSOK igénybe vehető nem
  • Tetőtér beépíthető nem
  • Fűtés Elektromos
  • Klíma nem
  • Szigetelt nem
Energetikai besorolás: Nincs meghatározva
A+++
A++
A+
A
B
C
D
E
F
G
H
I

Az ingatlan leírása

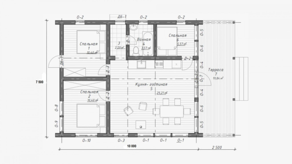
Hernádon, aszfaltozott, csendes utcában értékesítésre kínálok egy 75  m2-es könnyűszerkezetes családi házat.  A telek adottságaiból adódóan mérete a háznak:  7.5  méter széles  X  10 méter  hosszú. De lehet egyedileg hosszabb is a ház. A terasz 20 m2-es.   Az ingatlanban található 2 szoba, 1 hálószoba,  amerikai konyha, 1  fürdőszoba.  A közművek közül víz, villany, csatorna, gáz elérhető, bekötését a vevő kötteti be.  A fűtés elektromos infrapanelekkel, klímával megoldott, de külön megbeszélés szerint lehet más alternatíva is.  A telek 1800 m2-es.  Készpénzes ügyfeleknek eladó. A telek ára benne van az árban.  Megtelkinthető a telek: 

Térkép

A hirdető elérhetősége

Dabas Régió

Böszörményi Krisztina
+36 20 400