Eladó Ház- házrész
Hirdetéskód: 9311926
Eger Kertész utca 25 - OTP Ingatlanpont Iroda
Felújításhoz személyi kölcsönt keres? Kalkuláljon itt! →160.00 m2
ALAPTERÜLET5
SZOBASZÁMnincs megadva
ÉPÍTÉSGáz (cirkó)
FŰTÉS- CSOK igénybe vehető nem
- Tetőtér beépíthető nem
- Építés éve 1989
- Fűtés Gáz (cirkó)
- Klíma nem
- Szigetelt nem
A+++
A++
A+
A
B
C
D
E
F
G
H
I
Az ingatlan leírása
Heves Vármegye Hatvan! Napelemes családi ház eladó!
Hatvan csendes, természetközeli környezetében kínálunk megvételre egy igényesen felújított, 160 m2-es, kétszintes családi házat, amely tökéletes egyensúlyt teremt a modern kényelem és az otthon melegsége között. Az ingatlan minden részletében a praktikum és az elegancia találkozik.
Az otthon különlegességei:
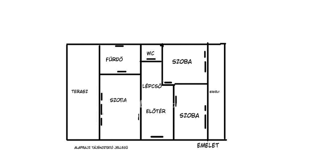
5 tágas, világos szoba, két szinten kialakított, teljes értékű élettér,
dupla komfort, fürdőszoba mindkét szinten, napfényben úszó nappali.
30 m2-es, impozáns emeleti terasz, amely tökéletes helyszíne a reggeli kávéknak vagy esti kikapcsolódásnak.
Műszaki tartalom és kényelem:
teljes körű, minőségi felújítás modern villamos- és vízhálózat,
korszerű, hőszigetelt nyílászárók. Napelemes rendszer, amely hosszú távon is gazdaságos fenntartást biztosít
Külső tér és életérzés:
A 2078 nm-es, tágas telek számtalan lehetőséget kínál, legyen szó pihenésről, kertészkedésről vagy akár egy exkluzív kerti élettér kialakításáról.
Teljes körű ügyintézéssel állunk az eladók és a vevők rendelkezésére! A kínálatunkból választott ingatlan finanszírozásához minősített fogyasztóbarát, piaci és kedvezményes hitel- és lízingkonstrukciókat kínálunk (lakásvásárlási hitel, szabad felhasználású hitel, babaváró hitel, 3% hitel, CSOK Plusz intézés, Otthonfelújítási Támogatás, egyéb felújítási hitelek). Az adásvételi szerződés megkötéséhez igény szerint megbízható ügyvédi közreműködést biztosítunk, és segítséget nyújtunk az adásvételhez kapcsolódó egyéb ügyek intézéséhez. Amennyiben felkeltettem érdeklődését, hívjon bizalommal!
Hatvan csendes, természetközeli környezetében kínálunk megvételre egy igényesen felújított, 160 m2-es, kétszintes családi házat, amely tökéletes egyensúlyt teremt a modern kényelem és az otthon melegsége között. Az ingatlan minden részletében a praktikum és az elegancia találkozik.
Az otthon különlegességei:
5 tágas, világos szoba, két szinten kialakított, teljes értékű élettér,
dupla komfort, fürdőszoba mindkét szinten, napfényben úszó nappali.
30 m2-es, impozáns emeleti terasz, amely tökéletes helyszíne a reggeli kávéknak vagy esti kikapcsolódásnak.
Műszaki tartalom és kényelem:
teljes körű, minőségi felújítás modern villamos- és vízhálózat,
korszerű, hőszigetelt nyílászárók. Napelemes rendszer, amely hosszú távon is gazdaságos fenntartást biztosít
Külső tér és életérzés:
A 2078 nm-es, tágas telek számtalan lehetőséget kínál, legyen szó pihenésről, kertészkedésről vagy akár egy exkluzív kerti élettér kialakításáról.
Teljes körű ügyintézéssel állunk az eladók és a vevők rendelkezésére! A kínálatunkból választott ingatlan finanszírozásához minősített fogyasztóbarát, piaci és kedvezményes hitel- és lízingkonstrukciókat kínálunk (lakásvásárlási hitel, szabad felhasználású hitel, babaváró hitel, 3% hitel, CSOK Plusz intézés, Otthonfelújítási Támogatás, egyéb felújítási hitelek). Az adásvételi szerződés megkötéséhez igény szerint megbízható ügyvédi közreműködést biztosítunk, és segítséget nyújtunk az adásvételhez kapcsolódó egyéb ügyek intézéséhez. Amennyiben felkeltettem érdeklődését, hívjon bizalommal!