Eladó Ház- házrész
Hirdetéskód: 9310728

Mov-Ing Home

Felújításhoz személyi kölcsönt keres? Kalkuláljon itt! →
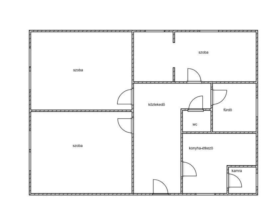
90.00 m2
ALAPTERÜLET
3
SZOBASZÁM
nincs megadva
ÉPÍTÉS
Gáz (cirkó)
FŰTÉS
  • CSOK igénybe vehető nem
  • Tetőtér beépíthető nem
  • Építés éve 1965
  • Fűtés Gáz (cirkó)
  • Klíma nem
  • Szigetelt nem
Energetikai besorolás: Nincs meghatározva
A+++
A++
A+
A
B
C
D
E
F
G
H
I

Az MBH Bank személyi kölcsön ajánlata

Fizetett hirdetés
1 millió Ft
6 évre
20 585 Ft/hó
THM: 14.5%
Részletek →
2 millió Ft
6 évre
41 169 Ft/hó
THM: 14.5%
Részletek →
3 millió Ft
6 évre
61 754 Ft/hó
THM: 14.5%
Részletek →

A tájékoztatás nem teljes körű és nem minősül ajánlattételnek.

Az ingatlan leírása

Azonnal költözhető, takarékos otthont keres Mosonmagyaróvár közvetlen szomszédságában? Megtalálta! Halászi csendes, központi utcájában eladó ez a gondozott családi ház.

Miért fogja imádni?
Azonnal birtokba vehető: Nincs várakozási idő, csak beköltözik és élvezi.
Modern fűtés: Vadonatúj, korszerű gázkazán gondoskodik a melegről és az alacsony rezsiről.
Kiváló hőszigetelés: Új műanyag nyílászárók beépített zebra rolókkal.
Tágas, világos szobák: 3 különnyíló szoba, tiszta, világos terekkel .
Hatalmas, gondozott telek: 1205 m2 szabadság, kertészkedjen, pihenjen, tágas udvar a gyerekeknek.
Rengeteg tároló: Az udvarban lévő több melléképület tökéletes műhelynek, garázsnak vagy tárolónak.

Az ingatlan tehermentes! Ne hagyja ki ezt a remek lehetőséget a Szigetköz kapujában.

Hívjon még ma és tekintsük meg együtt!

Térkép

Ingatlan adásvétel ügyvédi díja
292 500 Ft
a hirdetésben szereplő ár alapján
  • A vételár 0,45%-a
  • Szerződéscsomag teljeskörű képviselettel
  • Ingyenes tulajdoni lap ellenőrzés
  • Az ÁFA-t már tartalmazza
Érdekel az ajánlat →
A tájékoztatás nem teljes körű és nem minősül ajánlattételnek. Minimum díj: 150 000 Ft, maximum díj: 600 000 Ft. A díj kizárólag lakóingatlan adásvételére vonatkozik.

A hirdető elérhetősége

Mov-Ing Home

Dömötör Attila
+36 30 850