Eladó Ház- házrész
Hirdetéskód: 9273329
Veszprém Kossuth utca 8 - OTP Ingatlanpont Iroda
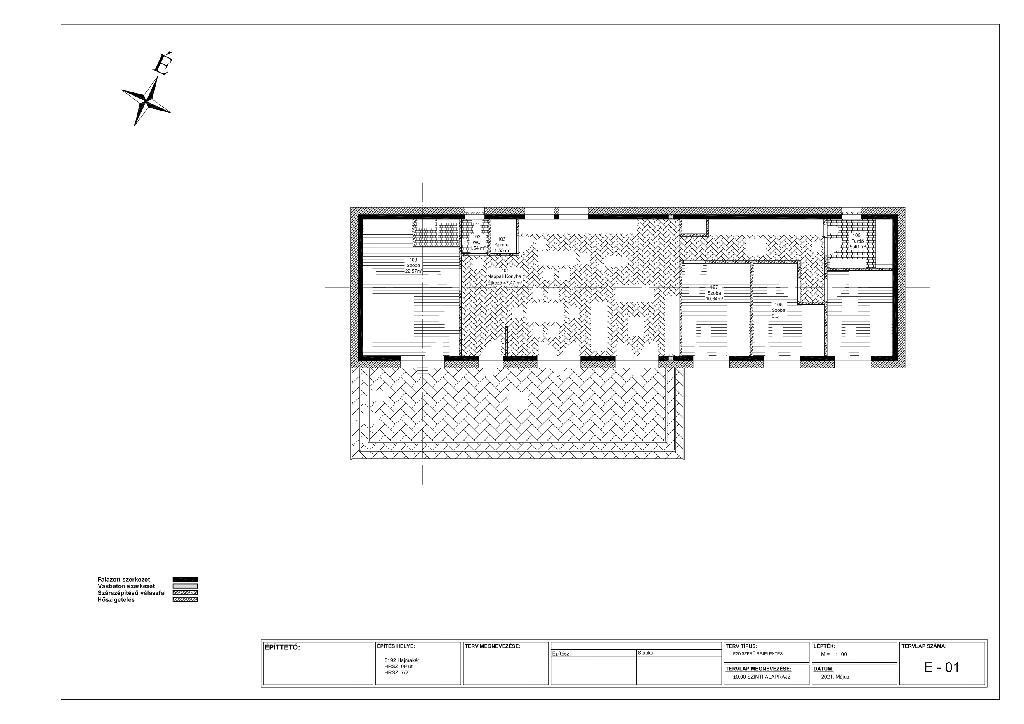
120.00 m2
ALAPTERÜLET4
SZOBASZÁMnincs megadva
ÉPÍTÉSEgyéb fűtés
FŰTÉS- CSOK igénybe vehető nem
- Belső szintek 1
- Tetőtér beépíthető nem
- Építés éve 2023
- Fűtés Egyéb fűtés
- Klíma nem
- Szigetelt nem
A+++
A++
A+
A
B
C
D
E
F
G
H
I
Az ingatlan leírása
Veszprém vármegyében, Hajmáskér új építésű részén, egy csendes, zöldövezeti telken áll ez a 120 m2-es modern családi ház, amely egy 900 m2-es telken várja leendő lakóit! A nyugodt környezet ideális választás azok számára, akik elérhető közelségben szeretnék tudni Veszprémet, de a városi nyüzsgéstől távol élveznék a békét.
A ház a legmodernebb technológiával készült: hűtését és fűtését energiatakarékos hőszivattyú biztosítja, a Silka tégla és a 30 cm-es Dryvit szigetelés pedig garantálja a kellemes hőérzetet minden évszakban. A riasztórendszer és a redőnytokok előkészítése, valamint a központi hő-visszanyerős szellőztetőgép az ár részét képezik.
Mivel az ingatlan belső válaszfalai még nem készültek el, leendő tulajdonosa abszolút saját igényei szerint alakíthatja azt ki.
Az épület főbb jellemzői:
- Energiatakarékos megoldások: HŐSZIVATTYÚS FŰTÉS ÉS HŰTÉS, központi hő-visszanyerős szellőztető rendszer, hőhídmentes épületburok: az éves fűtési költség kevesebb mint 30 ezer Ft!
- Modern építőanyagok:
o Silka 20 NF+GT falazat, 30 cm-es dryvit szigeteléssel.
o Háromrétegű hőszigetelt ablakok.
o Padlózat 32 cm EPS 100 szigeteléssel.
A burkolatok, beltéri ajtók, szaniterek és világítótestek kiválasztása az új tulajdonos ízlésére van bízva - az ár ezek nélkül értendő.
- Burkolatok: hidegburkolat és laminált padló 800 ezer Ft-tól.
- Beltéri ajtók: 8 db, igénytől függően 500 ezer Ft-tól.
- Világítótestek: választható opciók.
Hajmáskér egy 3000 fős község Veszprém vármegyében, a megyeszékhely közvetlen szomszédságában. A faluban minden létszükséges szolgáltatás elérhető, úgy mint iskola, óvoda, boltok, éttermek, posta és szórakozóhelyek. Veszprém és Várpalota alig 10 km, a Balaton 12 km, Székesfehérvár pedig 30 km távolságra elérhető. A Balaton és a Bakony közvetlen közelsége számos szabadidős tevékenységre ad lehetőséget.
Amennyiben hirdetésem felkeltette az érdeklődését, keressen bizalommal, az ingatlan időpont-egyeztetést követően rugalmasan megtekinthető! Nálunk minden megtekintés DÍJMENTES!
Az OTP Ingatlanpont teljes körű ügyintézéssel áll az eladók és a vevők rendelkezésére. A kínálatunkból választott ingatlan finanszírozásához kedvezményes hitelkonstrukciót kínálunk. Az adásvételi szerződés megkötéséhez igény szerint megbízható ügyvédi közreműködést biztosítunk, és segítséget nyújtunk az adásvételhez kapcsolódó ügyek intézéséhez is!
A ház a legmodernebb technológiával készült: hűtését és fűtését energiatakarékos hőszivattyú biztosítja, a Silka tégla és a 30 cm-es Dryvit szigetelés pedig garantálja a kellemes hőérzetet minden évszakban. A riasztórendszer és a redőnytokok előkészítése, valamint a központi hő-visszanyerős szellőztetőgép az ár részét képezik.
Mivel az ingatlan belső válaszfalai még nem készültek el, leendő tulajdonosa abszolút saját igényei szerint alakíthatja azt ki.
Az épület főbb jellemzői:
- Energiatakarékos megoldások: HŐSZIVATTYÚS FŰTÉS ÉS HŰTÉS, központi hő-visszanyerős szellőztető rendszer, hőhídmentes épületburok: az éves fűtési költség kevesebb mint 30 ezer Ft!
- Modern építőanyagok:
o Silka 20 NF+GT falazat, 30 cm-es dryvit szigeteléssel.
o Háromrétegű hőszigetelt ablakok.
o Padlózat 32 cm EPS 100 szigeteléssel.
A burkolatok, beltéri ajtók, szaniterek és világítótestek kiválasztása az új tulajdonos ízlésére van bízva - az ár ezek nélkül értendő.
- Burkolatok: hidegburkolat és laminált padló 800 ezer Ft-tól.
- Beltéri ajtók: 8 db, igénytől függően 500 ezer Ft-tól.
- Világítótestek: választható opciók.
Hajmáskér egy 3000 fős község Veszprém vármegyében, a megyeszékhely közvetlen szomszédságában. A faluban minden létszükséges szolgáltatás elérhető, úgy mint iskola, óvoda, boltok, éttermek, posta és szórakozóhelyek. Veszprém és Várpalota alig 10 km, a Balaton 12 km, Székesfehérvár pedig 30 km távolságra elérhető. A Balaton és a Bakony közvetlen közelsége számos szabadidős tevékenységre ad lehetőséget.
Amennyiben hirdetésem felkeltette az érdeklődését, keressen bizalommal, az ingatlan időpont-egyeztetést követően rugalmasan megtekinthető! Nálunk minden megtekintés DÍJMENTES!
Az OTP Ingatlanpont teljes körű ügyintézéssel áll az eladók és a vevők rendelkezésére. A kínálatunkból választott ingatlan finanszírozásához kedvezményes hitelkonstrukciót kínálunk. Az adásvételi szerződés megkötéséhez igény szerint megbízható ügyvédi közreműködést biztosítunk, és segítséget nyújtunk az adásvételhez kapcsolódó ügyek intézéséhez is!