Eladó Ház- házrész
Hirdetéskód: 9329461
Otthon Centrum - Debrecen - Hatvan utca
Felújításhoz személyi kölcsönt keres? Kalkuláljon itt! →
Ez a hirdetés megfelelhet a FIX 3%-os programnak.
Tudj meg többet a részletekről itt.
106.00 m2
ALAPTERÜLET4
SZOBASZÁMnincs megadva
ÉPÍTÉSGáz (cirkó)
FŰTÉS- CSOK igénybe vehető nem
- Tetőtér beépíthető nem
- Építés éve 2026
- Fűtés Gáz (cirkó)
- Klíma nem
- Szigetelt nem
A+++
A++
A+
A
B
C
D
E
F
G
H
I
Az ingatlan leírása
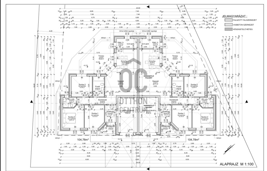
Hajdúsámson–Martinka központi részén, főútvonal mellett, mégis csendes, nyugodt környezetben kínálunk eladásra egy új építésű ikerházfelet.
Az ingatlan igényes kivitelezéssel, átgondolt tervezéssel és precíz munkával készül, ráadásul kifejezetten jó szomszédság jellemzi.
Várható beköltözés: 2026 vége
Főbb paraméterek:
- Lakótér: 106 m²
- Telek: 500 m²
Helyiségek:
- Tágas, 31 m²-es nappali-konyha, közvetlen teraszkapcsolattal
- 3 külön nyíló szoba (egyenként 11 m²)
- 2 fürdőszoba (5,8 m² és 3,26 m²)
- 5 m²-es háztartási helyiség
- 16,5 m²-es garázs, közvetlen átjárással a lakótérbe
- 20 m²-es terasz – ideális pihenéshez és családi programokhoz
A garázs előtt elektromos úszókapu kerül kialakításra, a nappaliból pedig közvetlen kijárat nyílik a teraszra.
Műszaki tartalom:
- 30 cm-es tégla falazat (Leier + hanggátló Porotherm)
- 15 cm homlokzati és lábazati szigetelés
- 30 cm kőzetgyapot födémszigetelés
- 15 cm lépésálló szigetelés a padlóban
- Gázkazán + padlófűtés, szobákban radiátoros kiállás
- 4 db hűtő-fűtő klíma
- 3 fázis + H tarifa
- A energiaosztály
- Minőségi Schneider villanyszerelési anyagok
- Hideg-meleg burkolatok 5000 Ft
- Kamera és riasztó rendszer kiállás
Közművek: víz, gáz, villany – a telek körbekerített.
Elhelyezkedés:
- Buszmegálló ~30 m
- Bolt ~150 m
- Bevásárlóközpont (S-box) ~8 km
Extra lehetőség:
Az építkezés jelenlegi szakaszában még személyre szabható az ingatlan: burkolatok, szaniterek és több belső kialakítás az új tulajdonos igényei szerint választható!
Finanszírozás: kedvezményes, akár 3%-os hitel is igénybe vehető.
Ideális választás, ha modern, energiatakarékos otthont keresel kiváló elhelyezkedéssel, magas műszaki tartalommal és barátságos környezetben.
További információért várom megtisztelő hívását!
Az ingatlan igényes kivitelezéssel, átgondolt tervezéssel és precíz munkával készül, ráadásul kifejezetten jó szomszédság jellemzi.
Várható beköltözés: 2026 vége
Főbb paraméterek:
- Lakótér: 106 m²
- Telek: 500 m²
Helyiségek:
- Tágas, 31 m²-es nappali-konyha, közvetlen teraszkapcsolattal
- 3 külön nyíló szoba (egyenként 11 m²)
- 2 fürdőszoba (5,8 m² és 3,26 m²)
- 5 m²-es háztartási helyiség
- 16,5 m²-es garázs, közvetlen átjárással a lakótérbe
- 20 m²-es terasz – ideális pihenéshez és családi programokhoz
A garázs előtt elektromos úszókapu kerül kialakításra, a nappaliból pedig közvetlen kijárat nyílik a teraszra.
Műszaki tartalom:
- 30 cm-es tégla falazat (Leier + hanggátló Porotherm)
- 15 cm homlokzati és lábazati szigetelés
- 30 cm kőzetgyapot födémszigetelés
- 15 cm lépésálló szigetelés a padlóban
- Gázkazán + padlófűtés, szobákban radiátoros kiállás
- 4 db hűtő-fűtő klíma
- 3 fázis + H tarifa
- A energiaosztály
- Minőségi Schneider villanyszerelési anyagok
- Hideg-meleg burkolatok 5000 Ft
- Kamera és riasztó rendszer kiállás
Közművek: víz, gáz, villany – a telek körbekerített.
Elhelyezkedés:
- Buszmegálló ~30 m
- Bolt ~150 m
- Bevásárlóközpont (S-box) ~8 km
Extra lehetőség:
Az építkezés jelenlegi szakaszában még személyre szabható az ingatlan: burkolatok, szaniterek és több belső kialakítás az új tulajdonos igényei szerint választható!
Finanszírozás: kedvezményes, akár 3%-os hitel is igénybe vehető.
Ideális választás, ha modern, energiatakarékos otthont keresel kiváló elhelyezkedéssel, magas műszaki tartalommal és barátságos környezetben.
További információért várom megtisztelő hívását!