Eladó Ház- házrész
Hirdetéskód: 9284506
Otthon Centrum - Debrecen - Csapó utca
Felújításhoz személyi kölcsönt keres? Kalkuláljon itt! →
Ez a hirdetés megfelelhet a FIX 3%-os programnak.
Tudj meg többet a részletekről itt.
121.00 m2
ALAPTERÜLET5
SZOBASZÁMnincs megadva
ÉPÍTÉSnincs megadva
FŰTÉS- CSOK igénybe vehető nem
- Tetőtér beépíthető nem
- Építés éve 2026
- Klíma nem
- Szigetelt nem
A+++
A++
A+
A
B
C
D
E
F
G
H
I
Az ingatlan leírása
Ha eleged van a tucat házakból és valami megnyerőt és egyedit szeretnél...
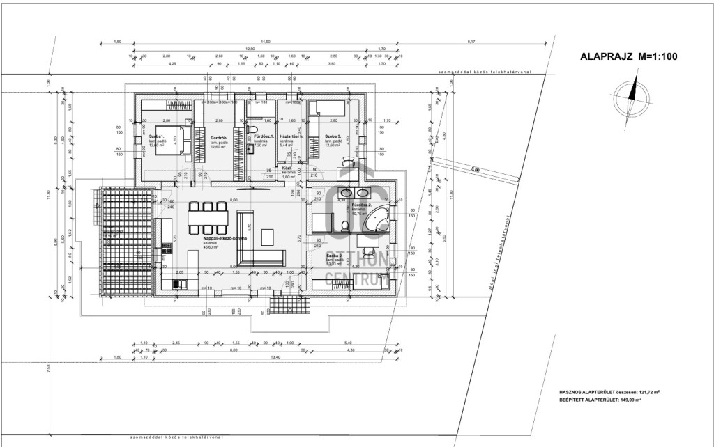
Figyelmedbe ajánlom ezt a minden igényt kielégítő önálló családi házat, Martinka csendes, forgalom mentes utcájában amely mind megjelenésében, mind a helyiségek méretét tekintve is kitűnik a piac kínálatából.
Általános jellemzők:
- 800 nm-es önálló telek
- 122 nm hasznos alapterület + 20 nm-es terasz
- 45,6 nm-es közösségi tér
- 3 db 12 nm-t meghaladó méretű szoba
- 2 fürdőszoba (1 kád, 2 zuhanyzó, 2 wc)
- háztartási helyiség
- hatalmas gardrób (akár +1 szoba)
Műszaki jellemzők röviden:
- Ytong falazat EPS homlokzati szigeteléssel
- a födémen 30 cm fújt cellulóz szigetelés (cc. 50 cm gyapottal ér fel)
- padlófűtés hőszivattyúval minden helyiségben
- betoncserép fedéssel
- még választható burkolatok, beltéri ajtók, szaniterek, stb.
- gondos tervezés, gyakorlatilag nincs benne haszontalan terület (mindössze 1,6 nm közlekedő)
Ha...
...valami egyedit szeretnél amiből nincs másik, ahol nem egy kaptafára épülnek sorra a házak...
...fontos, hogy a rezsi jelentéktelen...
...kell a hatalmas élettér, de a privát szféra se egy "lyuk" legyen...
...nem szeretnél zajban, szmogban élni, de fontos, hogy könnyen elérhető legyen Debrecen belvárosa...
...akkor ez az ingatlan neked lett tervezve.
Kérdéseiddel keress bizalommal a hét bármelyik napján.
Figyelmedbe ajánlom ezt a minden igényt kielégítő önálló családi házat, Martinka csendes, forgalom mentes utcájában amely mind megjelenésében, mind a helyiségek méretét tekintve is kitűnik a piac kínálatából.
Általános jellemzők:
- 800 nm-es önálló telek
- 122 nm hasznos alapterület + 20 nm-es terasz
- 45,6 nm-es közösségi tér
- 3 db 12 nm-t meghaladó méretű szoba
- 2 fürdőszoba (1 kád, 2 zuhanyzó, 2 wc)
- háztartási helyiség
- hatalmas gardrób (akár +1 szoba)
Műszaki jellemzők röviden:
- Ytong falazat EPS homlokzati szigeteléssel
- a födémen 30 cm fújt cellulóz szigetelés (cc. 50 cm gyapottal ér fel)
- padlófűtés hőszivattyúval minden helyiségben
- betoncserép fedéssel
- még választható burkolatok, beltéri ajtók, szaniterek, stb.
- gondos tervezés, gyakorlatilag nincs benne haszontalan terület (mindössze 1,6 nm közlekedő)
Ha...
...valami egyedit szeretnél amiből nincs másik, ahol nem egy kaptafára épülnek sorra a házak...
...fontos, hogy a rezsi jelentéktelen...
...kell a hatalmas élettér, de a privát szféra se egy "lyuk" legyen...
...nem szeretnél zajban, szmogban élni, de fontos, hogy könnyen elérhető legyen Debrecen belvárosa...
...akkor ez az ingatlan neked lett tervezve.
Kérdéseiddel keress bizalommal a hét bármelyik napján.