Eladó Ház- házrész
Hirdetéskód: 9203325
Debrecen Miklós utca 5-13 - OTP Ingatlanpont Iroda
Felújításhoz személyi kölcsönt keres? Kalkuláljon itt! →
Ez a hirdetés megfelelhet a FIX 3%-os programnak.
Tudj meg többet a részletekről itt.
108.00 m2
ALAPTERÜLET4
SZOBASZÁMnincs megadva
ÉPÍTÉSGáz (konvektor)
FŰTÉS- CSOK igénybe vehető nem
- Tetőtér beépíthető nem
- Építés éve 1950
- Fűtés Gáz (konvektor)
- Klíma nem
- Szigetelt nem
A+++
A++
A+
A
B
C
D
E
F
G
H
I
Az ingatlan leírása
Felújításra Méltó,
Nagypolgári Ház eladó,
csendes, de aszfaltozott, összközműves utcában,
Hajdúnánás központjának közvetlen közelében.
A Felújítás láthatóan, érzékelhetően egyre több kreatív Fiatalnak válik vágyálmává.
Mesteremberek hiánya, kiszámíthatatlansága, anyagi megfontolások miatt,
egyre többen vallják: DIY, Csináld Magadnak!
Ebben a Házban, csodásan kiélheti Kreativitását Minden ilyen Ember!
Örömmel és szívesen fogadom Őket!
Természetesen azok számára is eladó, akik továbbra is szakemberek munkáit szeretnék igénybe venni.
Kitűnő elhelyezkedésű, szerethető,
és még művelhető léptékű,
548 nm-es, málnás, gyümölcsfás és szőlős telken, helyezkedik el ez a
108 nm-es téglaépítésű Nagypolgári Ház.
A 1950-ben épült, összközműves Ház takarásoktól mentesen, őszintén tárja elénk a felújítás szükségességét.
Még így jelen állapotában is, magával ragadó tud lenni a terek térérzete, a beáradó fény, a világosság mennyisége, az egész tömb meghitt nyugalma.
Megújításával Nagyszerű Otthont lehet belőle készíteni!
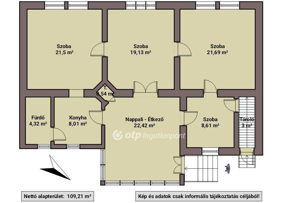
Az alaprajzon jól azonosítható Helyiségei: 4 Szoba, Nappali - Étkező, Konyha, Fürdőszoba és WC, tárolók.
A kert melléképületében, egykori asztalos műhely, Szőlészeti-Borászati tároló, 2 Garázs található.
A kertben, szilvafa, barackfák, nemes szőlők, 30 éves málna ültetvény, és füves tereületek zöldjei adnak nagyszerű kilátást a napfényes Nappali - Étkezőből.
Az ingatlan kitűnő lokációjának köszönhetően, bármi könnyedén és gyorsan elérhető, legyen szó a városközpontról, óvodáról, iskoláról, bevásárlásról vagy akár az autópályáról. Hajdúnánás egy igazán élhető, szerethető város.
Komoly érdeklődés esetén, Személyesen is megtekinthető, előre egyeztetett időpontban.
További információkat biztosítunk a megtekintőknek, keressenek bizalommal megadott elérhetőségeimen!
Referenciaszám: M314139
Kedvezményes kamatozású lakásvásárlási és felújítási hitelek, valamint
Otthon Start, CSOK Plusz és Babaváró ügyintézés az OTP hátterével irodánkban.
Képek és adatok Csak tájékoztatási jelleggel!
Nagypolgári Ház eladó,
csendes, de aszfaltozott, összközműves utcában,
Hajdúnánás központjának közvetlen közelében.
A Felújítás láthatóan, érzékelhetően egyre több kreatív Fiatalnak válik vágyálmává.
Mesteremberek hiánya, kiszámíthatatlansága, anyagi megfontolások miatt,
egyre többen vallják: DIY, Csináld Magadnak!
Ebben a Házban, csodásan kiélheti Kreativitását Minden ilyen Ember!
Örömmel és szívesen fogadom Őket!
Természetesen azok számára is eladó, akik továbbra is szakemberek munkáit szeretnék igénybe venni.
Kitűnő elhelyezkedésű, szerethető,
és még művelhető léptékű,
548 nm-es, málnás, gyümölcsfás és szőlős telken, helyezkedik el ez a
108 nm-es téglaépítésű Nagypolgári Ház.
A 1950-ben épült, összközműves Ház takarásoktól mentesen, őszintén tárja elénk a felújítás szükségességét.
Még így jelen állapotában is, magával ragadó tud lenni a terek térérzete, a beáradó fény, a világosság mennyisége, az egész tömb meghitt nyugalma.
Megújításával Nagyszerű Otthont lehet belőle készíteni!
Az alaprajzon jól azonosítható Helyiségei: 4 Szoba, Nappali - Étkező, Konyha, Fürdőszoba és WC, tárolók.
A kert melléképületében, egykori asztalos műhely, Szőlészeti-Borászati tároló, 2 Garázs található.
A kertben, szilvafa, barackfák, nemes szőlők, 30 éves málna ültetvény, és füves tereületek zöldjei adnak nagyszerű kilátást a napfényes Nappali - Étkezőből.
Az ingatlan kitűnő lokációjának köszönhetően, bármi könnyedén és gyorsan elérhető, legyen szó a városközpontról, óvodáról, iskoláról, bevásárlásról vagy akár az autópályáról. Hajdúnánás egy igazán élhető, szerethető város.
Komoly érdeklődés esetén, Személyesen is megtekinthető, előre egyeztetett időpontban.
További információkat biztosítunk a megtekintőknek, keressenek bizalommal megadott elérhetőségeimen!
Referenciaszám: M314139
Kedvezményes kamatozású lakásvásárlási és felújítási hitelek, valamint
Otthon Start, CSOK Plusz és Babaváró ügyintézés az OTP hátterével irodánkban.
Képek és adatok Csak tájékoztatási jelleggel!