Eladó Ház- házrész
Hirdetéskód: 9240813

-

Felújításhoz személyi kölcsönt keres? Kalkuláljon itt! →
FIX 3% Program

Ez a hirdetés megfelelhet a FIX 3%-os programnak.
Tudj meg többet a részletekről itt.

94.00 m2
ALAPTERÜLET
4
SZOBASZÁM
Tégla
ÉPÍTÉS
Hőszivattyú
FŰTÉS
  • CSOK igénybe vehető igen
  • Belső szintek 1
  • Tetőtér beépíthető nem
  • Kilátás Udvari
  • Ingatlan komfort Összkomfortos
  • Parkolási lehetőség Udvari beálló
  • Építés éve 2026
  • Fűtés Hőszivattyú
  • Építőanyag Tégla
  • Szigetelt igen
  • Bútorozott nem

Energetikai besorolás: A

A+++
A++
A+
A
B
C
D
E
F
G
H
I

Az MBH Bank személyi kölcsön ajánlata

Fizetett hirdetés
1 millió Ft
6 évre
20 585 Ft/hó
THM: 14.5%
Részletek →
2 millió Ft
6 évre
41 169 Ft/hó
THM: 14.5%
Részletek →
3 millió Ft
6 évre
61 754 Ft/hó
THM: 14.5%
Részletek →

A tájékoztatás nem teljes körű és nem minősül ajánlattételnek.

Az ingatlan leírása

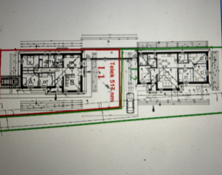
Kulcsrakész állapotú, “A” energetikai hatékonyságú, 93,66 nm lakótér + 16,98 nm tároló alapterületű ikerház Győrújfalun. (A rajzon a piros színnel jelölt ház)


 


Az ingatlan egy 1343 nm területű (ebből 517 nm saját kizárólagos használatú) telken épült. A 2 ház egymáshoz a tárolóval kapcsolódik, így használatukban teljes mértékben elszeparálhatók, kerítéssel leválaszthatók.


 


A belső terek elrendezése a következő: előszoba, közlekedő, nappali-konyha-étkező (közvetlen kert kapcsolattal), kamra, 3 külön nyíló szoba, fürdőszoba, háztartári helyiség, külön álló WC.


 


A nyílászárók REHAU típusú, 3 rétegű hőszigetelt üvegezésű műanyag ablakok, minden helyiségben redőnnyel, és rovarhálóval felszerelve. A fő falak 30 cm vastagságú Porotherm, vagy azzal egyen értékű falazó elemből falazottak. A homlokzati szigetelés 15 cm, a födémen pedig 30 cm vastagságú. Az ár tartalmazza a szigetelt padlásfeljáró költségét. A fűtési mód: hőszivattyú.  A hő leadó felület padlófűtés, a fürdőszobában elektromos törölköző szárítós radiátorral kiegészítve.  A hirdetési ár a kulcsrakész állapotra vonatkozik, és tartalmazza egy db térkövezett gk. beálló, az utcafronti kerítés valamint az elektromos redőny előkészítések árát.


 


Győrújfalu ideális választás a város nyüzsgéséből elvágyó családosok számára, hiszen megtalálható itt bölcsőde, óvoda, orvosi rendelő, és számos páratlan túra útvonal egyaránt. A település Győrtől 7 km távolságra fekszik, helyközi buszjárattal is könnyedén megközelíthető.


 


Irodánk díjmentes hitel és CSOK ügyintézéssel segíti Önt a döntésében. Amennyiben a hirdetésem felkeltette az érdeklődését, hívjon bizalommal: 30/ 2 905 405.

Térkép

Ingatlan adásvétel ügyvédi díja
539 955 Ft
a hirdetésben szereplő ár alapján
  • A vételár 0,45%-a
  • Szerződéscsomag teljeskörű képviselettel
  • Ingyenes tulajdoni lap ellenőrzés
  • Az ÁFA-t már tartalmazza
Érdekel az ajánlat →
A tájékoztatás nem teljes körű és nem minősül ajánlattételnek. Minimum díj: 150 000 Ft, maximum díj: 600 000 Ft. A díj kizárólag lakóingatlan adásvételére vonatkozik.

A hirdető elérhetősége

Kacsaláb Ingatlaniroda

+36 30 290