Eladó Ház- házrész
Hirdetéskód: 9002987

Otthon Centrum - Győr - Batthyány tér

Felújításhoz személyi kölcsönt keres? Kalkuláljon itt! →
FIX 3% Program

Ez a hirdetés megfelelhet a FIX 3%-os programnak.
Tudj meg többet a részletekről itt.

93.00 m2
ALAPTERÜLET
4
SZOBASZÁM
nincs megadva
ÉPÍTÉS
Gáz (cirkó)
FŰTÉS
  • CSOK igénybe vehető nem
  • Tetőtér beépíthető nem
  • Építés éve 2025
  • Fűtés Gáz (cirkó)
  • Klíma nem
  • Szigetelt nem
Energetikai besorolás: Nincs meghatározva
A+++
A++
A+
A
B
C
D
E
F
G
H
I

Az MBH Bank személyi kölcsön ajánlata

Fizetett hirdetés
1 millió Ft
6 évre
20 585 Ft/hó
THM: 14.5%
Részletek →
2 millió Ft
6 évre
41 169 Ft/hó
THM: 14.5%
Részletek →
3 millió Ft
6 évre
61 754 Ft/hó
THM: 14.5%
Részletek →

A tájékoztatás nem teljes körű és nem minősül ajánlattételnek.

Az ingatlan leírása

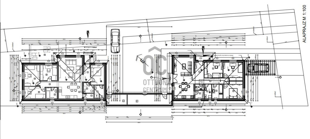
Győr kertvárosában Győrújfalun eladó egy ikerház, amely a minőségi kivitelezésével és kiváló elrendezésével egy fiatalos otthont tud adni. A telekrész 517 nm, a ház pedig 93.66 nm. A két ingatlan külön álló, csak a tárolók kötik össze.
Amerikai konyhás nappali, 3 szoba, fürdőszoba, kamra, külön Wc, háztartási helység, előtér és egy 16.98 nm-es tároló tartozik a házhoz.

Műszaki tartalom:
- 15 cm-es homlokzati szigetelés
- 30-as falazóelem
- 3 rétegű műanyag nyílászárok
- A melegvíz ellátást és a fűtést kondenzációs kazán biztosítja padlófűtéssel
-Hőszivattyús fűtés


Hitelre van szüksége? Tudunk segíteni!
Az Otthon Centrum az ország egyik legnagyobb és legmegbízhatóbb hitelközvetítőjeként, teljes körű és díjmentes hitel ügyintézéssel, biztosításkötéssel áll rendelkezésére!
Kérje személyre szabott ajánlatunkat Kollégáinktól!

Térkép

Ingatlan adásvétel ügyvédi díja
427 455 Ft
a hirdetésben szereplő ár alapján
  • A vételár 0,45%-a
  • Szerződéscsomag teljeskörű képviselettel
  • Ingyenes tulajdoni lap ellenőrzés
  • Az ÁFA-t már tartalmazza
Érdekel az ajánlat →
A tájékoztatás nem teljes körű és nem minősül ajánlattételnek. Minimum díj: 150 000 Ft, maximum díj: 600 000 Ft. A díj kizárólag lakóingatlan adásvételére vonatkozik.

A hirdető elérhetősége

Otthon Centrum - Győr - Batthyány tér

Karakai Bence
+36 70 461