Eladó Ház- házrész
Hirdetéskód: 9258162

Győr Bajcsy-Zsilinszky út 27 - OTP Ingatlanpont Iroda

92.00 m2
ALAPTERÜLET
4
SZOBASZÁM
nincs megadva
ÉPÍTÉS
Elektromos
FŰTÉS
  • CSOK igénybe vehető nem
  • Tetőtér beépíthető nem
  • Építés éve 2025
  • Fűtés Elektromos
  • Klíma nem
  • Szigetelt nem
Energetikai besorolás: Nincs meghatározva
A+++
A++
A+
A
B
C
D
E
F
G
H
I

Az ingatlan leírása

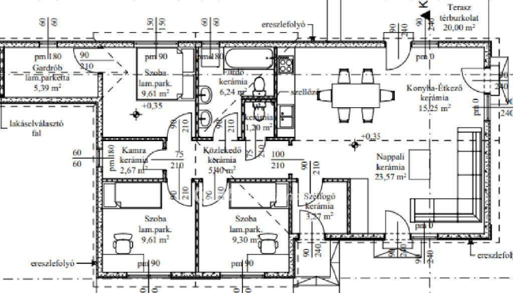
Első tulajdonosát keresi Győrtől 10 perc autóútra, Győrszemere-Nagyszentpálon egy 92 m2-es, 3 szobás, amerikai konyhás-nappalis, új építésű ikerház. Az otthon melegét levegő-levegő hőszivattyú biztosítja H-tarifával, ami hűt és fűt, ill. kiegészítő elektromos padlófűtés van a konyha-étkező és a fürdőszoba alatt. A fényárban úszó amerikai konyhás nappali az ingatlan éke, ahonnan egy 20 m2-s teraszra jutunk, ahol kényelmesen elfogyaszthatjuk a reggeli kávénkat. Egy gardrób és egy kamra helyiség is kialakításra került. Ne hagyja ki ezt a kivételes lehetőséget, nem sokáig lesz a piacon! Nézzük meg személyesen és tervezze meg álmai otthonát. Nincs meg a vételár teljes összege? Az OTP Ingatlanpont teljes körű ügyintézéssel áll az eladók és a vevők rendelkezésére! Az OTP csoport tagjaként, ügyfeleinknek lehetőségük van az OTP Bank által nyújtott kedvező hitel-, kamat- és díjkedvezmények igénybevételére. Az adás-vétel folyamatának megkönnyítése érdekében szakképzett kollégáink, ügyvédeink gyorsított ügyintézéssel állnak szíves rendelkezésükre. További információért keressen bizalommal, nézzük meg együtt!

Referenciaszám: M306081

Térkép

A hirdető elérhetősége

Győr Bajcsy-Zsilinszky út 27 - OTP Ingatlanpont Iroda

Szabó Attila
+36 30 724