Eladó Ház- házrész
Hirdetéskód: 9294054
Városi Ingatlaniroda
Felújításhoz személyi kölcsönt keres? Kalkuláljon itt! →
Ez a hirdetés megfelelhet a FIX 3%-os programnak.
Tudj meg többet a részletekről itt.
119.00 m2
ALAPTERÜLET4
SZOBASZÁMnincs megadva
ÉPÍTÉSGáz (cirkó)
FŰTÉS- CSOK igénybe vehető nem
- Belső szintek 2
- Tetőtér beépíthető nem
- Építés éve 2008
- Fűtés Gáz (cirkó)
- Klíma nem
- Szigetelt nem
A+++
A++
A+
A
B
C
D
E
F
G
H
I
Az ingatlan leírása
Győr–Újváros egyik nyugodt, átmenő forgalomtól mentes utcájában kínálunk megvételre egy kétszintes, kiváló állapotú családi házat. A 4 szobás, 2 fürdőszobás otthon praktikus elrendezéssel és korszerű műszaki tartalommal biztosít kényelmes életteret akár nagyobb család számára is.
Az ingatlan 118,62 m² hasznos alapterületű, teljes fűtött nettó alapterülete 131,97 m², és egy 201 m²-es saroktelken helyezkedik el. A tetőtér kialakítása praktikus, a 95 cm-es parapetfalak miatt a felső szint jól kihasználható.
Az ingatlan bevásárlóközpontok közelében, mégis csendes, rendezett lakókörnyezetben helyezkedik el. A 2022-ben korszerűsített energetikai rendszernek köszönhetően a ház alacsony rezsivel fenntartható, miközben minden fontos szolgáltatás rövid távolságon belül elérhető.
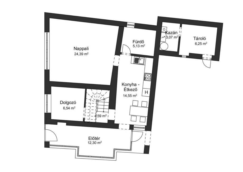
Elrendezés
Földszint:
• tágas nappali
• konyha–étkező
• dolgozószoba
• fürdőszoba
• előtér és lépcsőtér tárolóval
Emelet:
• két kényelmes méretű hálószoba
• galéria dolgozórésszel
• fürdőszoba (mindkét hálószobából megközelíthető)
A szintek között minőségi kivitelezésű kőrisfa lépcső biztosít kapcsolatot.
Energetika és gépészet
A ház 2022-ben jelentős energetikai korszerűsítésen esett át:
• 5 kW teljesítményű napelemes rendszer (15 panel) – szaldó elszámolással
• 3 db hűtő–fűtő klímaberendezés
• kondenzációs gázkazán
• lapradiátoros hőleadás
Villamos hálózat: 3×20 A
Energetikai minősítés: CC
A napelemes rendszernek köszönhetően az ingatlan rendkívül kedvező fenntartási költséggel üzemeltethető.
Épület műszaki jellemzői
• Porotherm és tömör tégla falazat
• Ytong téglával falazott felső szint
• monolit vasbeton födém
• Bramac betoncserép tetőhéjazat
• 5 cm homlokzati hőszigetelés
• 15 cm tetőszigetelés
A padlástér járható, tárolásra alkalmas.
Udvar és parkolás
A rendezett udvarban található:
• távirányításos úszókapu
• fedett autóbeálló polikarbonát tetővel
• külön melléképület (9,3 m²) a gépészeti berendezések számára
Nyílászárók és biztonság
• minőségi fa nyílászárók
• alumínium redőnyök
• 2 rétegű üvegezés
• dupla biztonsági üvegezésű bejárati ajtó
• kiépített riasztórendszer
Egyéb információk
A beépített bútorok és gépek az ingatlan részét képezik (konyhabútor, tűzhely, szagelszívó, kazán).
A további berendezések megegyezés tárgyát képezhetik.
Irányár: 99,90 millió Ft
Az ingatlan megfelel a 3%-os OSP hitel feltételeinek.
Igény esetén díjmentes hitelügyintézésben és kedvező ügyvédi háttér biztosításában is segítünk.
Az ingatlan 118,62 m² hasznos alapterületű, teljes fűtött nettó alapterülete 131,97 m², és egy 201 m²-es saroktelken helyezkedik el. A tetőtér kialakítása praktikus, a 95 cm-es parapetfalak miatt a felső szint jól kihasználható.
Az ingatlan bevásárlóközpontok közelében, mégis csendes, rendezett lakókörnyezetben helyezkedik el. A 2022-ben korszerűsített energetikai rendszernek köszönhetően a ház alacsony rezsivel fenntartható, miközben minden fontos szolgáltatás rövid távolságon belül elérhető.
Elrendezés
Földszint:
• tágas nappali
• konyha–étkező
• dolgozószoba
• fürdőszoba
• előtér és lépcsőtér tárolóval
Emelet:
• két kényelmes méretű hálószoba
• galéria dolgozórésszel
• fürdőszoba (mindkét hálószobából megközelíthető)
A szintek között minőségi kivitelezésű kőrisfa lépcső biztosít kapcsolatot.
Energetika és gépészet
A ház 2022-ben jelentős energetikai korszerűsítésen esett át:
• 5 kW teljesítményű napelemes rendszer (15 panel) – szaldó elszámolással
• 3 db hűtő–fűtő klímaberendezés
• kondenzációs gázkazán
• lapradiátoros hőleadás
Villamos hálózat: 3×20 A
Energetikai minősítés: CC
A napelemes rendszernek köszönhetően az ingatlan rendkívül kedvező fenntartási költséggel üzemeltethető.
Épület műszaki jellemzői
• Porotherm és tömör tégla falazat
• Ytong téglával falazott felső szint
• monolit vasbeton födém
• Bramac betoncserép tetőhéjazat
• 5 cm homlokzati hőszigetelés
• 15 cm tetőszigetelés
A padlástér járható, tárolásra alkalmas.
Udvar és parkolás
A rendezett udvarban található:
• távirányításos úszókapu
• fedett autóbeálló polikarbonát tetővel
• külön melléképület (9,3 m²) a gépészeti berendezések számára
Nyílászárók és biztonság
• minőségi fa nyílászárók
• alumínium redőnyök
• 2 rétegű üvegezés
• dupla biztonsági üvegezésű bejárati ajtó
• kiépített riasztórendszer
Egyéb információk
A beépített bútorok és gépek az ingatlan részét képezik (konyhabútor, tűzhely, szagelszívó, kazán).
A további berendezések megegyezés tárgyát képezhetik.
Irányár: 99,90 millió Ft
Az ingatlan megfelel a 3%-os OSP hitel feltételeinek.
Igény esetén díjmentes hitelügyintézésben és kedvező ügyvédi háttér biztosításában is segítünk.