Eladó Ház- házrész
Hirdetéskód: 9262813

Eger Kertész utca 25 - OTP Ingatlanpont Iroda

Felújításhoz személyi kölcsönt keres? Kalkuláljon itt! →
FIX 3% Program

Ez a hirdetés megfelelhet a FIX 3%-os programnak.
Tudj meg többet a részletekről itt.

99.00 m2
ALAPTERÜLET
3
SZOBASZÁM
nincs megadva
ÉPÍTÉS
Elektromos
FŰTÉS
  • CSOK igénybe vehető nem
  • Tetőtér beépíthető nem
  • Építés éve 2026
  • Fűtés Elektromos
  • Klíma nem
  • Szigetelt nem
Energetikai besorolás: Nincs meghatározva
A+++
A++
A+
A
B
C
D
E
F
G
H
I

Az MBH Bank személyi kölcsön ajánlata

Fizetett hirdetés
1 millió Ft
6 évre
20 585 Ft/hó
THM: 14.5%
Részletek →
2 millió Ft
6 évre
41 169 Ft/hó
THM: 14.5%
Részletek →
3 millió Ft
6 évre
61 754 Ft/hó
THM: 14.5%
Részletek →

A tájékoztatás nem teljes körű és nem minősül ajánlattételnek.

Az ingatlan leírása

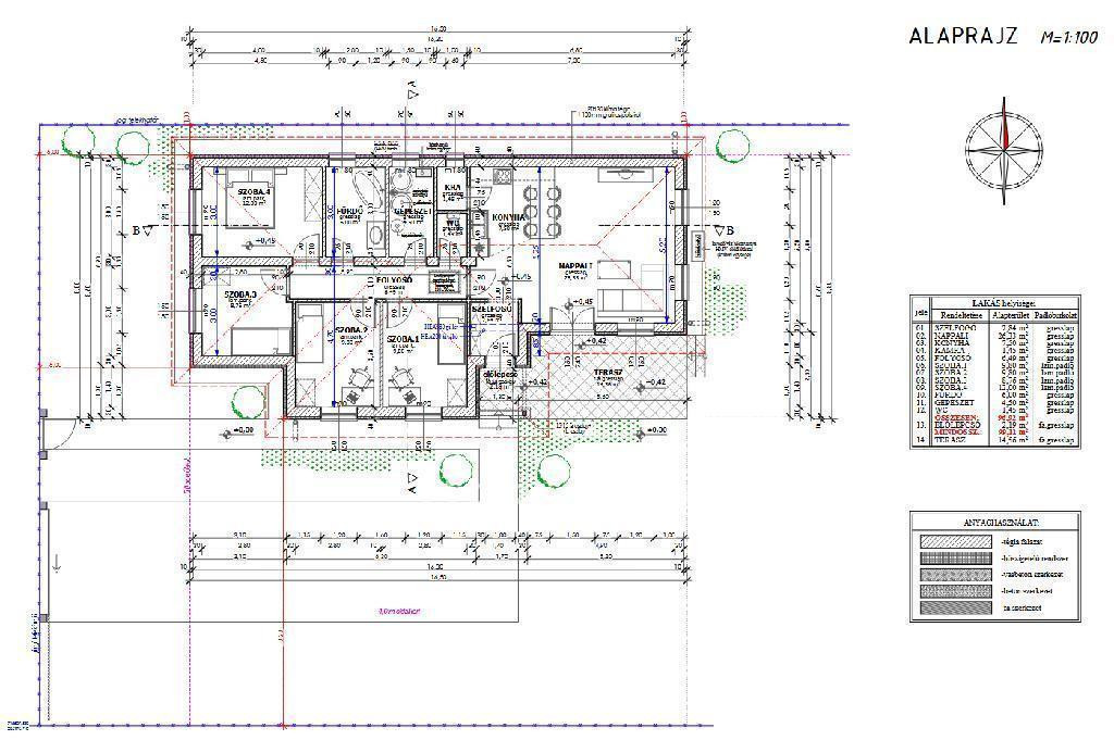
Már állnak a falak és készül a tető! Heves vármegye, Gyöngyöstől 3 km-re, Budapesttől 80 km-re fekvő, dinamikusan fejlődő Gyöngyöshalász déli kertvárosi lakóövezetében (új osztású, jelenleg kialakuló) kínálok eladásra új, tégla-és szilikát (válaszfalak) építésű, 99 m2, földszintes, 3+1 szoba + amerikai-konyhás nappali elosztású családi házat 800 m2 telken, 14,5 m2 terasszal és az udvaron autó beállási lehetőséggel. Ha már most lefoglalja, garantáltan ezen az áron kapja meg! Építkezés befejezésének várható ideje legkésőbb 2026.08. hó. A bejáraton keresztül egy előtérbe jutunk. Ebből nyílik a közös légtérbe lévő nappali-étkező-konyha és egy közlekedő. A közlekedőből nyílik három egész és 1 félszoba, egy fürdőszoba, wc, kamra és a gépészeti helyiség. A tetőszerkezet kontyolt nyeregtető, gomba és lángmentesített fűrészelt fenyőből, 25 cm-es ásványgyapot szigeteléssel és párazáró fóliával. Héjazata antracit égetett cserép. Külső falai 15 cm-es szigetelést kapnak. A nyílászárók műa. hőszigeteltek, belső ajtók MDF szerkezetű, kazettás, üvegezett kivitelűek. A szobákat és az étkezőt laminált padló, a többi helyiséget járólap (gresslap) borítja. Víz - csatorna és villany telken belül, gáz nincs. A fűtésről és a meleg vízről hőszivattyú gondoskodik (padlófűtés). A műszaki tartalmak, hideg - és melegburkolatok, elektromos kiépítések és tartozékok, klíma beszerelés, külső tereprendezés ....... választhatóak -költségegyeztetéssel- a munkálatok megkezdéséig. A fürdőszobában zuhanyfülke, de kérés esetén kád is választható. Az építkezés folyamatáról újabb fotókat töltök fel. Csendes, nyugodt, kertvárosias, családi házas épületekkel beépítésre kerülő utcában helyezkedik el, jó szomszédok társaságában. Ha felkeltette érdeklődését hívjon, további műszaki adatokkal szolgálok. Személyautóval és autóbusszal egyaránt jól megközelíthető, közvetlen helyi járattal Gyöngyösre és helyközi járatokkal a nagyobb városokba. A településen óvoda, iskola, piac, posta, orvosi rendelő, fogászat, gyógyszertár, horgásztó, művelődési ház állandó programokkal, könyvtár, pizzéria. A közelben számtalan munkalehetőség a Pipis-hegyen, Gyöngyösön az ipari parkban, Gyöngyöshalászon és Adács mellett. Ingatlanirodánk ügyvédi háttérrel, CSOK, babaváró hitel, Otthon Start Hitelprogram, valamint kamatkedvezményes hitel ügyintézésével támogatja ügyfelei ingatlanvásárlását. Ingyenes banki segítség! Hívjon bizalommal!

Térkép

A hirdető elérhetősége

Eger Kertész utca 25 - OTP Ingatlanpont Iroda

Kovácsné Varga Nikolett
+36 30 247