Eladó Ház- házrész
Hirdetéskód: 9325847
Fővállalkozó Balla és Balla Kft
Felújításhoz személyi kölcsönt keres? Kalkuláljon itt! →
Ez a hirdetés megfelelhet a FIX 3%-os programnak.
Tudj meg többet a részletekről itt.
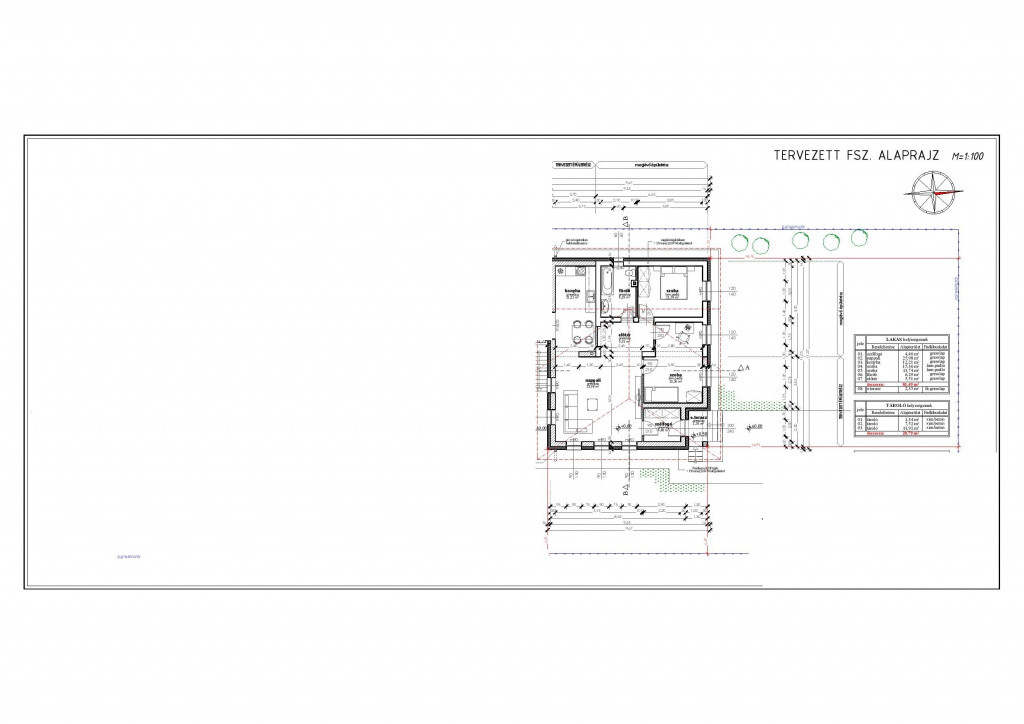
84.00 m2
ALAPTERÜLET3
SZOBASZÁMnincs megadva
ÉPÍTÉSnincs megadva
FŰTÉS- CSOK igénybe vehető nem
- Tetőtér beépíthető nem
- Építés éve 2024
- Klíma nem
- Szigetelt nem
A+++
A++
A+
A
B
C
D
E
F
G
H
I
Az ingatlan leírása
GYÖMRŐN 2024-ben ÉPÜLT földszintes körbejárható téglaépítésű CSALÁDI HÁZ keresi új tulajdonosát. BELESZERETŐS !!!!!
Az ingatlan ~ bruttó 84 nm / Nappali 26 nm + 2db háló 16,12 nm -es , konyha 12 nm -es,gépesített ,bútorozott /benne van az árban/, fürdő 6,30 nm /minimál stílusú és ablakos/, itt kapott helyett a BAXI tipusú gázkazán és az okos villanyboyler .
A mai kor elvárásainak megfelelő ,minőségi anyagokból épült, 16 cm-es homlokzati szigetelés,aljzat szigetlés 10 cm-es a fődém 30 cm -es üveggyapot, minden helyiségben padlófűtés, az ablakok redőnnyel és
szúnyoghálóval vannak ellátva, minden helyiségben energia takarékos
ledes lámpatestek lettek elhelyezve. A nappali alatt található egy kb 10 nm -es pince ami tárolásra alkalmas kívülről épített lépcsőn közelíthető meg /villany és víz ellátással rendelkezik/, ezenkívül van egy régi építésű tégla tároló /mellék épület/ és egy modern lemez tároló is amely szintén benne van az árban. A kert 428 nm amely könnyedén karbantartható a csöpögtetős öntöző rendszer segítségével, autóval a telken belül tudunk parkolni igény esetén fedett beállót is ki tud alakítani vagy mobil garázst, a nagy kapu és a kiskapu is távírányítóval nyitható. Érdemes eljönni megnézni nem fog csalódni, megtekintés rugalmas, hívását a hét bármely napján fogadom ha nem tudom felvenni rövid időn belül visszahívom.
Az ingatlan ~ bruttó 84 nm / Nappali 26 nm + 2db háló 16,12 nm -es , konyha 12 nm -es,gépesített ,bútorozott /benne van az árban/, fürdő 6,30 nm /minimál stílusú és ablakos/, itt kapott helyett a BAXI tipusú gázkazán és az okos villanyboyler .
A mai kor elvárásainak megfelelő ,minőségi anyagokból épült, 16 cm-es homlokzati szigetelés,aljzat szigetlés 10 cm-es a fődém 30 cm -es üveggyapot, minden helyiségben padlófűtés, az ablakok redőnnyel és
szúnyoghálóval vannak ellátva, minden helyiségben energia takarékos
ledes lámpatestek lettek elhelyezve. A nappali alatt található egy kb 10 nm -es pince ami tárolásra alkalmas kívülről épített lépcsőn közelíthető meg /villany és víz ellátással rendelkezik/, ezenkívül van egy régi építésű tégla tároló /mellék épület/ és egy modern lemez tároló is amely szintén benne van az árban. A kert 428 nm amely könnyedén karbantartható a csöpögtetős öntöző rendszer segítségével, autóval a telken belül tudunk parkolni igény esetén fedett beállót is ki tud alakítani vagy mobil garázst, a nagy kapu és a kiskapu is távírányítóval nyitható. Érdemes eljönni megnézni nem fog csalódni, megtekintés rugalmas, hívását a hét bármely napján fogadom ha nem tudom felvenni rövid időn belül visszahívom.