Eladó Ház- házrész
Hirdetéskód: 9320917
Fővállalkozó Balla és Balla Kft
Felújításhoz személyi kölcsönt keres? Kalkuláljon itt! →200.00 m2
ALAPTERÜLET4
SZOBASZÁMnincs megadva
ÉPÍTÉSnincs megadva
FŰTÉS- CSOK igénybe vehető nem
- Tetőtér beépíthető nem
- Építés éve 1977
- Klíma nem
- Szigetelt nem
A+++
A++
A+
A
B
C
D
E
F
G
H
I
Az ingatlan leírása
NAGY TELEK, MASSZÍV HÁZ, RENGETEG LEHETŐSÉG – GYÖMRŐN!
Gyömrőn, nyugodt, családi házas környezetben eladó egy 1317 m²-es telken elhelyezkedő, 3 szintes, masszív szerkezetű családi ház, amely kiváló alapot kínál egy igazán értékes otthon vagy akár vállalkozás kialakításához.
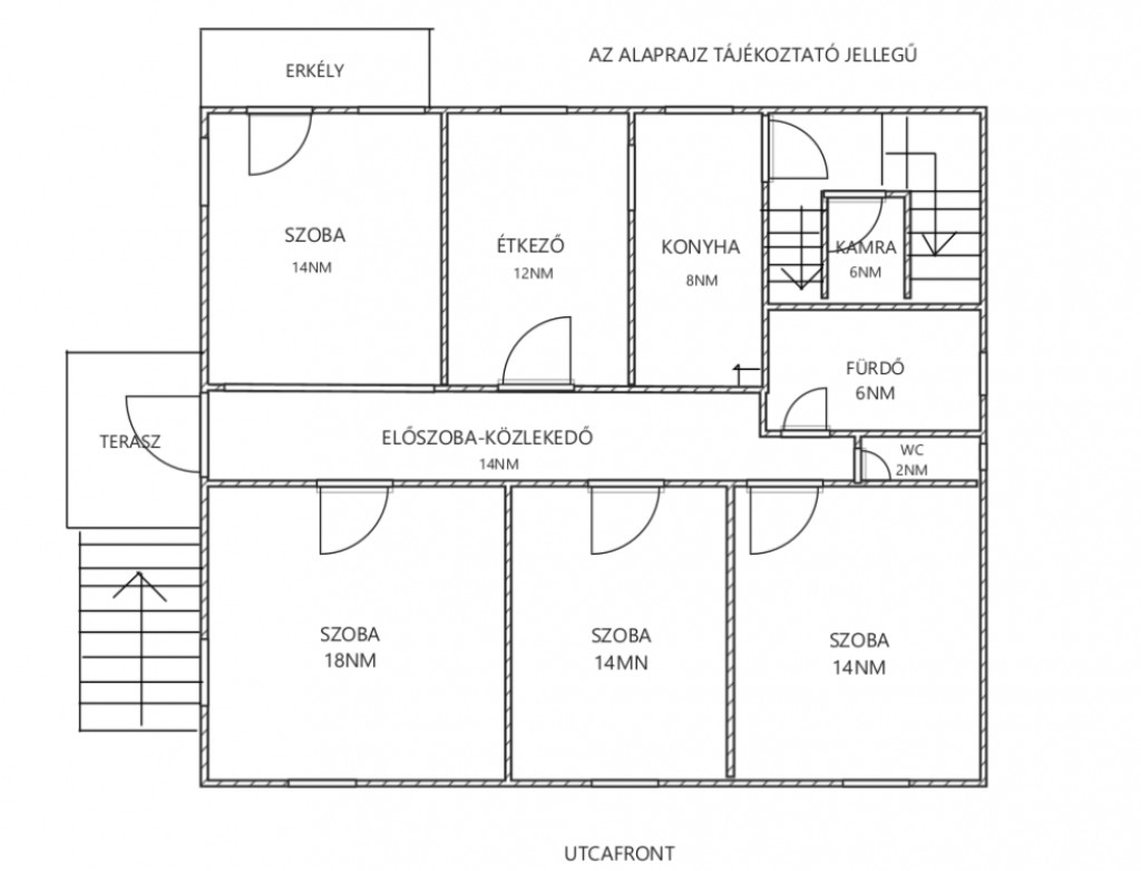
Az ingatlan bruttó 200 m² alapterületű, ami a tetőtér beépítésével további 80nm-es lakrésszel bővíthető. Jelenleg 100 m² lakóterület került kialakításra, ahol 4 szoba, konyha, külön étkező, spájz, közlekedő, és szociális helyiségek találhatók. A további területek garázsként, több helyiség műhelyként funkcionál, valamint pince is van a ház alatt. Így ideális választás lehet vállalkozóknak, otthoni műhelyt keresőknek is. A telken található még egy melléképület is.
A ház 1977-ben épült, 50 cm vastag tégla falazattal, sóskúti tégla burkolattal ami stabil, időtálló szerkezetet biztosít.
A nyílászárók már megújultak, 3 rétegű műanyag ablakok lettek beépítve. Fűtése jelenleg Fég gázkazánnal történik, de rendelkezésre áll egy működő vegyes tüzelésű kazán is, diletációs fűtési rendszerrel. A meleg vizet villanybojler biztosítja.
Ami igazán különlegessé teszi:
--egy fal elmozdításával amerikai konyhás nappali is kialakítható
--tetőtér beépíthető, így a lakótér jelentősen bővíthető (nettó 80nm)
--3 fázis és ipari áram – akár komolyabb műhely vagy vállalkozás számára is ideális
--tágas telek, rengeteg lehetőséggel (kert, bővítés, melléképületek hasznosítása)
Az ingatlan műszaki és esztétikai felújítást igényel, de pont ez ad lehetőséget arra, hogy saját igényekre, egyedi elképzelések szerint alakítsa ki álmai otthonát vagy vállalkozása központját.
✔ jogilag rendezett
✔ rövid határidővel birtokba vehető
Ajánljuk mindazoknak, akik nem kész megoldást keresnek, hanem értéket látnak a lehetőségekben.
További információért HIVJON MOST!
Bankfüggetlen hiteltanácsadónk készséggel áll rendelkezésére!
Gyömrőn, nyugodt, családi házas környezetben eladó egy 1317 m²-es telken elhelyezkedő, 3 szintes, masszív szerkezetű családi ház, amely kiváló alapot kínál egy igazán értékes otthon vagy akár vállalkozás kialakításához.
Az ingatlan bruttó 200 m² alapterületű, ami a tetőtér beépítésével további 80nm-es lakrésszel bővíthető. Jelenleg 100 m² lakóterület került kialakításra, ahol 4 szoba, konyha, külön étkező, spájz, közlekedő, és szociális helyiségek találhatók. A további területek garázsként, több helyiség műhelyként funkcionál, valamint pince is van a ház alatt. Így ideális választás lehet vállalkozóknak, otthoni műhelyt keresőknek is. A telken található még egy melléképület is.
A ház 1977-ben épült, 50 cm vastag tégla falazattal, sóskúti tégla burkolattal ami stabil, időtálló szerkezetet biztosít.
A nyílászárók már megújultak, 3 rétegű műanyag ablakok lettek beépítve. Fűtése jelenleg Fég gázkazánnal történik, de rendelkezésre áll egy működő vegyes tüzelésű kazán is, diletációs fűtési rendszerrel. A meleg vizet villanybojler biztosítja.
Ami igazán különlegessé teszi:
--egy fal elmozdításával amerikai konyhás nappali is kialakítható
--tetőtér beépíthető, így a lakótér jelentősen bővíthető (nettó 80nm)
--3 fázis és ipari áram – akár komolyabb műhely vagy vállalkozás számára is ideális
--tágas telek, rengeteg lehetőséggel (kert, bővítés, melléképületek hasznosítása)
Az ingatlan műszaki és esztétikai felújítást igényel, de pont ez ad lehetőséget arra, hogy saját igényekre, egyedi elképzelések szerint alakítsa ki álmai otthonát vagy vállalkozása központját.
✔ jogilag rendezett
✔ rövid határidővel birtokba vehető
Ajánljuk mindazoknak, akik nem kész megoldást keresnek, hanem értéket látnak a lehetőségekben.
További információért HIVJON MOST!
Bankfüggetlen hiteltanácsadónk készséggel áll rendelkezésére!