Eladó Ház- házrész
Hirdetéskód: 9191992
Fővállalkozó Balla és Balla Kft
Ez a hirdetés megfelelhet a FIX 3%-os programnak.
Tudj meg többet a részletekről itt.
114 m2
ALAPTERÜLET2
SZOBASZÁMnincs megadva
ÉPÍTÉSnincs megadva
FŰTÉS- CSOK igénybe vehető nem
- Tetőtér beépíthető nem
- Építés éve 2005
- Klíma nem
- Szigetelt nem
A+++
A++
A+
A
B
C
D
E
F
G
H
I
Az ingatlan leírása
A Balaton északi partján, Keszthely mellett, Hévíztől 8 km távolságban, szép természeti környezetben, csendes utcában, GYENESDIÁSON igényes családi ház eladó!
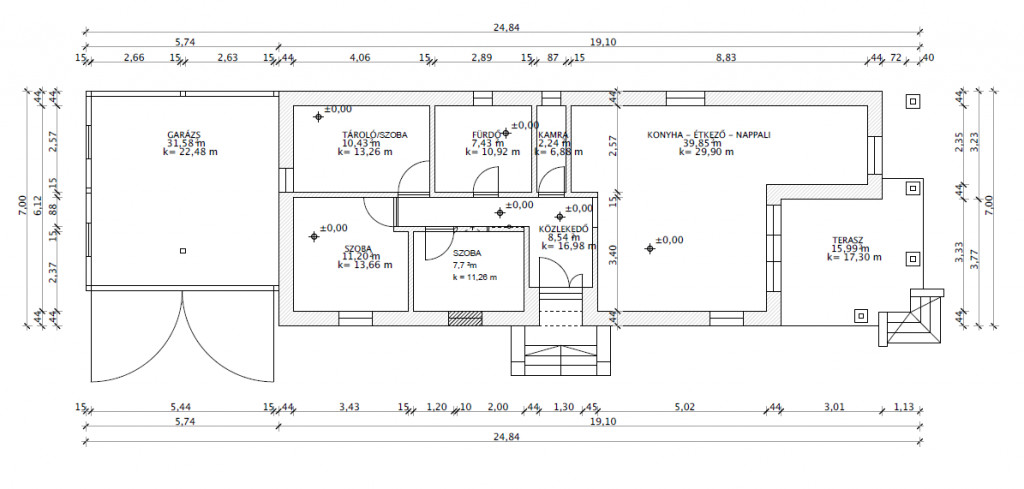
A 760 m2 szép , parkosított területen játszótér, fedett kerti bográcsozó, sok gyümölcsfa hívogat befelé az utcáról. Az igényes terméskövel burkolt , Ytong téglából 2005-ben épült földszintes ingatlan elosztása :
hangulatos, 40 m2 amerikai konyhás nappali, 3 szoba ,előszoba, háztartási helyiség, fürdőszoba, 16 m2 fedett terasz, 32 m2 két autó beállására alkalmas garázs.
A szépen karbantartott családi ház 25Ah áramellátással, cirkófűtéssel ,két darab hűtő-fűtő klímával kis rezsi mellett üzemeltethető.
Riasztó, elketromos kapuk, műanyag nyílászárók, redőnyök, szúnyoghálók, hangulatvilágítások, térkövezett udvar mind az új lakó kényelmét, otthonos érzését erősítik.
Jöjjön, győződjön meg róla személyesen!
Balaton part 3 km . A 71-es főút a legfontosabb közúti elérési útvonala.
Autóbusz-közlekedése sűrű: több, Keszthely felől induló elővárosi, helyközi és távolsági járat érinti a települést, de emellett a keszthelyi 1-es jelzésű helyi járat is kitér a község felé.
Vasúttal megközelíthető .
A 760 m2 szép , parkosított területen játszótér, fedett kerti bográcsozó, sok gyümölcsfa hívogat befelé az utcáról. Az igényes terméskövel burkolt , Ytong téglából 2005-ben épült földszintes ingatlan elosztása :
hangulatos, 40 m2 amerikai konyhás nappali, 3 szoba ,előszoba, háztartási helyiség, fürdőszoba, 16 m2 fedett terasz, 32 m2 két autó beállására alkalmas garázs.
A szépen karbantartott családi ház 25Ah áramellátással, cirkófűtéssel ,két darab hűtő-fűtő klímával kis rezsi mellett üzemeltethető.
Riasztó, elketromos kapuk, műanyag nyílászárók, redőnyök, szúnyoghálók, hangulatvilágítások, térkövezett udvar mind az új lakó kényelmét, otthonos érzését erősítik.
Jöjjön, győződjön meg róla személyesen!
Balaton part 3 km . A 71-es főút a legfontosabb közúti elérési útvonala.
Autóbusz-közlekedése sűrű: több, Keszthely felől induló elővárosi, helyközi és távolsági járat érinti a települést, de emellett a keszthelyi 1-es jelzésű helyi járat is kitér a község felé.
Vasúttal megközelíthető .