Eladó Ház- házrész
Hirdetéskód: 9180963
Duna House - Új-Lak Bázis Kft.
700 m2
ALAPTERÜLET6
SZOBASZÁMnincs megadva
ÉPÍTÉSnincs megadva
FŰTÉS- CSOK igénybe vehető nem
- Tetőtér beépíthető nem
- Építés éve 2025
- Klíma nem
- Szigetelt nem
A+++
A++
A+
A
B
C
D
E
F
G
H
I
Az ingatlan leírása
Igazi luxus Gyálon!
Gyál egyik kedvelt részén kínálunk megvételre egy modern, tágas otthont, amely ideális választás nagycsaládosoknak és mindazoknak, akik a fényes, nagy tereket részesítik előnyben.
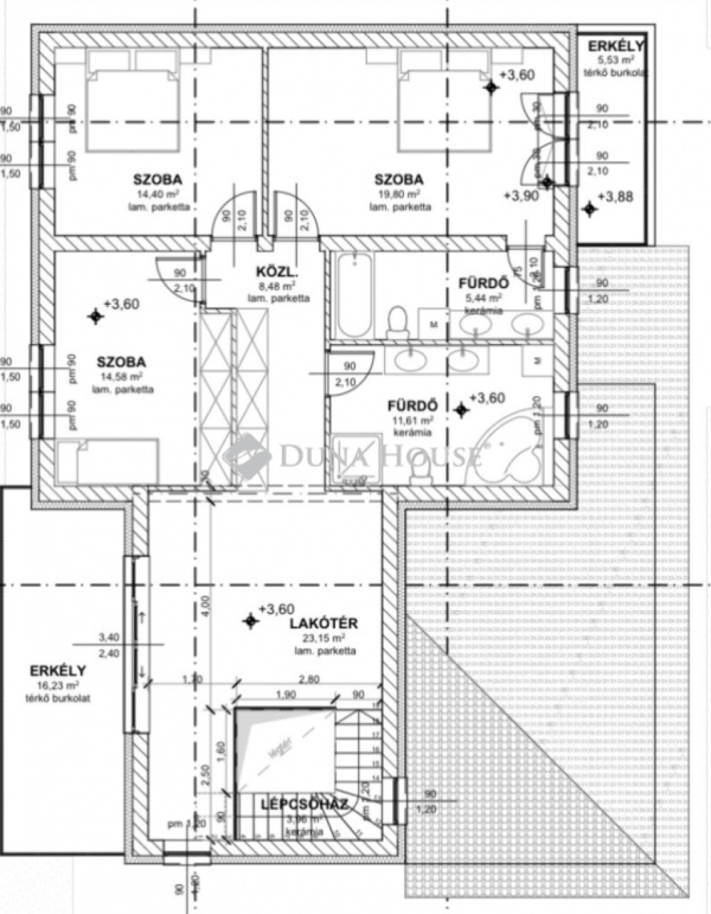
Telek mérete: 663 m²
Hasznos alapterület: nettó 222,3 m² (bruttó 285,78 m²)
Szintek száma: 2
Ez az önálló családi ház egy tökéletes választás Nappali+4 hálószobával rendelkezik, melyből kettő szülői hálóként lett tervezve saját fürdőszobával és gardróbbal, egy a földszinten egy pedig az emeleten.
További 2 fürdőszoba is a rendelkezésre áll egy a földszinten a vendégek számára egy pedig az emeleten a család többi részének.
Mind kivitelben mind a tervezéskor a legnagyobb kényelemre ügyelt a tulajdonos, hogy egy kivételes otthont tudjon építeni!
Műszaki tartalom:
30-as Leier falazat 10 cm grafitos szigeteléssel
lábazat 15 cm XPS szigeteléssel
Belső falak 10 cm Leier téglából
20 cm kőzetgyapot födémszigetelés
Hőszivattyú mely padlófűtéssel adja le a hőt
3 rétegű, energiatakarékos nyílászárók
Klíma a nappaliban, előkészítés igény esetén minden szoba
Elektromos kapu
napelem-előkészítés
Beépített kamerarendszer és riasztó
A vételár tartalmazza:
Melegburkolat 5.000 Ft/m² értékben
Hidegburkolat 5.000 Ft/m² értékben
Beltéri ajtó kilinccsel: 80.000 Ft/db
Kád tartozékaival: 80.000 Ft/db
Csaptelepek: 20.000 Ft/db
Mosdók: 20.000 Ft/db
Plusz vízkiállás: 50.000 Ft/db
Villanykiállás: 30.000 Ft/db
Kerti csap szerelve: 100.000 Ft/db
(A szaniterek és belső ajtók választhatók az aktuális készültségi foktól függően. Extra igények, módosítások előzetes egyeztetéssel kérhetők.)
Finanszírozás és átadás:
3%-os hitelre is alkalmas
Várható átadás: 2025. december 31.
Teljes körű segítség: független hitelszakértő és megbízható ügyvédi háttér
Kivitelező:
A házat egy megbízható, tapasztalt kivitelező építi, aki számos referenciamunkával rendelkezik a környéken. A korábbi projektek személyesen is megtekinthetők, így az érdeklődők saját szemükkel győződhetnek meg a minőségről.
Hívjon a hét bármely napján, ha már látja magát ebben a csodás otthonban!
Gyál egyik kedvelt részén kínálunk megvételre egy modern, tágas otthont, amely ideális választás nagycsaládosoknak és mindazoknak, akik a fényes, nagy tereket részesítik előnyben.
Telek mérete: 663 m²
Hasznos alapterület: nettó 222,3 m² (bruttó 285,78 m²)
Szintek száma: 2
Ez az önálló családi ház egy tökéletes választás Nappali+4 hálószobával rendelkezik, melyből kettő szülői hálóként lett tervezve saját fürdőszobával és gardróbbal, egy a földszinten egy pedig az emeleten.
További 2 fürdőszoba is a rendelkezésre áll egy a földszinten a vendégek számára egy pedig az emeleten a család többi részének.
Mind kivitelben mind a tervezéskor a legnagyobb kényelemre ügyelt a tulajdonos, hogy egy kivételes otthont tudjon építeni!
Műszaki tartalom:
30-as Leier falazat 10 cm grafitos szigeteléssel
lábazat 15 cm XPS szigeteléssel
Belső falak 10 cm Leier téglából
20 cm kőzetgyapot födémszigetelés
Hőszivattyú mely padlófűtéssel adja le a hőt
3 rétegű, energiatakarékos nyílászárók
Klíma a nappaliban, előkészítés igény esetén minden szoba
Elektromos kapu
napelem-előkészítés
Beépített kamerarendszer és riasztó
A vételár tartalmazza:
Melegburkolat 5.000 Ft/m² értékben
Hidegburkolat 5.000 Ft/m² értékben
Beltéri ajtó kilinccsel: 80.000 Ft/db
Kád tartozékaival: 80.000 Ft/db
Csaptelepek: 20.000 Ft/db
Mosdók: 20.000 Ft/db
Plusz vízkiállás: 50.000 Ft/db
Villanykiállás: 30.000 Ft/db
Kerti csap szerelve: 100.000 Ft/db
(A szaniterek és belső ajtók választhatók az aktuális készültségi foktól függően. Extra igények, módosítások előzetes egyeztetéssel kérhetők.)
Finanszírozás és átadás:
3%-os hitelre is alkalmas
Várható átadás: 2025. december 31.
Teljes körű segítség: független hitelszakértő és megbízható ügyvédi háttér
Kivitelező:
A házat egy megbízható, tapasztalt kivitelező építi, aki számos referenciamunkával rendelkezik a környéken. A korábbi projektek személyesen is megtekinthetők, így az érdeklődők saját szemükkel győződhetnek meg a minőségről.
Hívjon a hét bármely napján, ha már látja magát ebben a csodás otthonban!