Eladó Ház- házrész
Hirdetéskód: 9304226
Dunaharaszti Bocskai utca 10 - OTP Ingatlanpont Iroda
Felújításhoz személyi kölcsönt keres? Kalkuláljon itt! →
Ez a hirdetés megfelelhet a FIX 3%-os programnak.
Tudj meg többet a részletekről itt.
151.00 m2
ALAPTERÜLET4
SZOBASZÁMnincs megadva
ÉPÍTÉSGáz (cirkó)
FŰTÉS- CSOK igénybe vehető nem
- Tetőtér beépíthető nem
- Építés éve 1970
- Fűtés Gáz (cirkó)
- Klíma nem
- Szigetelt nem
A+++
A++
A+
A
B
C
D
E
F
G
H
I
Az ingatlan leírása
Teljeskörűen felújított ikerházfél eladó Gyálon-garázs, terasz, erkély, udvar... -Hamarosan költözhető otthon csendes környezetben!!!
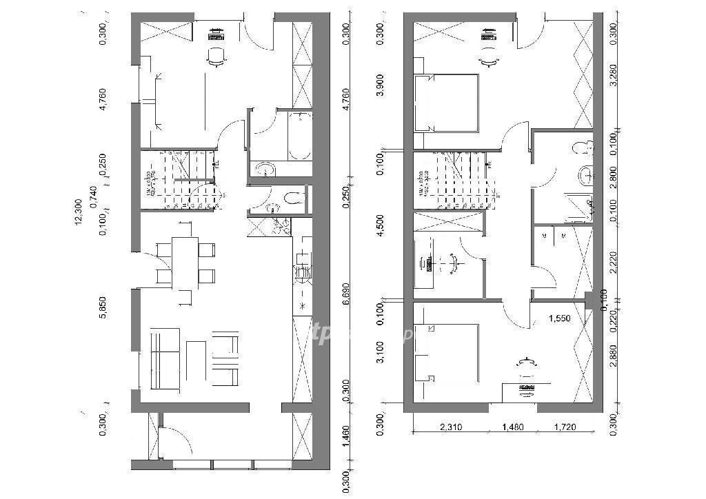
Gyál frekventált, mégis nyugodt részén kínálok megvételre egy 151,7 m2-es, teljeskörűen felújított, kétszintes ikerházat. Az ingatlan modern kialakítása, tágas terei és praktikus elrendezése ideális választás családok számára.
A földszinten előszoba, amerikai konyhás nappali, külön szülői háló terasszal, privát fürdőszobával, külön WC található. Az emeleten közlekedő, két további hálószoba, dolgozószoba, valamint egy kádas és egy zuhanyzós fürdőszoba-WC kapott helyet.
Az ingatlan saját garázzsal, hangulatos terasszal és gondozott udvarral kerül átadásra. Minden adott lesz a kényelmes, nyugodt életvitelhez.
A teljes felújítás során korszerű gépészeti rendszerek, igényes burkolatok és modern belsőépítészeti megoldások kerültek beépítésre. Az új tulajdonosnak már csak be kell költöznie.
A vételár a teljesen befejezett, teljeskörűen felújított állapotra vonatkozik. Már csak a gépesített konyhabútor és a kert rendezése hiányzik.
A környék
Családbarát, csendes, mégis kiválóan megközelíthető. Iskola, óvoda, üzletek és tömegközlekedés rövid sétával elérhetők. A kertvárosi nyugalmat keresők számára ideális, miközben Budapest közelsége kényelmes mindennapokat biztosít.
Ez az ingatlan nem csupán egy ház- ez egy kész otthon, ahol minden a helyén van.
Hívjon bizalommal, tekintse meg és tegyen ajánlatot!
Gyál frekventált, mégis nyugodt részén kínálok megvételre egy 151,7 m2-es, teljeskörűen felújított, kétszintes ikerházat. Az ingatlan modern kialakítása, tágas terei és praktikus elrendezése ideális választás családok számára.
A földszinten előszoba, amerikai konyhás nappali, külön szülői háló terasszal, privát fürdőszobával, külön WC található. Az emeleten közlekedő, két további hálószoba, dolgozószoba, valamint egy kádas és egy zuhanyzós fürdőszoba-WC kapott helyet.
Az ingatlan saját garázzsal, hangulatos terasszal és gondozott udvarral kerül átadásra. Minden adott lesz a kényelmes, nyugodt életvitelhez.
A teljes felújítás során korszerű gépészeti rendszerek, igényes burkolatok és modern belsőépítészeti megoldások kerültek beépítésre. Az új tulajdonosnak már csak be kell költöznie.
A vételár a teljesen befejezett, teljeskörűen felújított állapotra vonatkozik. Már csak a gépesített konyhabútor és a kert rendezése hiányzik.
A környék
Családbarát, csendes, mégis kiválóan megközelíthető. Iskola, óvoda, üzletek és tömegközlekedés rövid sétával elérhetők. A kertvárosi nyugalmat keresők számára ideális, miközben Budapest közelsége kényelmes mindennapokat biztosít.
Ez az ingatlan nem csupán egy ház- ez egy kész otthon, ahol minden a helyén van.
Hívjon bizalommal, tekintse meg és tegyen ajánlatot!