Eladó Ház- házrész
Hirdetéskód: 9265173
Szi-We Otthona Kft.
161.00 m2
ALAPTERÜLET5
SZOBASZÁMnincs megadva
ÉPÍTÉSnincs megadva
FŰTÉS- CSOK igénybe vehető nem
- Tetőtér beépíthető nem
- Építés éve 2025
- Klíma nem
- Szigetelt nem
A+++
A++
A+
A
B
C
D
E
F
G
H
I
Az ingatlan leírása
Eladó újépítésű családi ház Gyálon!
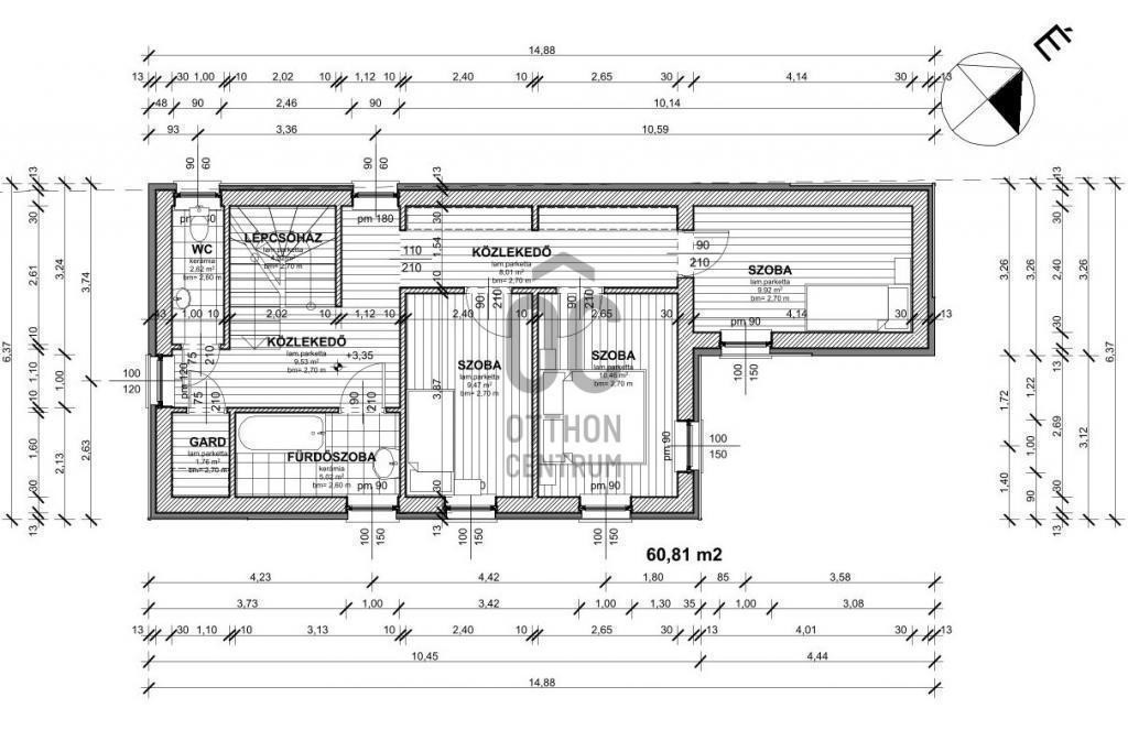
Alapterület:nettó 161 m2, bruttó 216m2
Szobák száma: 4 szoba + nappali-konyha
Oldalhatárra épített, emeletes családi ház rendezett környéken.
Műszaki tartalom (részlet)
- falazata 30-as Porotherm tégla 15 cm-es szigeteléssel, lábazat 12 cm XPS szigetelés
- válaszfalak 10 cm-es tégla
- hőszivattyús padlófűtés
- 3 rétegű külső nyílászárók, antracit szürke kivitelben
-toló-bukó teraszablak
-Elektromos redőny,
- hideg-, meleg burkolatok, szaniterek belső nyílászárók választhatók
- 1 klíma a nappaliban, további klíma kiállás minden helyiségben.
-elektromos garázsajtó és kettő elektromos kapu
-Riasztó- és kamerarendszer kiállás,
-külső homlokzati világítás,
- autóbeálló viakolorral burkolva.
-Napelem előkészítés
- 3x25 amper
Az alaprajz tájékoztató jellegű!
Egyedi kívánságok figyelembevételével:
A ház építkezésének készenléti állapotától függően lehetőség van egyedi igények megvalósítására, AKÁR a már kész részek átalakítására,felár fejében, burkolatok, szaniterek és beltéri ajtók választására, így otthona még inkább az Ön egyéni ízlésére szabható.
Teljes műszaki leírás és dokumentáció rendelkezésre áll, kérésre szívesen megküldöm.
Jelenlegi készültségi szint: A falazásnál tartanak
Az ár kulcsrakész állapotra vonatkozik.
Átadás várható ideje: 2026.03.30.
osztatlan közös ügyvédi megosztás.
Ne hagyja ki ezt a kivételes lehetőséget!
Hívjon a hét bármelyik napján, hogy megismerje közelebbről ezt a kiváló, minden igényt kielégítő családi házat!
További információval örömmel állok rendelkezésére.
Alapterület:nettó 161 m2, bruttó 216m2
Szobák száma: 4 szoba + nappali-konyha
Oldalhatárra épített, emeletes családi ház rendezett környéken.
Műszaki tartalom (részlet)
- falazata 30-as Porotherm tégla 15 cm-es szigeteléssel, lábazat 12 cm XPS szigetelés
- válaszfalak 10 cm-es tégla
- hőszivattyús padlófűtés
- 3 rétegű külső nyílászárók, antracit szürke kivitelben
-toló-bukó teraszablak
-Elektromos redőny,
- hideg-, meleg burkolatok, szaniterek belső nyílászárók választhatók
- 1 klíma a nappaliban, további klíma kiállás minden helyiségben.
-elektromos garázsajtó és kettő elektromos kapu
-Riasztó- és kamerarendszer kiállás,
-külső homlokzati világítás,
- autóbeálló viakolorral burkolva.
-Napelem előkészítés
- 3x25 amper
Az alaprajz tájékoztató jellegű!
Egyedi kívánságok figyelembevételével:
A ház építkezésének készenléti állapotától függően lehetőség van egyedi igények megvalósítására, AKÁR a már kész részek átalakítására,felár fejében, burkolatok, szaniterek és beltéri ajtók választására, így otthona még inkább az Ön egyéni ízlésére szabható.
Teljes műszaki leírás és dokumentáció rendelkezésre áll, kérésre szívesen megküldöm.
Jelenlegi készültségi szint: A falazásnál tartanak
Az ár kulcsrakész állapotra vonatkozik.
Átadás várható ideje: 2026.03.30.
osztatlan közös ügyvédi megosztás.
Ne hagyja ki ezt a kivételes lehetőséget!
Hívjon a hét bármelyik napján, hogy megismerje közelebbről ezt a kiváló, minden igényt kielégítő családi házat!
További információval örömmel állok rendelkezésére.