Eladó Ház- házrész
Hirdetéskód: 9212440
Fodor Ingatlanközvetítő Kft
Ez a hirdetés megfelelhet a FIX 3%-os programnak.
Tudj meg többet a részletekről itt.
161 m2
ALAPTERÜLET5
SZOBASZÁMTégla
ÉPÍTÉSEgyéb fűtés
FŰTÉS- CSOK igénybe vehető igen
- Belső szintek 2
- Tetőtér beépíthető nem
- Kilátás Udvari
- Ingatlan komfort Összkomfortos
- Parkolási lehetőség Önálló garázs
- Építés éve 2026
- Fűtés Egyéb fűtés
- Építőanyag Tégla
- Erkély, terasz Terasz
- Klíma igen
- Szigetelt nem
A+++
A++
A+
A
B
C
D
E
F
G
H
I
Az ingatlan leírása
ÚJ ÉPÍTÉSŰ PRÉMIUM CSALÁDI HÁZ GYÁL KÖZPONTJÁBAN!
Ha modern, minőségi otthont keresel, ami energiatakarékos, kényelmes és minden szempontból jövőálló, akkor megtaláltad!
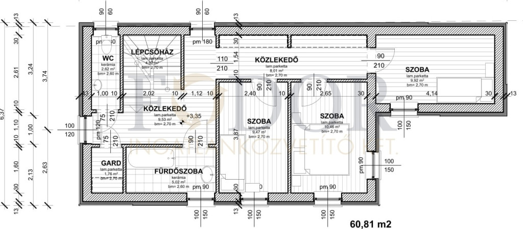
Eladó egy nettó 161 m²-es, letisztult, oldalhatárra épített, új építésű 2 szintes családi ház egy 449 m²-es saját telken, Gyál egyik legjobb, központi elhelyezkedésű részén.
A ház prémium műszaki tartalommal, tágas terekkel, nagy kerttel és igazi családi otthonra tervezett elrendezéssel készül.
Amerikai konyhás nappali + 4 külön nyíló szoba, dupla komfort, önálló garázs 27, 44 m2, terasz 13, 82 m2, modern gépészet – minden adott egy élhető, elegáns és hosszú távon fenntartható otthonhoz.
Várható átadás: 2026. I. negyedév
Főbb műszaki paraméterek
• Porotherm 30-as falazat, 15 cm hőszigeteléssel
• Lábazaton 12 cm XPS szigetelés
• 10 cm-es tégla válaszfalak
• 3 rétegű nyílászárók (kívül antracit, belül fehér)
• Elektromos redőnyök és szúnyoghálók
• Hőszivattyús padlófűtés + fürdőben elektromos törölközőszárító radiátor
• Nappaliban 1 db klíma, további szobákban klíma előkészítés
• Hő- és hangszigetelt, elektromos szekcionált garázskapu + 2 db elektromos kapu
• Viakolorral burkolt autóbeálló
• Riasztó- és kamerarendszer előkészítés
• Külső homlokzati LED világítás
• 3×25 A villamos teljesítmény
• Napelem előkészítéssel
• Teljes műszaki dokumentáció irodánkban elérhető
Jelenlegi készültségi szint (2025.11.14): Emeleti falazás elkészült.
Az ár kulcsrakész állapotra értendő – a burkolatok, beltéri ajtók és szaniterek választhatók.
Környék és elhelyezkedés
A lokáció kiváló: iskola, óvoda, boltok, szolgáltatások és tömegközlekedés pár perc sétára elérhetők.
A telek osztatlan közös, ügyvédi megosztással.
INGYENES HITEL- ÉS CSOK ÜGYINTÉZÉS!
Irodánk díjmentes hitelügyintézéssel, személyre szabott pénzügyi tanácsadással és az új CSOK program teljes körű ügyintézésével áll rendelkezésre.
Ha modern, minőségi otthont keresel, ami energiatakarékos, kényelmes és minden szempontból jövőálló, akkor megtaláltad!
Eladó egy nettó 161 m²-es, letisztult, oldalhatárra épített, új építésű 2 szintes családi ház egy 449 m²-es saját telken, Gyál egyik legjobb, központi elhelyezkedésű részén.
A ház prémium műszaki tartalommal, tágas terekkel, nagy kerttel és igazi családi otthonra tervezett elrendezéssel készül.
Amerikai konyhás nappali + 4 külön nyíló szoba, dupla komfort, önálló garázs 27, 44 m2, terasz 13, 82 m2, modern gépészet – minden adott egy élhető, elegáns és hosszú távon fenntartható otthonhoz.
Várható átadás: 2026. I. negyedév
Főbb műszaki paraméterek
• Porotherm 30-as falazat, 15 cm hőszigeteléssel
• Lábazaton 12 cm XPS szigetelés
• 10 cm-es tégla válaszfalak
• 3 rétegű nyílászárók (kívül antracit, belül fehér)
• Elektromos redőnyök és szúnyoghálók
• Hőszivattyús padlófűtés + fürdőben elektromos törölközőszárító radiátor
• Nappaliban 1 db klíma, további szobákban klíma előkészítés
• Hő- és hangszigetelt, elektromos szekcionált garázskapu + 2 db elektromos kapu
• Viakolorral burkolt autóbeálló
• Riasztó- és kamerarendszer előkészítés
• Külső homlokzati LED világítás
• 3×25 A villamos teljesítmény
• Napelem előkészítéssel
• Teljes műszaki dokumentáció irodánkban elérhető
Jelenlegi készültségi szint (2025.11.14): Emeleti falazás elkészült.
Az ár kulcsrakész állapotra értendő – a burkolatok, beltéri ajtók és szaniterek választhatók.
Környék és elhelyezkedés
A lokáció kiváló: iskola, óvoda, boltok, szolgáltatások és tömegközlekedés pár perc sétára elérhetők.
A telek osztatlan közös, ügyvédi megosztással.
INGYENES HITEL- ÉS CSOK ÜGYINTÉZÉS!
Irodánk díjmentes hitelügyintézéssel, személyre szabott pénzügyi tanácsadással és az új CSOK program teljes körű ügyintézésével áll rendelkezésre.