Eladó Ház- házrész
Hirdetéskód: 9219755
Fővállalkozó Balla és Balla Kft
Ez a hirdetés megfelelhet a FIX 3%-os programnak.
Tudj meg többet a részletekről itt.
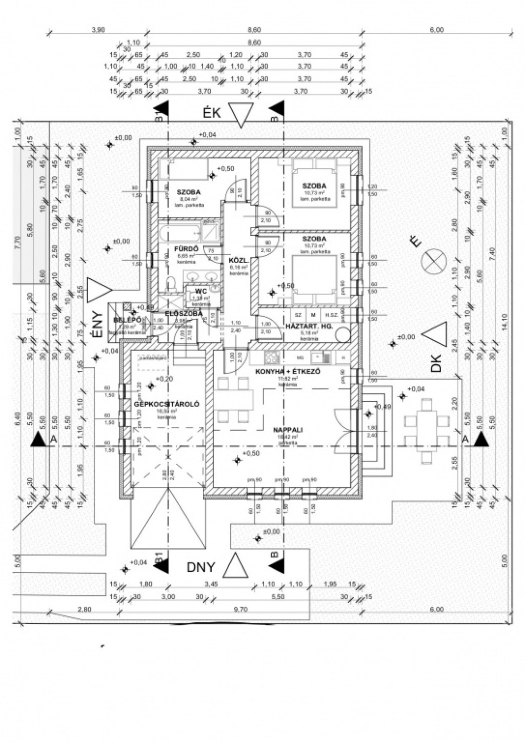
100 m2
ALAPTERÜLET4
SZOBASZÁMnincs megadva
ÉPÍTÉSnincs megadva
FŰTÉS- CSOK igénybe vehető nem
- Tetőtér beépíthető nem
- Építés éve 20225
- Klíma nem
- Szigetelt nem
A+++
A++
A+
A
B
C
D
E
F
G
H
I
Az ingatlan leírása
ÚJ ÉPÍTÉSŰ KÖRBEJÁRHATÓ !!!!!!!!! Energia takarékos családi házat kínálok megvásárlásra Gyál központi részén / minden kiszolgáló egység séta távolságra/ de mégis csendes mert a telek hátsó részén épül az ingatlan.
KIHAGYHATATLAN AJÁNLAT : egy igazi ritkaságot ajánlok Önnek ez nem ikerház nincs összeépítve,különálló, körbejárható és még ráadásnak földszintes is, várom mielőbbi hívását ne maradjon le róla.
A házról pár műszaki adat a teljesség igénye nélkül, megtekintéskor tudok egy részletes műszakil leírással szolgálni.
A mai kor elvárásainak megfelelő minőségi korszerű anyagokból épül a ház.A kivitelező referenciákkal rendelkezik, megbízható tőke erős a környéken több ingatlant épített.
30-as porotherm téglafalak, 15 cm-es homlokzati szigetelés,lábazat 10 cm-es Nikecel, födém 30 cm -es kőzetgyapot, 6 légkamrás, 3 rétegú üvegezéssel műanyag nyílászárók,redőnnyel szúnyoghálóval.
Hőszivattyús fűtés / 8 KW-os SPLIT /1 db klíma , a melegvizet 210 l-es puffer tartály biztosítja.1x32 A + 1X32 A H tarifás villany óra, a biztonságról 2 kezelővel rendelkező riasztó lesz beüzemelve.
Nappali + 3 háló, háztartási helyiség és 16,5 nm -es garázs.
További információkért kereshet a hét bármely napján, megtekintés rugalmas hétvégén is megtekinthető.
KIHAGYHATATLAN AJÁNLAT : egy igazi ritkaságot ajánlok Önnek ez nem ikerház nincs összeépítve,különálló, körbejárható és még ráadásnak földszintes is, várom mielőbbi hívását ne maradjon le róla.
A házról pár műszaki adat a teljesség igénye nélkül, megtekintéskor tudok egy részletes műszakil leírással szolgálni.
A mai kor elvárásainak megfelelő minőségi korszerű anyagokból épül a ház.A kivitelező referenciákkal rendelkezik, megbízható tőke erős a környéken több ingatlant épített.
30-as porotherm téglafalak, 15 cm-es homlokzati szigetelés,lábazat 10 cm-es Nikecel, födém 30 cm -es kőzetgyapot, 6 légkamrás, 3 rétegú üvegezéssel műanyag nyílászárók,redőnnyel szúnyoghálóval.
Hőszivattyús fűtés / 8 KW-os SPLIT /1 db klíma , a melegvizet 210 l-es puffer tartály biztosítja.1x32 A + 1X32 A H tarifás villany óra, a biztonságról 2 kezelővel rendelkező riasztó lesz beüzemelve.
Nappali + 3 háló, háztartási helyiség és 16,5 nm -es garázs.
További információkért kereshet a hét bármely napján, megtekintés rugalmas hétvégén is megtekinthető.