Eladó Ház- házrész
Hirdetéskód: 9219492
Duna House - Új-Lak Bázis Kft.
118 m2
ALAPTERÜLET5
SZOBASZÁMnincs megadva
ÉPÍTÉSnincs megadva
FŰTÉS- CSOK igénybe vehető nem
- Tetőtér beépíthető nem
- Építés éve 2025
- Klíma nem
- Szigetelt nem
A+++
A++
A+
A
B
C
D
E
F
G
H
I
Az ingatlan leírása
ÖNÁLLÓ családi ház EXTRA ALACSONY FENNTARTÁS A++ ENERGETIKAI BESOROLÁS!
Modern, energiatakarékos otthon nyújtotta kényelemre vágysz Budapest közelében? Gyál új MINI LAKÓPARKja neked épül! Ez a ház nem csak szép technológiában felső kategória, hosszú távon is pénzt és energiát spórol a tulajdonosának.
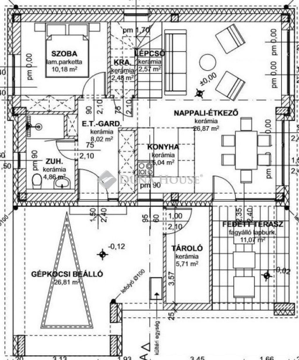
Eladásra kínálunk egy önálló, új építésű, 118 m²-es családi házat, amerikai konyhás nappalival, 4 hálószobával, 2 fürdővel, fedett terasszal és autóbeállóval, 423 m²-es saját telekrésszel.
EXTRA MAGAS MŰSZAKI FELSZERELTSÉG - a JÖVŐ otthona már MA!
Prémium építőanyagok
POROTHERM 30 X-Therm teherhordó falazat
18 cm grafitos külső hőszigetelés
40 cm kőzetgyapot tetőszigetelés
15 cm lépésálló padlószigetelés télen meleg, nyáron hűvös
Hőszivattyús fűtés és mennyezethűtés a legmodernebb megoldások
Mitsubishi vagy Bosch Ecoinverter 6 kW-os hőszivattyú
H tarifa alacsony hőszivattyús energiaárakhoz
Padlófűtés minden helyiségben (igen, a garázsban is!)
Mennyezetbe integrált hűtő/fűtő panelek klímakomfort huzat nélkül
Szintenként termosztát, helyiségenkénti szabályozás opcióval
200 literes indirekt melegvíztároló + extra puffer hűtéshez
Modern elektromos infrastruktúra
További jó híreim vannak!
Most még választható szaniterek!! Burkolatok 10 000 Ft/m² árig!
Várható átadás: 2026. II. negyedév
MIÉRT VÁLASZD GYÁLT?
Néhány perc az M0 és számtalan lehetőség a fővárosba való bejutásra ( kötött pálya is)
Kiváló ár-érték arány az agglomerációban
Gyermek- és család centrikus környezet
Modern, energiatakarékos otthon nyújtotta kényelemre vágysz Budapest közelében? Gyál új MINI LAKÓPARKja neked épül! Ez a ház nem csak szép technológiában felső kategória, hosszú távon is pénzt és energiát spórol a tulajdonosának.
Eladásra kínálunk egy önálló, új építésű, 118 m²-es családi házat, amerikai konyhás nappalival, 4 hálószobával, 2 fürdővel, fedett terasszal és autóbeállóval, 423 m²-es saját telekrésszel.
EXTRA MAGAS MŰSZAKI FELSZERELTSÉG - a JÖVŐ otthona már MA!
Prémium építőanyagok
POROTHERM 30 X-Therm teherhordó falazat
18 cm grafitos külső hőszigetelés
40 cm kőzetgyapot tetőszigetelés
15 cm lépésálló padlószigetelés télen meleg, nyáron hűvös
Hőszivattyús fűtés és mennyezethűtés a legmodernebb megoldások
Mitsubishi vagy Bosch Ecoinverter 6 kW-os hőszivattyú
H tarifa alacsony hőszivattyús energiaárakhoz
Padlófűtés minden helyiségben (igen, a garázsban is!)
Mennyezetbe integrált hűtő/fűtő panelek klímakomfort huzat nélkül
Szintenként termosztát, helyiségenkénti szabályozás opcióval
200 literes indirekt melegvíztároló + extra puffer hűtéshez
Modern elektromos infrastruktúra
További jó híreim vannak!
Most még választható szaniterek!! Burkolatok 10 000 Ft/m² árig!
Várható átadás: 2026. II. negyedév
MIÉRT VÁLASZD GYÁLT?
Néhány perc az M0 és számtalan lehetőség a fővárosba való bejutásra ( kötött pálya is)
Kiváló ár-érték arány az agglomerációban
Gyermek- és család centrikus környezet