Eladó Ház- házrész
Hirdetéskód: 9184140

Duna House - Új-Lak Bázis Kft.

FIX 3% Program

Ez a hirdetés megfelelhet a FIX 3%-os programnak.
Tudj meg többet a részletekről itt.

106 m2
ALAPTERÜLET
5
SZOBASZÁM
nincs megadva
ÉPÍTÉS
nincs megadva
FŰTÉS
  • CSOK igénybe vehető nem
  • Tetőtér beépíthető nem
  • Építés éve 2025
  • Klíma nem
  • Szigetelt nem
Energetikai besorolás: Nincs meghatározva
A+++
A++
A+
A
B
C
D
E
F
G
H
I

Az ingatlan leírása

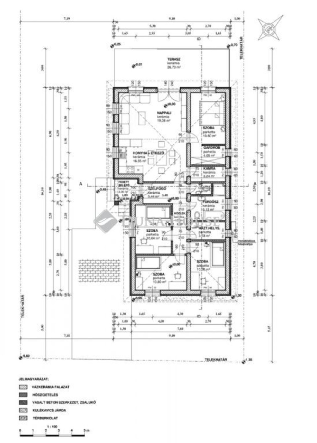
Gomba településen, eladó újépítésű önálló családi ház, 4 szoba + nappalis, 832 nm - es telekkel, hőszivattyús fűtéssel, 26 nm-es terasszal!3 gyerekes csok pluszra alkalmas!Közművek be vannak vezetve, rendelkezik víz, villany és szennyvízcsatornával.Az M4-es autóút pár perc alatt elérhető a háztól!Az ingatlan nagyon kedvező rezsivel fog rendelkezni a megfelelő hőszigetelésnek és a hőszivattyús fűtésnek köszönhetően.Műszaki adatok röviden:Tégla építés 10 cm-es homlokzati szigeteléssel, födém 30 cm-es hőszigeteléssel, 5 légkamrás műanyag nyílászárók, szúnyoghálóval és redőnyökkel felszerelve, kívül - belül műanyag párkányok, betoncserép, H tarifás villanyóra, 3X20 Amper, elektromos kapu, fischer 3,5 kw-os hűtő-fűtő klíma, 8 kw-os fischer hőszivattyú, választható hideg- és meleg burkolatok 8000 ft/nm áron, belső ajtók 100 000 ft / db, választható szaniterek, Geberit WC-k, elektromos kapu, nappaliban hűtő-fűtő klíma, padlófűtés mindenhol, a fürdőszobában törölközőszárítós radiátor, gépi vakolás, 60 nm viacolorral burkolt autóbeálló és járdák, elektromos redőny a teraszon, BB energetikai besorolás, 26 nm-es nappali kapcsolatos terasz.Belső elrendezését az alábbiakban sorolom fel, négyzetméterek megjelölésével:fedett belépő 3.36 nmelőszoba: 5.44 nmkonyha + étkező 16.35 nmnappali 19.08 nmszoba 10.64 nmszoba 10.80 nmszoba 10.26 nmszoba 10.80 nmkamra 3.24 nmközlekedő 4.29 nmfürdőszoba + wc 6.13 nmháztartási helyiség 3.78 nmWC 1,44 nmgardrób 4.05 nm+ nappali kapcsolatos terasz 26.7 nm-es Referenciamunkát tudunk mutatni. Az építő cég anyagilag biztos talpakon áll és szakmailag megbízható, elégedett ügyfelekkel rendelkezik!A hirdetésben szereplő képek referencia fotók!Várható befejezés: szerződéskötéstől számítva 4-5 hónap! Amennyiben felkeltettem érdeklődésed keress nyugodtan, és gyere, nézd meg velem az ingatlant!Hitel ügyintézés garantáltan a legjobb feltételekkel és a leggyorsabban. Eladás és vétel teljes körű ügyintézése, ingyenes tanácsadás, értékbecslés, megbízható ügyvédi háttér biztosítása.

Térkép

A hirdető elérhetősége

Duna House - Új-Lak Bázis Kft.

Szabó Róbert
+36 20 520