Eladó Ház- házrész
Hirdetéskód: 9229420
GDN Ingatlanhálózat - Örs Vezér tér
245 m2
ALAPTERÜLET8
SZOBASZÁMnincs megadva
ÉPÍTÉSGáz (cirkó)
FŰTÉS- CSOK igénybe vehető nem
- Tetőtér beépíthető nem
- Fűtés Gáz (cirkó)
- Klíma nem
- Szigetelt nem
A+++
A++
A+
A
B
C
D
E
F
G
H
I
Az ingatlan leírása
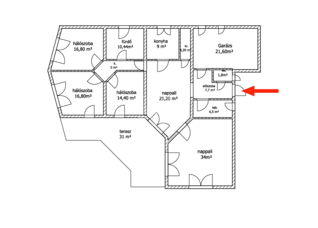
Eladásra kínálok Gödöllő kedvelt, kertvárosias részén, egy 7 szobás, földszint+beéíptett tetőteres családi házat.
Szerkezete: tégla 36 cm Porotherm.
Tető: sátor tető, cserép fedéssel.
Felosztása:
- földszint (150 nm): előszoba, fürdőszoba, wc, amerikai konyhás nappali,spájz, közlekedő, 5 hálószoba.
- tetőtér (98 nm)r: közlekedő, konyha, fürdőszoba, wc, 2 hálószoba.
A nappaliból a beépített (téli kert szerű) teraszra érkezünk ki, amely hozzávetőleg 30 nm nagyságú.
Extrák: udvarban egy különálló kis ház található, ahol elektromosság került bevezetésre, szintén tégla épület.
Saját garázs. Kertben szaleti.
6 db hűtő fűtő klíma.
Riasztórendszer.
2 elektromos nagykapu.
Locsolórendszer.
Redőny, szúnyoghálóval.
5 éve komplett villany és vízvezeték felújítás, tetőtér beépítésére is ekkor került sor.
A fűtésről a kondenzáció gázkazán gondoskodik. Padlófűtéses hőleadással.
Hívjon bizalommal, tekintsük meg együtt! ...TOVÁBBI, TÖBBEZRES INGATLAN KÍNÁLAT: - GDN azonosító: 389062
Szerkezete: tégla 36 cm Porotherm.
Tető: sátor tető, cserép fedéssel.
Felosztása:
- földszint (150 nm): előszoba, fürdőszoba, wc, amerikai konyhás nappali,spájz, közlekedő, 5 hálószoba.
- tetőtér (98 nm)r: közlekedő, konyha, fürdőszoba, wc, 2 hálószoba.
A nappaliból a beépített (téli kert szerű) teraszra érkezünk ki, amely hozzávetőleg 30 nm nagyságú.
Extrák: udvarban egy különálló kis ház található, ahol elektromosság került bevezetésre, szintén tégla épület.
Saját garázs. Kertben szaleti.
6 db hűtő fűtő klíma.
Riasztórendszer.
2 elektromos nagykapu.
Locsolórendszer.
Redőny, szúnyoghálóval.
5 éve komplett villany és vízvezeték felújítás, tetőtér beépítésére is ekkor került sor.
A fűtésről a kondenzáció gázkazán gondoskodik. Padlófűtéses hőleadással.
Hívjon bizalommal, tekintsük meg együtt! ...TOVÁBBI, TÖBBEZRES INGATLAN KÍNÁLAT: - GDN azonosító: 389062