Eladó Ház- házrész
Hirdetéskód: 9303020
GDN Ingatlanhálózat - Best Sellers
Felújításhoz személyi kölcsönt keres? Kalkuláljon itt! →
Ez a hirdetés megfelelhet a FIX 3%-os programnak.
Tudj meg többet a részletekről itt.
145.00 m2
ALAPTERÜLET4
SZOBASZÁMnincs megadva
ÉPÍTÉSnincs megadva
FŰTÉS- CSOK igénybe vehető nem
- Tetőtér beépíthető nem
- Klíma nem
- Szigetelt nem
A+++
A++
A+
A
B
C
D
E
F
G
H
I
Az ingatlan leírása
Eladó ikerházfél Gödöllő kedvelt kertvárosi részén!
Gödöllő egyik legkeresettebb, csendes, nyugodt környékén kínálunk megvételre egy modern, nappali + 3 szobás ikerházfelet, amelyet megbízható, referenciákkal rendelkező kivitelező épít. A ház kiváló választás családoknak, akik szeretnének jó elhelyezkedésű, új építésű otthonba költözni.
Műszaki jellemzők:
30 cm vastag PTH tégla falazat, 12 cm grafitos hőszigeteléssel
10 cm vastag válaszfalak, glettelve és fehérre festve
Lábazat: zsalukőből, szigetelve és vakolva
5 légkamrás, 3 rétegű üvegezésű műanyag nyílászárók középszürke színben
Monolit vasbeton födém
Antracit színű cserépfedés, középszürke ereszcsatorna
Atlantic Loria hőszivattyús rendszer beépített melegvíz-tárolóval
Padlófűtés minden helyiségben, fürdőszobában törölközőszárítós radiátor
Riasztó- és klíma előkészítés
Az ár tartalmazza:
Beltéri ajtók (60.000 Ft/db)
Hideg- és melegburkolatok (5.000 Ft/m²)
Teraszburkolat (6.500 Ft/m²)
Mosdók (20.000 Ft/db)
Csaptelepek (15.000 Ft/db)
Beépített Geberit WC-k (20.000 Ft/db)
Burkolatok és szaniterek szabadon választhatók a vevő igényei szerint!
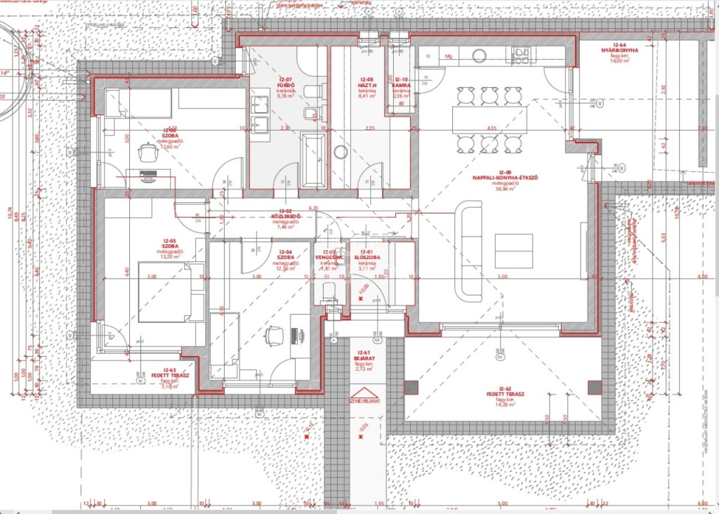
Helyiségek elosztása:
Előszoba
Nappali-konyha-étkező
Kamra
3 különálló szoba
Közlekedő
Tágas fürdőszoba
Vendégmosdó
Háztartási helyiség
17 m² fedett terasz
14 m²-es nyári konyha
Telek és parkolás:
Saját, szeparált mintegy 550 m²-es telek
Kocsibeálló kialakítva
Környék és elhelyezkedés:
Kiváló környék, minden fontos hely (bolt, iskola, tömegközlekedés) 5 perces sétán belül elérhető. Ideális választás azoknak, akik nyugodt, kertvárosi környezetben keresnek otthont, de szeretnének közel maradni a városi infrastruktúrához.
Várható kulcsrakész átadás: 2026. június
Kérem hívjon bizalommal további információkért, megtekintésért.
Természetesen hitelt, támogatást igénylő vevőknek is állunk szíves rendelkezésére: szakértőink segítenek megtalálni a személyre szabott legjobb finanszírozási formát.
ID:384886 ...TOVÁBBI, TÖBBEZRES INGATLAN KÍNÁLAT: - GDN azonosító: 393826
Gödöllő egyik legkeresettebb, csendes, nyugodt környékén kínálunk megvételre egy modern, nappali + 3 szobás ikerházfelet, amelyet megbízható, referenciákkal rendelkező kivitelező épít. A ház kiváló választás családoknak, akik szeretnének jó elhelyezkedésű, új építésű otthonba költözni.
Műszaki jellemzők:
30 cm vastag PTH tégla falazat, 12 cm grafitos hőszigeteléssel
10 cm vastag válaszfalak, glettelve és fehérre festve
Lábazat: zsalukőből, szigetelve és vakolva
5 légkamrás, 3 rétegű üvegezésű műanyag nyílászárók középszürke színben
Monolit vasbeton födém
Antracit színű cserépfedés, középszürke ereszcsatorna
Atlantic Loria hőszivattyús rendszer beépített melegvíz-tárolóval
Padlófűtés minden helyiségben, fürdőszobában törölközőszárítós radiátor
Riasztó- és klíma előkészítés
Az ár tartalmazza:
Beltéri ajtók (60.000 Ft/db)
Hideg- és melegburkolatok (5.000 Ft/m²)
Teraszburkolat (6.500 Ft/m²)
Mosdók (20.000 Ft/db)
Csaptelepek (15.000 Ft/db)
Beépített Geberit WC-k (20.000 Ft/db)
Burkolatok és szaniterek szabadon választhatók a vevő igényei szerint!
Helyiségek elosztása:
Előszoba
Nappali-konyha-étkező
Kamra
3 különálló szoba
Közlekedő
Tágas fürdőszoba
Vendégmosdó
Háztartási helyiség
17 m² fedett terasz
14 m²-es nyári konyha
Telek és parkolás:
Saját, szeparált mintegy 550 m²-es telek
Kocsibeálló kialakítva
Környék és elhelyezkedés:
Kiváló környék, minden fontos hely (bolt, iskola, tömegközlekedés) 5 perces sétán belül elérhető. Ideális választás azoknak, akik nyugodt, kertvárosi környezetben keresnek otthont, de szeretnének közel maradni a városi infrastruktúrához.
Várható kulcsrakész átadás: 2026. június
Kérem hívjon bizalommal további információkért, megtekintésért.
Természetesen hitelt, támogatást igénylő vevőknek is állunk szíves rendelkezésére: szakértőink segítenek megtalálni a személyre szabott legjobb finanszírozási formát.
ID:384886 ...TOVÁBBI, TÖBBEZRES INGATLAN KÍNÁLAT: - GDN azonosító: 393826