Eladó Ház- házrész
Hirdetéskód: 9309196
OTP Ingatlanpont Csongrád
Felújításhoz személyi kölcsönt keres? Kalkuláljon itt! →356.00 m2
ALAPTERÜLET9
SZOBASZÁMnincs megadva
ÉPÍTÉSGáz (cirkó)
FŰTÉS- CSOK igénybe vehető nem
- Tetőtér beépíthető nem
- Építés éve 1995
- Fűtés Gáz (cirkó)
- Klíma nem
- Szigetelt nem
A+++
A++
A+
A
B
C
D
E
F
G
H
I
Az ingatlan leírása
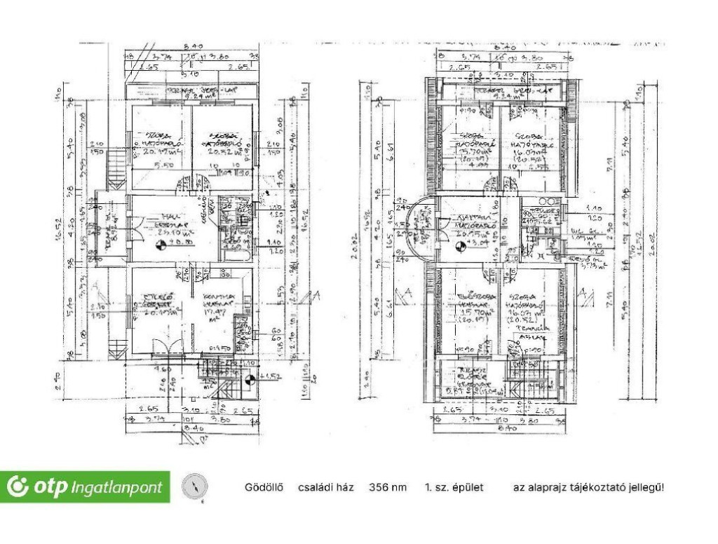
ELADÓ GÖDÖLLŐN 356 NM-ES, TÖBB LEHETŐSÉGET REJTŐ INGATLAN 3784 NM-ES TELKEN
Gödöllő egyik nyugodt, mégis jól megközelíthető részén kínálok megvételre egy összesen 356 nm alapterületű, két épületből álló ingatlant, 3784 nm-es, teraszos kialakítású telken.
A főépület 1994?95-ben épült, három szinten: alagsor, magasföldszint és emelet. Mindhárom szinten önálló konyha, fürdő és WC található, így a szintek külön egységként is használhatók.
- Magasföldszint: 3 tágas, napfényes szoba, tágas konyha, fürdő, WC
- Emelet: 4 tágas szoba, konyha, fürdőszoba WC-vel
- Alagsor: külön lakrész saját kis konyhával, fürdővel + akár 2 beállós garázs
A szintek jelenleg belső átjárással is kapcsolódnak, amely igény szerint megtartható vagy leválasztható - így az ingatlan könnyedén átalakítható többgenerációs otthonná de akár társasházzá is.
A melléképület jelenleg önálló lakóegység: nagy szoba, előszoba, konyha, fürdő, kamra. Ideális vendégház, de irodának, műhelynek vagy kiadható lakásnak is ideális.
Az épületek statikailag stabilak, szerkezetileg jó állapotúak. Jelenleg nem lakott, ezért esztétikai és gépészeti korszerűsítés javasolt - ami egyben lehetőség is: a kialakítás teljes mértékben az új tulajdonos igényeire szabható.
A 3784 nm-es, teraszos kialakítású telek korábban művelt volt, a gyümölcsfák még ma is megtalálhatók. A méret és az adottságok további fejlesztési potenciált hordoznak.
Kinek ajánljuk? Nagycsaládosoknak, több generáció együttélésére, vagy vállalkozóknak, akik az otthont és munkahelyet egy helyen képzelik el, de kiváló lehetőség befektetőknek is, akik több lakásos kialakításban gondolkodnak, akár eladásra, akár kiadásra.
Megtekintéssel kapcsolatban keressen bizalommal, rugalmasan tudom mutatni előzetes egyeztetés alapján. Ingatlanvásárláshoz az OTP Bank pénzügyi szolgáltatásait ajánlom (CSOK Plusz, Babaváró, piaci hitelek), melyek kedvezményes igénylésében szintén segítek!
Gödöllő egyik nyugodt, mégis jól megközelíthető részén kínálok megvételre egy összesen 356 nm alapterületű, két épületből álló ingatlant, 3784 nm-es, teraszos kialakítású telken.
A főépület 1994?95-ben épült, három szinten: alagsor, magasföldszint és emelet. Mindhárom szinten önálló konyha, fürdő és WC található, így a szintek külön egységként is használhatók.
- Magasföldszint: 3 tágas, napfényes szoba, tágas konyha, fürdő, WC
- Emelet: 4 tágas szoba, konyha, fürdőszoba WC-vel
- Alagsor: külön lakrész saját kis konyhával, fürdővel + akár 2 beállós garázs
A szintek jelenleg belső átjárással is kapcsolódnak, amely igény szerint megtartható vagy leválasztható - így az ingatlan könnyedén átalakítható többgenerációs otthonná de akár társasházzá is.
A melléképület jelenleg önálló lakóegység: nagy szoba, előszoba, konyha, fürdő, kamra. Ideális vendégház, de irodának, műhelynek vagy kiadható lakásnak is ideális.
Az épületek statikailag stabilak, szerkezetileg jó állapotúak. Jelenleg nem lakott, ezért esztétikai és gépészeti korszerűsítés javasolt - ami egyben lehetőség is: a kialakítás teljes mértékben az új tulajdonos igényeire szabható.
A 3784 nm-es, teraszos kialakítású telek korábban művelt volt, a gyümölcsfák még ma is megtalálhatók. A méret és az adottságok további fejlesztési potenciált hordoznak.
Kinek ajánljuk? Nagycsaládosoknak, több generáció együttélésére, vagy vállalkozóknak, akik az otthont és munkahelyet egy helyen képzelik el, de kiváló lehetőség befektetőknek is, akik több lakásos kialakításban gondolkodnak, akár eladásra, akár kiadásra.
Megtekintéssel kapcsolatban keressen bizalommal, rugalmasan tudom mutatni előzetes egyeztetés alapján. Ingatlanvásárláshoz az OTP Bank pénzügyi szolgáltatásait ajánlom (CSOK Plusz, Babaváró, piaci hitelek), melyek kedvezményes igénylésében szintén segítek!