Eladó Ház- házrész
Hirdetéskód: 9272106
Vede Casa Kft.
Felújításhoz személyi kölcsönt keres? Kalkuláljon itt! →
Ez a hirdetés megfelelhet a FIX 3%-os programnak.
Tudj meg többet a részletekről itt.
122.00 m2
ALAPTERÜLET4
SZOBASZÁMnincs megadva
ÉPÍTÉSnincs megadva
FŰTÉS- CSOK igénybe vehető nem
- Tetőtér beépíthető nem
- Klíma nem
- Szigetelt nem
A+++
A++
A+
A
B
C
D
E
F
G
H
I
Az ingatlan leírása
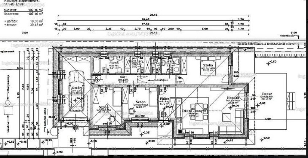
Göd központi részén eladó egy 122 nm-es, újépítésű családi ház, 450 nm-es saját kerttel.
Az ingatlan 30-as téglából épül, 15 cm-es EPS szigeteléssel és háromrétegű műanyag nyílászárókkal, amelyek stabil és jól szigetelt otthont biztosítanak. A fűtést hőszivattyú látja el, a teljes ház padlófűtéses.
Az elrendezés átgondolt: amerikai konyhás nappali, négy szoba, háztartási helyiség, egy zuhanyzós és egy kádas fürdőszoba szolgálja a kényelmet.
A cserépfedés tartós megoldást ad, a tervezett garázs helyett pedig igény esetén egy plusz szoba is kialakítható.
Az ingatlan jó elhelyezkedése és modern műszaki tartalma hosszú távon is kényelmes, jól használható otthont biztosít.
várható átadás: 2026. október
Jelen esetben foglalózás után, hideg meleg burkolatok, beltéri nyílászárók, szaniterek választhatóak melyek a meghirdetett ár részét képezik a belső műszaki tartalom szerint
Megtekintés érdekében vagy felmerülő kérdés esetén keresse irodánkat.
A hirdetésben szereplő adatok tájékoztató jellegűek.
Az ingatlan hitelre is megvásárolható. Bankfüggetlen tanácsadóink, az ország összes pénzintézete közül gyorsan és gördülékenyen találja meg az Önnek legmegfelelőbb konstrukciót, egyedi kedvezményekkel. A hitel és az ingatlan közvetítés vevőink részére díjmentes.
Az ingatlan 30-as téglából épül, 15 cm-es EPS szigeteléssel és háromrétegű műanyag nyílászárókkal, amelyek stabil és jól szigetelt otthont biztosítanak. A fűtést hőszivattyú látja el, a teljes ház padlófűtéses.
Az elrendezés átgondolt: amerikai konyhás nappali, négy szoba, háztartási helyiség, egy zuhanyzós és egy kádas fürdőszoba szolgálja a kényelmet.
A cserépfedés tartós megoldást ad, a tervezett garázs helyett pedig igény esetén egy plusz szoba is kialakítható.
Az ingatlan jó elhelyezkedése és modern műszaki tartalma hosszú távon is kényelmes, jól használható otthont biztosít.
várható átadás: 2026. október
Jelen esetben foglalózás után, hideg meleg burkolatok, beltéri nyílászárók, szaniterek választhatóak melyek a meghirdetett ár részét képezik a belső műszaki tartalom szerint
Megtekintés érdekében vagy felmerülő kérdés esetén keresse irodánkat.
A hirdetésben szereplő adatok tájékoztató jellegűek.
Az ingatlan hitelre is megvásárolható. Bankfüggetlen tanácsadóink, az ország összes pénzintézete közül gyorsan és gördülékenyen találja meg az Önnek legmegfelelőbb konstrukciót, egyedi kedvezményekkel. A hitel és az ingatlan közvetítés vevőink részére díjmentes.