Eladó Ház- házrész
Hirdetéskód: 9320911
Fővállalkozó Balla és Balla Kft
Felújításhoz személyi kölcsönt keres? Kalkuláljon itt! →184.00 m2
ALAPTERÜLET5
SZOBASZÁMnincs megadva
ÉPÍTÉSnincs megadva
FŰTÉS- CSOK igénybe vehető nem
- Tetőtér beépíthető nem
- Építés éve 1980
- Klíma nem
- Szigetelt nem
A+++
A++
A+
A
B
C
D
E
F
G
H
I
Az ingatlan leírása
Göd központjában a dunai oldalon, mindössze 3 perc sétára a Dunától - Göd egyik legnyugodtabb, kedvelt részén – 184 nm-es családi ház 652 nm-es saroktelken eladó!
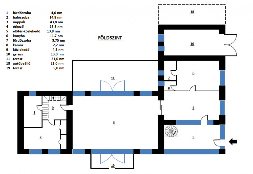
Az ingatlan egyik legnagyobb előnye, hogy könnyedén kétgenerációssá alakítható: az előszobából külön lépcső vezet az emeletre, így a szintek akár teljesen elszeparálhatók.
A ház központi tere egy óriási, 44 nm-es nappali, amely rengeteg lehetőséget kínál – ritkaság ekkora tér ebben a kategóriában.
A földszinten két terasz (21 nm és 5 nm) is helyet kapott, amelyek ideálisak pihenésre, étkezésre vagy baráti összejövetelekre, míg az emeleten egy 6 nm-es erkély biztosít további kényelmet.
A kert igazi plusz: nyugodt, intim hangulatú, saját ásott kúttal és öntözőrendszerrel, valamint egy praktikus, 8 nm-es fa tárolóval.
Főbb jellemzők:
- 13 nm-es garázs
- 44 nm-es, tágas nappali
- földszinten 21 nm + 5 nm terasz
- emeleten 6 nm-es erkély
- kétgenerációs kialakítás lehetősége
- 5 cm-es homlokzati szigetelés
- földszinten 2010-ben laminált burkolatcsere
- fűtés: gázcirkó + kandalló (radiátoros hőleadás)
- 2001-ben tetőfelújítás és korszerűsítések
Helyiségek:
Földszint: Nappali, hálószoba, 2 fürdőszoba-wc, konyha, kamra, étkező, közlekedő, előtér, garázs, 2 terasz
Emelet: 4 szoba, fürdőszoba-wc, erkély
A közelben minden megtalálható: iskola, óvoda, gyógyszertár, orvosi rendelő, bevásárlási lehetőségek, buszmegálló és vasútállomás is könnyen elérhető.
Az ingatlan ideális választás lehet összeköltözőknek, nagyobb családoknak, vagy akár olyanoknak is, akik egy jól alakítható otthont keresnek jó környéken.
Az ingatlan egyik legnagyobb előnye, hogy könnyedén kétgenerációssá alakítható: az előszobából külön lépcső vezet az emeletre, így a szintek akár teljesen elszeparálhatók.
A ház központi tere egy óriási, 44 nm-es nappali, amely rengeteg lehetőséget kínál – ritkaság ekkora tér ebben a kategóriában.
A földszinten két terasz (21 nm és 5 nm) is helyet kapott, amelyek ideálisak pihenésre, étkezésre vagy baráti összejövetelekre, míg az emeleten egy 6 nm-es erkély biztosít további kényelmet.
A kert igazi plusz: nyugodt, intim hangulatú, saját ásott kúttal és öntözőrendszerrel, valamint egy praktikus, 8 nm-es fa tárolóval.
Főbb jellemzők:
- 13 nm-es garázs
- 44 nm-es, tágas nappali
- földszinten 21 nm + 5 nm terasz
- emeleten 6 nm-es erkély
- kétgenerációs kialakítás lehetősége
- 5 cm-es homlokzati szigetelés
- földszinten 2010-ben laminált burkolatcsere
- fűtés: gázcirkó + kandalló (radiátoros hőleadás)
- 2001-ben tetőfelújítás és korszerűsítések
Helyiségek:
Földszint: Nappali, hálószoba, 2 fürdőszoba-wc, konyha, kamra, étkező, közlekedő, előtér, garázs, 2 terasz
Emelet: 4 szoba, fürdőszoba-wc, erkély
A közelben minden megtalálható: iskola, óvoda, gyógyszertár, orvosi rendelő, bevásárlási lehetőségek, buszmegálló és vasútállomás is könnyen elérhető.
Az ingatlan ideális választás lehet összeköltözőknek, nagyobb családoknak, vagy akár olyanoknak is, akik egy jól alakítható otthont keresnek jó környéken.