Eladó Ház- házrész
Hirdetéskód: 9300762
HOUSE36 Ingatlanhálózat
Felújításhoz személyi kölcsönt keres? Kalkuláljon itt! →
Ez a hirdetés megfelelhet a FIX 3%-os programnak.
Tudj meg többet a részletekről itt.
106.00 m2
ALAPTERÜLET3
SZOBASZÁMnincs megadva
ÉPÍTÉSEgyéb fűtés
FŰTÉS- CSOK igénybe vehető nem
- Tetőtér beépíthető nem
- Építés éve 1963
- Fűtés Egyéb fűtés
- Klíma nem
- Szigetelt nem
A+++
A++
A+
A
B
C
D
E
F
G
H
I
Az ingatlan leírása
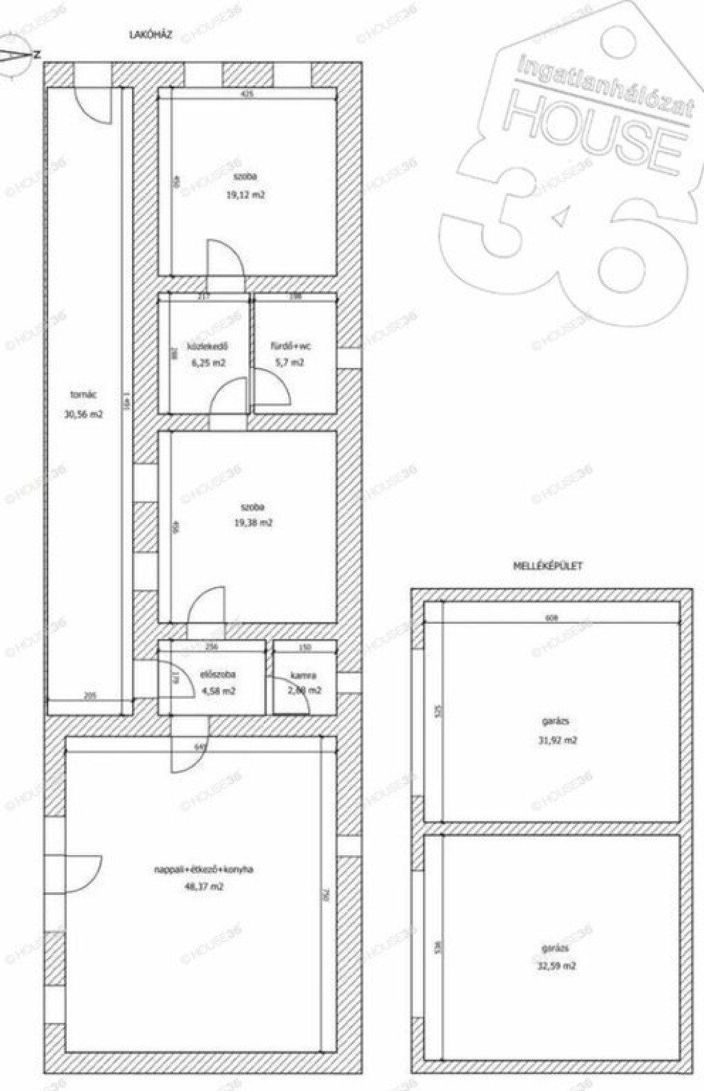
Az ingatlan vegyes falazatú, teljesen víz szigetelt ház, 2021-ben teljes körű felújításon esett át: új gipszkarton burkolat, korszerű nyílászárók – az otthon modern és energiatakarékos. A teljes lakótér 106,4 m2.
Az elrendezés kényelmes és praktikus:
∙ Tágas nappali kőburkolattal és kandallóval
∙ 2 további szoba meleg hangulatú hajópadlóval
∙ Fürdőszoba kőburkolattal
A fűtésről Baxi gázkazán gondoskodik, amelyet elektromos padlófűtés egészít ki. Nyáron a beépített légkondicionáló biztosítja a kellemes hőmérsékletet – télen és nyáron egyaránt kényelmes az élet ebben az otthonban.
Az ingatlan 754 m2-es telekrészen terül el, a teljes telek 1421 m²-es, két helyrajzi számon nyilvántartott dupla telek (a másik 667 m²). A telkek megosztása az eladás feltételei között egyeztethető.
Gerjen az elmúlt években jelentős fejlődésen ment át: új utak épültek, és átadták az új kalocsai Duna-hidat, amely komolyan felértékeli a térség közlekedési és gazdasági lehetőségeit. A közeli Paks (Paksi Atomerőmű, épülő Paks II.), valamint Szekszárd és Kalocsa gyors elérhetősége miatt a terület vonzereje folyamatosan nő.
A HOUSE36 kínálatában található összes ingatlannal kapcsolatban tudok felvilágosítást nyújtani!
További képekért és információért hívjon bizalommal!
Szolgáltatásaink Kereső ügyfeleink számára INGYENESEK! Amennyiben ELADÓ INGATLANA VAN, vagy FINANSZÍROZÁSI MEGOLDÁST KERES, hívjon, megtaláljuk a legjobb lehetőséget! HITELSPECIALISTÁNK MINDENBEN SEGÍT, irodánkban ez a szolgáltatás INGYENES!
Figyelem az adatlap megbízónktól kapott adatok alapján készült, pontosságáért felelősséget nem tudunk vállalni!
Az elrendezés kényelmes és praktikus:
∙ Tágas nappali kőburkolattal és kandallóval
∙ 2 további szoba meleg hangulatú hajópadlóval
∙ Fürdőszoba kőburkolattal
A fűtésről Baxi gázkazán gondoskodik, amelyet elektromos padlófűtés egészít ki. Nyáron a beépített légkondicionáló biztosítja a kellemes hőmérsékletet – télen és nyáron egyaránt kényelmes az élet ebben az otthonban.
Az ingatlan 754 m2-es telekrészen terül el, a teljes telek 1421 m²-es, két helyrajzi számon nyilvántartott dupla telek (a másik 667 m²). A telkek megosztása az eladás feltételei között egyeztethető.
Gerjen az elmúlt években jelentős fejlődésen ment át: új utak épültek, és átadták az új kalocsai Duna-hidat, amely komolyan felértékeli a térség közlekedési és gazdasági lehetőségeit. A közeli Paks (Paksi Atomerőmű, épülő Paks II.), valamint Szekszárd és Kalocsa gyors elérhetősége miatt a terület vonzereje folyamatosan nő.
A HOUSE36 kínálatában található összes ingatlannal kapcsolatban tudok felvilágosítást nyújtani!
További képekért és információért hívjon bizalommal!
Szolgáltatásaink Kereső ügyfeleink számára INGYENESEK! Amennyiben ELADÓ INGATLANA VAN, vagy FINANSZÍROZÁSI MEGOLDÁST KERES, hívjon, megtaláljuk a legjobb lehetőséget! HITELSPECIALISTÁNK MINDENBEN SEGÍT, irodánkban ez a szolgáltatás INGYENES!
Figyelem az adatlap megbízónktól kapott adatok alapján készült, pontosságáért felelősséget nem tudunk vállalni!