Eladó Ház- házrész
Hirdetéskód: 9267180

Velence Tópart utca 47 - OTP Ingatlanpont Iroda

123.00 m2
ALAPTERÜLET
1
SZOBASZÁM
nincs megadva
ÉPÍTÉS
nincs megadva
FŰTÉS
  • CSOK igénybe vehető nem
  • Tetőtér beépíthető nem
  • Építés éve 2025
  • Klíma nem
  • Szigetelt nem
Energetikai besorolás: Nincs meghatározva
A+++
A++
A+
A
B
C
D
E
F
G
H
I

Az ingatlan leírása

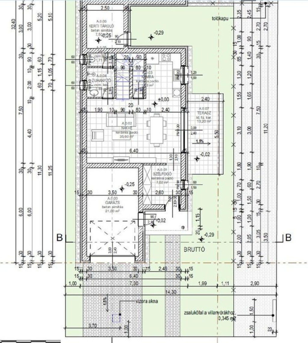
Fejér megye, Gárdony 123 nm-es új építésű ikerház fele eladó 251 nm-es saját kerttel. A tégla falazatú, szigetelt ingatlan a település központjához közel, mégis csendes környezetben található. A kulcsrakész állapot várható átadása 2026. április vége. Az modern házban tágas amerikai konyhás nappali, 3 félszoba, kamra, 2 fürdőszoba, 1 külön WC, gépészeti helyiség található, valamint tartozik hozzá 21 nm-es garázs, 13,2 nm-es terasz és 7,5 nm-es kerti tároló. A lakóegységek a kerti tárolónál csatlakoznak. Az épület B30-as téglából, 15 cm-es homlokzati, 30 cm-es födém szigeteléssel épült. Az összes nyílászáró 3 rétegű fa, redőnnyel és szúnyoghálóval felszerelt. Fűtése környezetbarát, energiatakarékos hőszivattyús rendszer, fűtés padlófűtéses hőleadással, mennyezeti hűtéssel. A házban még a beltéri ajtók, minden belső falszín, burkolat színe és mintája választható. A vételár tartalmazza a kulcsrakész állapotot, kerítéssel, elektromos garázskapuval, térkövezéssel. A közelben iskola, bevásárlási lehetőségek, orvosi rendelő, polgármesteri hivatal, posta, vasútállomás és a tópart. Jól átgondolt, élhető terekkel megálmodott, a legújabb rendszerek felhasználásával készülő ingatlan megvásárlásával egyszerre teremthet egy igényes, stílusos és barátságos otthont. Teljes körű ügyintézésben segítjük ügyfeleinket díjtalanul: Falusi CSOK, CSOK igénylése, kedvezményes hitel mobil bankári szolgáltatással, adásvétel teljes lebonyolításával. Bővebb információkért, kérem keressen bizalommal.

115000000 Ft

Térkép

A hirdető elérhetősége

Velence Tópart utca 47 - OTP Ingatlanpont Iroda

Lepsényi Kornél
+36 70 884