Eladó Ház- házrész
Hirdetéskód: 9209668
GDN Ingatlanhálózat - Immo Velence
Ez a hirdetés megfelelhet a FIX 3%-os programnak.
Tudj meg többet a részletekről itt.
105 m2
ALAPTERÜLET2
SZOBASZÁMnincs megadva
ÉPÍTÉSElektromos
FŰTÉS- CSOK igénybe vehető nem
- Tetőtér beépíthető nem
- Fűtés Elektromos
- Klíma nem
- Szigetelt nem
A+++
A++
A+
A
B
C
D
E
F
G
H
I
Az ingatlan leírása
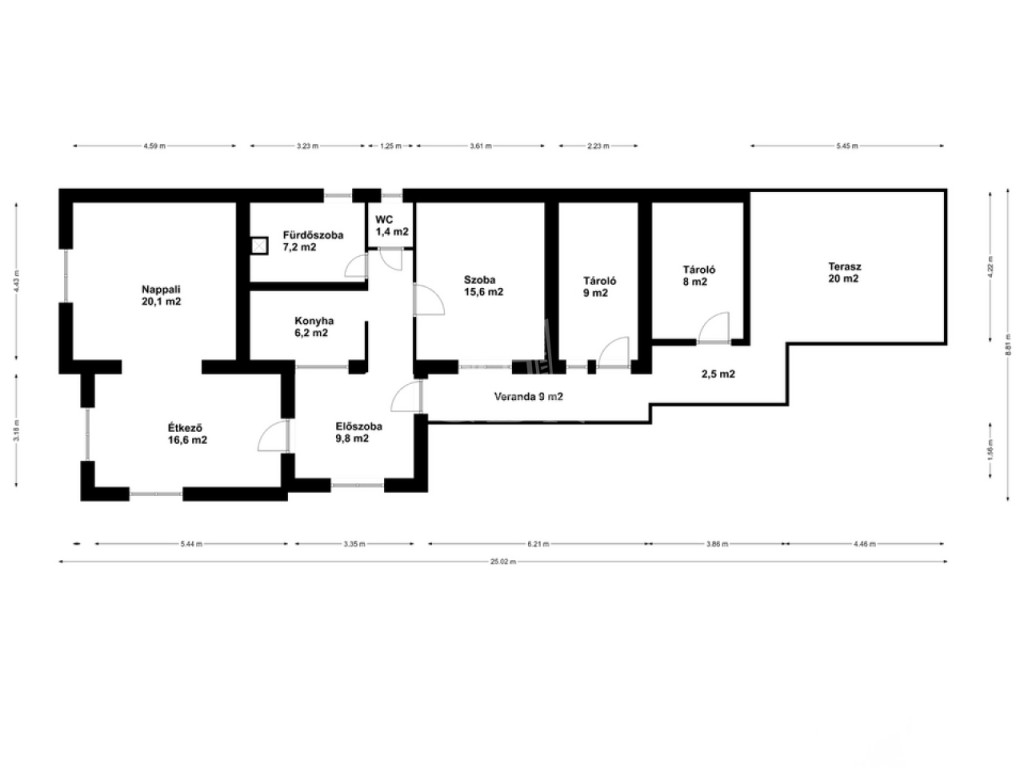
4890. Gárdonyban, 10 perc gyalogos távolságra a központtól és vasútállomástól, 1960-as években épült, 90-es évek elején bővített, 2016-ban és 2020-ban felújított, nettó 81 m2 nettó alapterületű, földszintes, szigetelt családi ház, verandával, terasszal, tárolóval, pincével, összközműves 873 m2-es telken eladó.
A kiváló állapotú eredeti vertfalú épület homlokzatára és a födémre kőzetgyapot hőszigetelés, a bővített tégla szerkezetű épületrész homlokzatára 8 cm-es grafitos hőszigetelés került. Az épület fűtését elektromos fűtőpanelek biztosítják alacsony fenntartási költségek mellett.
A ház 37 m2-es nappali-étkező, előszoba-étkező, konyha, fürdőszoba, wc, közlekedő helyiségekből áll. További hálószoba leválasztással kialakítható, illetve a verandáról nyíló jelenleg tároló funkciót ellátó helyiség is alkalmas lehet szoba kialakítására. Az épülethez csatlakozik egy tároló és egy 20 m2-es terasz, illetve a ház mellett található egy külön épület, fedett kiülő és pince. A kert gondozott, öntözése ásott kútból lehetséges. Ár: 82 MFt ...TOVÁBBI, TÖBBEZRES INGATLAN KÍNÁLAT: - GDN azonosító: 389610
A kiváló állapotú eredeti vertfalú épület homlokzatára és a födémre kőzetgyapot hőszigetelés, a bővített tégla szerkezetű épületrész homlokzatára 8 cm-es grafitos hőszigetelés került. Az épület fűtését elektromos fűtőpanelek biztosítják alacsony fenntartási költségek mellett.
A ház 37 m2-es nappali-étkező, előszoba-étkező, konyha, fürdőszoba, wc, közlekedő helyiségekből áll. További hálószoba leválasztással kialakítható, illetve a verandáról nyíló jelenleg tároló funkciót ellátó helyiség is alkalmas lehet szoba kialakítására. Az épülethez csatlakozik egy tároló és egy 20 m2-es terasz, illetve a ház mellett található egy külön épület, fedett kiülő és pince. A kert gondozott, öntözése ásott kútból lehetséges. Ár: 82 MFt ...TOVÁBBI, TÖBBEZRES INGATLAN KÍNÁLAT: - GDN azonosító: 389610