Eladó Ház- házrész
Hirdetéskód: 9190433

Székesfehérvár Palotai út 8 - OTP Ingatlanpont Iroda

FIX 3% Program

Ez a hirdetés megfelelhet a FIX 3%-os programnak.
Tudj meg többet a részletekről itt.

186 m2
ALAPTERÜLET
3
SZOBASZÁM
nincs megadva
ÉPÍTÉS
Gáz (cirkó)
FŰTÉS
  • CSOK igénybe vehető nem
  • Belső szintek 3
  • Tetőtér beépíthető nem
  • Építés éve 1984
  • Fűtés Gáz (cirkó)
  • Klíma nem
  • Szigetelt nem
Energetikai besorolás: Nincs meghatározva
A+++
A++
A+
A
B
C
D
E
F
G
H
I

Az ingatlan leírása

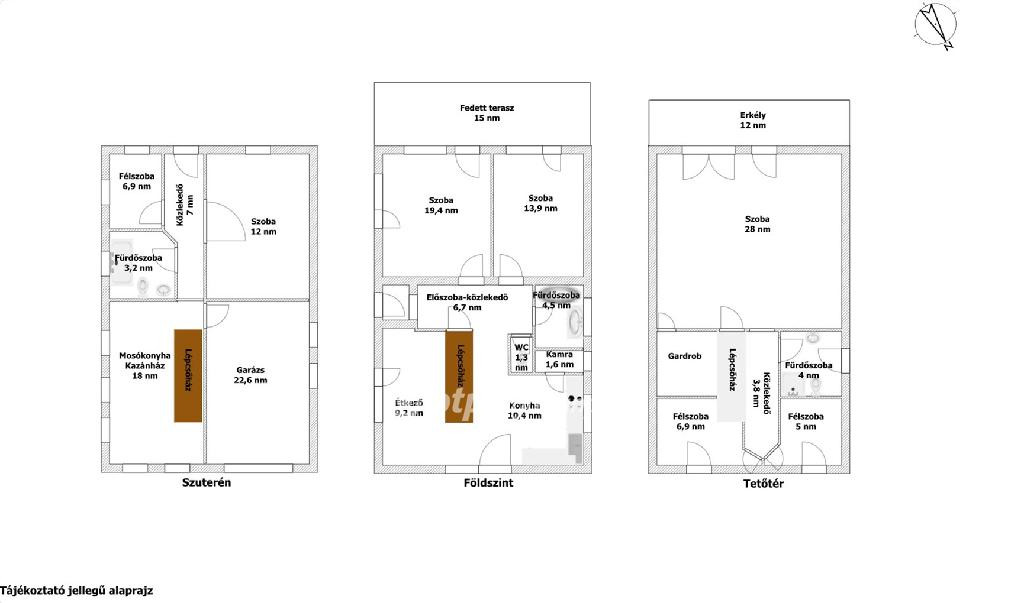
Fejér megye, Gárdony 186 nm-es családi ház eladó. A szigetelt, tégla falazatú lakóingatlan Gárdony központjától séta távolságra, mégis egy csendes, barátságos utcában egy 646 nm-es parkosított telken helyezkedik el. A felújított családi ház lakóterülete 115 nm (földszint + tetőtér), ezenfelül a szuterén 69,7 nm, a terasz 15 nm és az erkély 12 nm. A földszinten nappali, 1 szoba, konyha, étkező, kamra, fürdőszoba, külön WC található, valamint tartozik hozzá egy fedett terasz. A tetőtérben egy tágas szoba (két szobává alakítható), 2 félszoba, fürdőszoba, valamint egy erkély található. A szuterén részben 1 szoba, 1 félszoba, kazánház, garázs és fürdőszoba kapott helyet. A rendezett kertben tűzrakó beépített bográcsállvánnyal és egy nagy méretű melléképület található. A tetőtér a földszintről és külső feljáróval is megközelíthető. Az ingatlan alkalmas több generáció együttélésére, kiadásra, vagy akár a szuterén részen kialakítható üzlethelyiség is. A fűtésről kondenzációs gázkazán radiátoros hőleadással, hűtő fűtő klíma és elektromos panelek is gondoskodnak. A meleg vizet 120 literes gázbojler szolgáltatja, mely átköthető a kondenzációs gázkazánra. A felújítás során cserélték az összes külső nyílászárót 3 rétegű műanyagra, melyek szúnyoghálóval ellátottak, az utcafronti ablakok pedig redőnnyel is felszereltek. A felújítás során az épület 14 cm-es homlokzati, 10 cm-es lábazati szigetelést, új műanyag nyílászárókat, burkolatokat, konyhát kapott, cserélték a teljes elektromos hálózatot. Séta távolságra óvoda, iskola, orvosi rendelő, posta, bevásárlási lehetőségek, a vasútállomás és a tópart 15 perces sétával elérhető. Nyugodt, biztonságos környék, átmenőforgalomtól mentes utcában. Amennyiben felkeltette az érdeklődését, további kérdések esetén várom hívását, akár hétvégén is! Kedvezményes kamatú hitellel, teljes körű ügyintézéssel segítjük ügyfeleinket díjtalanul, az adásvétel és ingatlanátírás teljes lebonyolításával.

Térkép

A hirdető elérhetősége

Székesfehérvár Palotai út 8 - OTP Ingatlanpont Iroda

Darnai Henrietta
+36 20 487