Eladó Ház- házrész
Hirdetéskód: 9324671
5100 Jászberény Szentháromság tér 2. - OTP Ingatlanpont Iroda
Felújításhoz személyi kölcsönt keres? Kalkuláljon itt! →
Ez a hirdetés megfelelhet a FIX 3%-os programnak.
Tudj meg többet a részletekről itt.
101.00 m2
ALAPTERÜLET3
SZOBASZÁMnincs megadva
ÉPÍTÉSGáz (cirkó)
FŰTÉS- CSOK igénybe vehető nem
- Tetőtér beépíthető nem
- Építés éve 1987
- Fűtés Gáz (cirkó)
- Klíma nem
- Szigetelt nem
A+++
A++
A+
A
B
C
D
E
F
G
H
I
Az ingatlan leírása
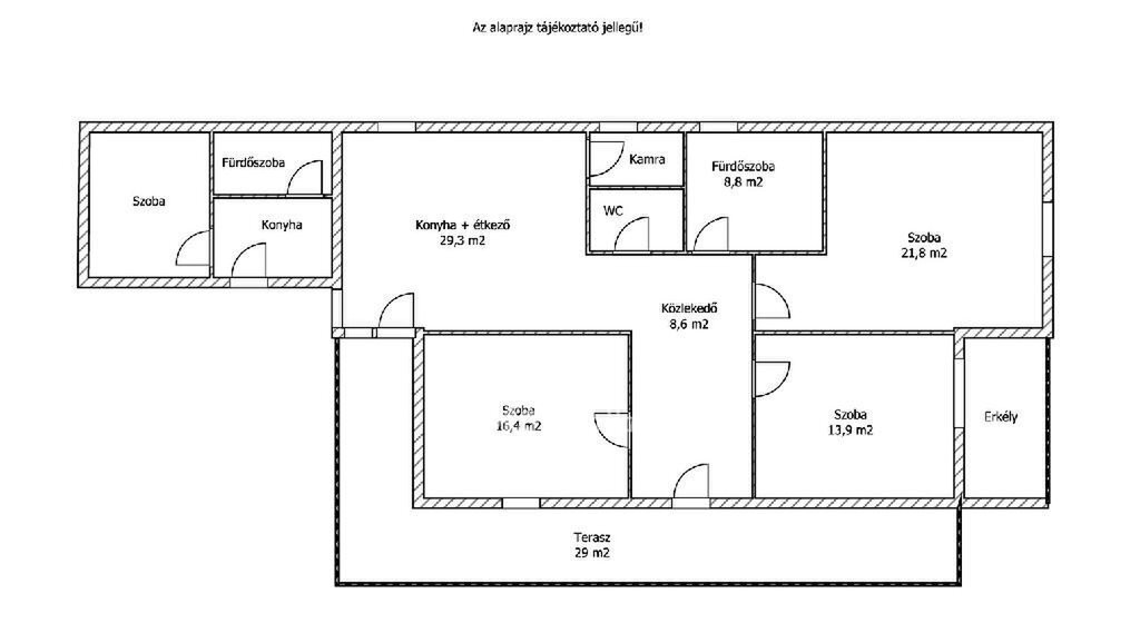
Tágas családi ház eladó Galgahévízen kétgenerációs lehetőséggel!
Megvételre kínálok Galgahévízen, egy csendes mellékutcában található, 101 nm-es alapterületű családi házat, 474 nm-es telken. Az ingatlan 1987-ben épült szilikát falazattal, szerkezetileg stabil, belső részek felújítandó állapotúak, így új tulajdonosa saját igényei szerint alakíthatja.
A főépületben 3 kényelmes hálószoba található, a belső terek tágasak és jól kihasználhatók.
A telken külön melléképület is található, amelyben egy önálló, egyszobás lakás került kialakításra. Ez ideális megoldás lehet két generáció együttélésére, vendéglakásként, vagy akár kiadásra is.
Műszaki jellemzők:
- Fűtés: gázkazán radiátoros hőleadással
- Alternatív fűtés: vegyestüzelésű kazán
- Összközműves ingatlan: víz, villany, gáz, csatorna
- Falazat: szilikát
- Állapot: felújítandó
- Tetőtér beépíthető
- Födémen 25 cm szigetelés
Főbb előnyök:
- 101 nm-es lakótér + különálló lakrész
- 474 nm-es telek, könnyen gondozható méret
- Kétgenerációs elrendezés lehetősége
- Csendes, nyugodt környezet
- Egyéni igényekre szabható kialakítás
Ne hagyja ki ezt a kiváló adottságú ingatlant, amely remek lehetőséget kínál akár nagyobb családok, akár befektetők számára!
Az ingatlan jelenleg csak Falusi CSOK-ra és Piaci hitelre alkalmas!
További információért és megtekintésért keressen bizalommal, akár hétvégén is!
Megvételre kínálok Galgahévízen, egy csendes mellékutcában található, 101 nm-es alapterületű családi házat, 474 nm-es telken. Az ingatlan 1987-ben épült szilikát falazattal, szerkezetileg stabil, belső részek felújítandó állapotúak, így új tulajdonosa saját igényei szerint alakíthatja.
A főépületben 3 kényelmes hálószoba található, a belső terek tágasak és jól kihasználhatók.
A telken külön melléképület is található, amelyben egy önálló, egyszobás lakás került kialakításra. Ez ideális megoldás lehet két generáció együttélésére, vendéglakásként, vagy akár kiadásra is.
Műszaki jellemzők:
- Fűtés: gázkazán radiátoros hőleadással
- Alternatív fűtés: vegyestüzelésű kazán
- Összközműves ingatlan: víz, villany, gáz, csatorna
- Falazat: szilikát
- Állapot: felújítandó
- Tetőtér beépíthető
- Födémen 25 cm szigetelés
Főbb előnyök:
- 101 nm-es lakótér + különálló lakrész
- 474 nm-es telek, könnyen gondozható méret
- Kétgenerációs elrendezés lehetősége
- Csendes, nyugodt környezet
- Egyéni igényekre szabható kialakítás
Ne hagyja ki ezt a kiváló adottságú ingatlant, amely remek lehetőséget kínál akár nagyobb családok, akár befektetők számára!
Az ingatlan jelenleg csak Falusi CSOK-ra és Piaci hitelre alkalmas!
További információért és megtekintésért keressen bizalommal, akár hétvégén is!