Eladó Ház- házrész
Hirdetéskód: 9246821
H &K Ingatlaniroda
Ez a hirdetés megfelelhet a FIX 3%-os programnak.
Tudj meg többet a részletekről itt.
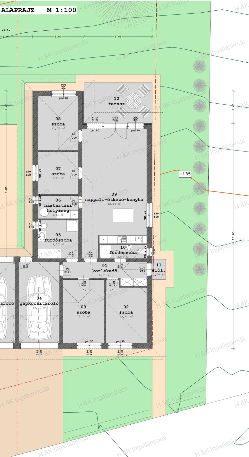
142.00 m2
ALAPTERÜLET5
SZOBASZÁMnincs megadva
ÉPÍTÉSnincs megadva
FŰTÉS- Építés éve 2026
A+++
A++
A+
A
B
C
D
E
F
G
H
I
Az ingatlan leírása
Kedves Otthonkereső!
Földszintes, csak a garázsokkal kapcsolódó ikerház mindkét fele eladó!!!!
Szíves figyelmébe ajánlom ezt az építés alatt álló ikerházat, mely Fót egyik kedvelt, nyugodt részén található. Az ingatlan jó arányú telekkel, átgondolt elrendezéssel és korszerű műszaki tartalommal készül, ideális választás lehet családosok számára, illetve mindazoknak, akik hosszú távon is kényelmes otthont keresnek.
Az építő munkájára jellemző a megbízhatóság és az igényesség, referencia ingatlanjai megtekinthetők.
Az ingatlan 142 m²-es, nappali + 4 szobás kialakítású, dupla komfortos, és egy 635 m²-es, kizárólagos használatú telek tartozik hozzá. A gondos tervezésnek köszönhetően a belső terek tágasak, jól bútorozhatók és élhetőek. A lakás központja a világos, amerikai konyhás nappali-étkező, amely természetes találkozási pontja a mindennapoknak.
A parkolás lakáskapcsolatos garázsban megoldott, amely közvetlenül az épületből érhető el.
Rövid műszaki tartalom:
Az épület korszerű szerkezeti és gépészeti megoldásokkal készül. A fűtés modern, gazdaságos hőszivattyús rendszerrel történik, a hő leadás minden helyiségben padlófűtéssel megoldott. A háromrétegű üvegezésű, hőszigetelt nyílászárók hozzájárulnak az alacsony fenntartási költségekhez és a csendes lakókörnyezethez.
Az ingatlan kulcsrakész állapotban kerül átadásra, konyhabútor nélkül.
Az ingatlan jelenleg építés alatt áll, így az új tulajdonosnak lehetősége van a burkolatok, szaniterek és belső ajtók kiválasztására a műszaki tartalomban feltüntetett keretösszegig a vételár részét képezve.
A környék rendezett, jól ellátott, a közelben iskola, óvoda és bevásárlási lehetőségek is elérhetők. Budapest autóval és tömegközlekedéssel egyaránt könnyen megközelíthető.
Köszönöm, hogy megtisztel bizalmával, és irodánkat választja új otthona kiválasztásához, készséggel állunk rendelkezésére a hét bármely napján.
Ár: 135.000.000.- Ft
Azonosító: 4666
Földszintes, csak a garázsokkal kapcsolódó ikerház mindkét fele eladó!!!!
Szíves figyelmébe ajánlom ezt az építés alatt álló ikerházat, mely Fót egyik kedvelt, nyugodt részén található. Az ingatlan jó arányú telekkel, átgondolt elrendezéssel és korszerű műszaki tartalommal készül, ideális választás lehet családosok számára, illetve mindazoknak, akik hosszú távon is kényelmes otthont keresnek.
Az építő munkájára jellemző a megbízhatóság és az igényesség, referencia ingatlanjai megtekinthetők.
Az ingatlan 142 m²-es, nappali + 4 szobás kialakítású, dupla komfortos, és egy 635 m²-es, kizárólagos használatú telek tartozik hozzá. A gondos tervezésnek köszönhetően a belső terek tágasak, jól bútorozhatók és élhetőek. A lakás központja a világos, amerikai konyhás nappali-étkező, amely természetes találkozási pontja a mindennapoknak.
A parkolás lakáskapcsolatos garázsban megoldott, amely közvetlenül az épületből érhető el.
Rövid műszaki tartalom:
Az épület korszerű szerkezeti és gépészeti megoldásokkal készül. A fűtés modern, gazdaságos hőszivattyús rendszerrel történik, a hő leadás minden helyiségben padlófűtéssel megoldott. A háromrétegű üvegezésű, hőszigetelt nyílászárók hozzájárulnak az alacsony fenntartási költségekhez és a csendes lakókörnyezethez.
Az ingatlan kulcsrakész állapotban kerül átadásra, konyhabútor nélkül.
Az ingatlan jelenleg építés alatt áll, így az új tulajdonosnak lehetősége van a burkolatok, szaniterek és belső ajtók kiválasztására a műszaki tartalomban feltüntetett keretösszegig a vételár részét képezve.
A környék rendezett, jól ellátott, a közelben iskola, óvoda és bevásárlási lehetőségek is elérhetők. Budapest autóval és tömegközlekedéssel egyaránt könnyen megközelíthető.
Köszönöm, hogy megtisztel bizalmával, és irodánkat választja új otthona kiválasztásához, készséggel állunk rendelkezésére a hét bármely napján.
Ár: 135.000.000.- Ft
Azonosító: 4666