Eladó Ház- házrész
Hirdetéskód: 9183902
GDN Ingatlanhálózat - Siker Kulcsa Ingatlaniroda
286 m2
ALAPTERÜLET2
SZOBASZÁMnincs megadva
ÉPÍTÉSElektromos
FŰTÉS- CSOK igénybe vehető nem
- Tetőtér beépíthető nem
- Fűtés Elektromos
- Klíma nem
- Szigetelt nem
A+++
A++
A+
A
B
C
D
E
F
G
H
I
Az ingatlan leírása
SÜRGŐSEN ELADÓ! ÁRCSÖKKENÉS!
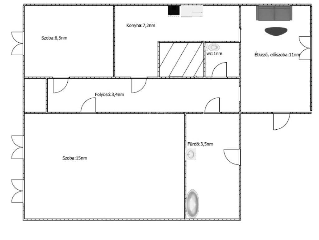
Fót kertvárosi részén ELADÓ egy felújítandó 82 nm-es, tégla építésű, családi ház, cc. 300 nm-es telekkel. Az alap épülethez, egy előszobát és egy garázst építettek hozzá, illetve beépítésre került a tetőtér.Jelenleg az alsó szinten,egy előszoba, konyha, fürdőszoba, külön wc, és két szoba található.A felső szinten két szoba lett kialakítva.
2022-ben részleges felújítások történtek a házon, ezek többek között a következők:
- teljes vízvezeték, vízhálózat csere
- részleges villanyvezeték cseréje, illetve bővítése
- nyílászárók cseréje az alsó szinten megtörtént, a felső szint teljes felújítást igényel.
- 2 db hűtő-fűtő klíma felszerelése
(jelenleg ez szolgáltatja a fűtést is)
- új ARISTON villanybojler felszerelése, mely a fürdőszobában és a konyhában is szolgáltatja a meleg vizet.
A rendezett telken egy ásott, gyűrűs kút szolgál a kert locsolására.
Parkolás az udvaron két autóval lehet, a ház előtt három autó is elfér.
PER ÉS TEHER MENTES!
Közlekedés kiváló:
Buszközlekedés Budapest felé:
Buszok: 318, 308, 314,315,autóval: M2, M0, M3, valamint 5 perces sétára Fót vasútállomás, mellyel 30 perc a Nyugati pu.
Közelben bevásárlási lehetőségek, 500 méterre, óvoda, iskola, kis játszótér, kosárlabda pálya, orvosi rendelők.
Ez az ingatlan remek választás lehet azok számára, akik saját ízlésük szerint szeretnék felújítani és alakítani új otthonukat.
A TÖBBÉVES SZAKMAI TAPASZTALATON TÚL - AZ ALÁBBIAKBAN TÁMOGATJUK MÉG AZ ADÁSVÉTELT:
- Megbízható ügyvédi háttér
- Energetikai tanúsítvány
- INGYENES, BANKFÜGGETLEN hitelügyintézés (megtaláljuk Önnek a legjobb konstrukciót)
- Állami támogatások: CSOK+, Babaváró támogatás.
Hívjon, akár hétvégén is! ...TOVÁBBI, TÖBBEZRES INGATLAN KÍNÁLAT: - GDN azonosító: 388250
Fót kertvárosi részén ELADÓ egy felújítandó 82 nm-es, tégla építésű, családi ház, cc. 300 nm-es telekkel. Az alap épülethez, egy előszobát és egy garázst építettek hozzá, illetve beépítésre került a tetőtér.Jelenleg az alsó szinten,egy előszoba, konyha, fürdőszoba, külön wc, és két szoba található.A felső szinten két szoba lett kialakítva.
2022-ben részleges felújítások történtek a házon, ezek többek között a következők:
- teljes vízvezeték, vízhálózat csere
- részleges villanyvezeték cseréje, illetve bővítése
- nyílászárók cseréje az alsó szinten megtörtént, a felső szint teljes felújítást igényel.
- 2 db hűtő-fűtő klíma felszerelése
(jelenleg ez szolgáltatja a fűtést is)
- új ARISTON villanybojler felszerelése, mely a fürdőszobában és a konyhában is szolgáltatja a meleg vizet.
A rendezett telken egy ásott, gyűrűs kút szolgál a kert locsolására.
Parkolás az udvaron két autóval lehet, a ház előtt három autó is elfér.
PER ÉS TEHER MENTES!
Közlekedés kiváló:
Buszközlekedés Budapest felé:
Buszok: 318, 308, 314,315,autóval: M2, M0, M3, valamint 5 perces sétára Fót vasútállomás, mellyel 30 perc a Nyugati pu.
Közelben bevásárlási lehetőségek, 500 méterre, óvoda, iskola, kis játszótér, kosárlabda pálya, orvosi rendelők.
Ez az ingatlan remek választás lehet azok számára, akik saját ízlésük szerint szeretnék felújítani és alakítani új otthonukat.
A TÖBBÉVES SZAKMAI TAPASZTALATON TÚL - AZ ALÁBBIAKBAN TÁMOGATJUK MÉG AZ ADÁSVÉTELT:
- Megbízható ügyvédi háttér
- Energetikai tanúsítvány
- INGYENES, BANKFÜGGETLEN hitelügyintézés (megtaláljuk Önnek a legjobb konstrukciót)
- Állami támogatások: CSOK+, Babaváró támogatás.
Hívjon, akár hétvégén is! ...TOVÁBBI, TÖBBEZRES INGATLAN KÍNÁLAT: - GDN azonosító: 388250