Eladó Ház- házrész
Hirdetéskód: 9242652
H &K Ingatlaniroda
Ez a hirdetés megfelelhet a FIX 3%-os programnak.
Tudj meg többet a részletekről itt.
90.00 m2
ALAPTERÜLET3
SZOBASZÁMnincs megadva
ÉPÍTÉSnincs megadva
FŰTÉS- Belső szintek 1
- Építés éve 2025
A+++
A++
A+
A
B
C
D
E
F
G
H
I
Az ingatlan leírása
Új építésű, földszintes, garázsos ikerházi lakás eladó Fóton!
CÉGES ÉPÍTKEZÉS, a 2024-től aktuális állami támogatások valamint kedvezményes, kamattámogatott hitelek felvehetőek – akár a 3%-os OTTHON START hitel, CSOK PLUS, babaváró is igényelhető, az ügyintézésben díjmentesen segítünk!
Az építő munkájára jellemző a megbízhatóság és igényesség, leinformálható, referencia házai megtekinthetők.
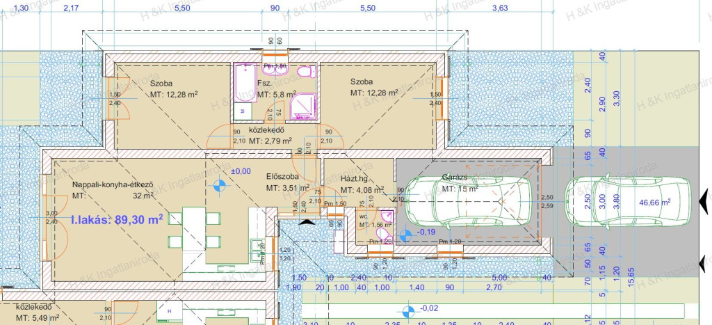
Az ikerház jobb oldali lakása amerikai konyhás nappali + 2 szobás, 90 nm-es alapterülettel, FÖLDSZINTES, 356 nm-es saját telekrésszel.
Rövid műszaki leírás:
A ház homlokzati falai 30-as Ytong téglából épülnek, 10 cm grafitos hőszigeteléssel. A tető Bramac beton cseréppel lesz fedett barna színben.
Az ablakok műanyag szerkezetűek, 3 rétegű hőszigetelő üvegezéssel, fehér színben.
Az ingatlan modern, hőszivattyús fűtés rendszerrel épül, a hő leadás padlófűtéssel történik.
+ vállalások: riasztó rendszer, szobákba hűtő-fűtő klíma, elektromos kapunyitás
Helyiséglista: amerikai konyhás nappali 32 nm, 2 szoba 12,28 nm és 12,28 nm, fürdőszoba 5,8 nm, háztartási helyiség 4 nm, külön WC 1,56 nm, előtér 3,51 nm, közlekedő 2,79 nm, garázs 15 nm, terasz
Parkolás a garázsban és az udvari beállón lesz megoldott.
A lakás kulcsrakész állapotban kerül átadásra, konyhabútor nélkül.
Belső nyílászárók és a burkolatok választhatók, a belső műszaki tartalomban megjelölt összegig a vételár részét képezik.
Kulcsrakész ár: 105.000.000.- Ft
Azonosító: 4657/1
CÉGES ÉPÍTKEZÉS, a 2024-től aktuális állami támogatások valamint kedvezményes, kamattámogatott hitelek felvehetőek – akár a 3%-os OTTHON START hitel, CSOK PLUS, babaváró is igényelhető, az ügyintézésben díjmentesen segítünk!
Az építő munkájára jellemző a megbízhatóság és igényesség, leinformálható, referencia házai megtekinthetők.
Az ikerház jobb oldali lakása amerikai konyhás nappali + 2 szobás, 90 nm-es alapterülettel, FÖLDSZINTES, 356 nm-es saját telekrésszel.
Rövid műszaki leírás:
A ház homlokzati falai 30-as Ytong téglából épülnek, 10 cm grafitos hőszigeteléssel. A tető Bramac beton cseréppel lesz fedett barna színben.
Az ablakok műanyag szerkezetűek, 3 rétegű hőszigetelő üvegezéssel, fehér színben.
Az ingatlan modern, hőszivattyús fűtés rendszerrel épül, a hő leadás padlófűtéssel történik.
+ vállalások: riasztó rendszer, szobákba hűtő-fűtő klíma, elektromos kapunyitás
Helyiséglista: amerikai konyhás nappali 32 nm, 2 szoba 12,28 nm és 12,28 nm, fürdőszoba 5,8 nm, háztartási helyiség 4 nm, külön WC 1,56 nm, előtér 3,51 nm, közlekedő 2,79 nm, garázs 15 nm, terasz
Parkolás a garázsban és az udvari beállón lesz megoldott.
A lakás kulcsrakész állapotban kerül átadásra, konyhabútor nélkül.
Belső nyílászárók és a burkolatok választhatók, a belső műszaki tartalomban megjelölt összegig a vételár részét képezik.
Kulcsrakész ár: 105.000.000.- Ft
Azonosító: 4657/1