Eladó Ház- házrész
Hirdetéskód: 9228100

-

FIX 3% Program

Ez a hirdetés megfelelhet a FIX 3%-os programnak.
Tudj meg többet a részletekről itt.

246.00 m2
ALAPTERÜLET
9
SZOBASZÁM
nincs megadva
ÉPÍTÉS
Központi fűtés
FŰTÉS
  • Fűtés Központi fűtés
Energetikai besorolás: Nincs meghatározva
A+++
A++
A+
A
B
C
D
E
F
G
H
I

Az ingatlan leírása

Ingatlan leírás:


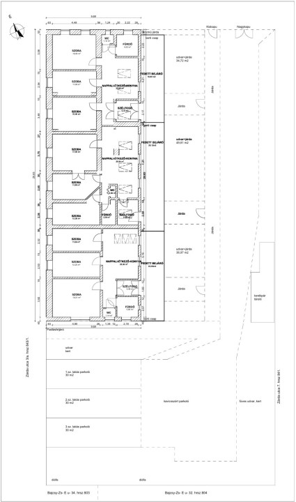
Földeák főterén ( nem közel hozzá és nem majdnem, hanem ott!) eldásra kínálom az átalakítás – felújítás alatt lévő házam, neked, aki szeretne egy tágas otthont a saját igényei szerint burkolni, csempézni, festegetni, fűtögetni, belakni.


Autóval Budapesttől 180 km 1,5 óra, Szegedtől 30 km 23 perc, Makótól 10 km 9 perc, Hódmezővásárhelytől 15 km 13 perc.


Az eredeti ház 1908 ban épült 1148 m2 es telken, spanyol lovagrendi stílusban mélyen ágyazott tégla alapra tégla-vályogtégla falazattal épült. Úgynevezett kulák ( gazdag paraszti) ház volt.


Az 1980 as években alászigetelték a külső falakat és tetőfelújításon esett át. 1998 ban az akkori új lakó felújíttatta, majd pedig én vettem meg 2011 ben. Ekkor a belső falak alárakása ( 90 cm  magasságig km tégla minden régi fal ) és alászigetelése , a belső terek újra szigetelése, betonozása történt . 2018 ig gazdabolt üzemelt benne. 2023. nyarán megkezdődött a felújítása, melléképület bontása, újraépítése ( a 3. lakás teljesen új építés ) és átalakítása a társasházzá nyilvánításhoz. Az eredeti házból az 1 es és 2 es lakás lakószobái az eredeti házból megmaradt főfalak. A közfalak újak tégla építésűek. Új víz ( a 3 részre osztás engedélye meg van ), villany ( lakásonként 3x 16 A, az első lakás már bekötve )  és szennyvízbekötések, lakásonkénti elosztással. A Vezetékes gáz ki lett kötve, gázcsonk a telken belül, a gázórák helye kialakítva.


A ház 50 cm mélyen alapon kívüli kavicságyas dréncsövezést kapott, melyek a ház teljes belső felülete alatti szintén kavicságyas dréncsövezéssel vannak ellátva, talajpára elvezetéssel bekötve a dréncsőrendszerbe.


A külső fal járdaszintig 50 cm mély 5 cm vastag  xps szigetelést kapott, mely felső szintje a bitumenes lemezszigetelés alatt van 5 cm el. Itt a tégla fal biztonsági injektáló szigetelést kapott.


Az udvar 2 m mélyen 200 m hosszú 3/4’ os zárt rendszerű talajszondával rendelkezik az esetleges víz-víz hőszivattyús rendszer kiépítéséhez.


A lakások kifestve padlóburkolás nélkül ( padlókiegyenlített festett betonnal ) , elektromos fali Norvég panel fűtéssel, hideg-meleg vizes kiállásokkal, villanybojlerrel, wc és szélfogó 100% os készültséggel , fürdő szaniter bekötésekkel, padló és falburkolatok nélkül lesznek értékesítve. A villanykazános vízkeringetéses központi fűtés  valamint lakásonkénti 1-1 db hűtő-fűtő klíma nyomvonala biztosítva.


A konyharészekben vízkeringetéses padlófűtés a 2. sz lakásban beépítve, a másik kettőnél még van rá lehetőség.


A nyílászárók fa és műnyag 2 rtg hőszig. üvegezésűek.


Az udvari tégla falak + 5 cm hungarocell szigetelést kapnak ( ez már benne van a méretezésben )


Az 1. és 2. lakásokon 4x es hőszigetelésű zárt tetőbevilágítók biztosítják a benapozottságot.


Az első két lakás belső lakótere a szélfogóból egy lépcsőfokkal közelíthető meg. A 3. lakás padlószintje az udvari terasszal egy szintben van.


Mindhárom lakás fedett bejárati részében ( terasz ) udvari vízcsap van kiépítve.


A terasz részek tetejének vízlefolyása a tetővízelvezetéssel lesznek kombinálva. Tető vissza lejtetve a „ nagy „ tetőre


A lakásokhoz tartoznak előkertek és 3x10 m-es parkoló az udvar hátsó részében. A többi szolgalmi jogos, közös tulajdon lesz!!!


 


Bónusz: a járda melletti kavicságyban tavasztól őszig a 25 cserepes leandergyűjtemény adja a szegélyt!


Eladáshoz számítások:


Alap ár: 350 000 Ft / m2






Lakás




Készültségi %


A készültségi fok 2025.07.23. ra vonatkozik! Folyamatosan változik.




Nettó mért alaptarület m2




Eladási ár a leírás szerinti állapotban




Eladási ár a készültségi fok szerinti állapotban






1




80 %




77,74 m2




27,209 MFt




21,767 MFt






2




80 %




87,61 m2




30,663 MFt




24,530 MFt






3




60 %




80,78 m2




28,273 MFt




16,963 MFt






 


Első vásárló : 10 % kedvezmény


Második vásárló : 5 % kedvezmény


3 opció az eladásra:



  • Megtekintett állapotban a fenti árakon.

  • Teljes áron  felújítva, 100 000 Ft/m2 előleg befizetése ellenében , TAO val.

  • Megtekintett állapotában a készültségi % nak megfelelően egyben : 63,26 MFt – 15% = 55,00 MFt

  • Térkép

    A hirdető elérhetősége

    Szecskó Lajos

    +36 70 932